Alwyns Lane, Chertsey, Surrey, KT16

£409,950
SSTC
This property listing is now SSTC

2 Bedroom End of Terrace House for sale in Chertsey

2
  • Period charm
  • Quiet residential road
  • Town centre location
  • Easy access to road and rail networks

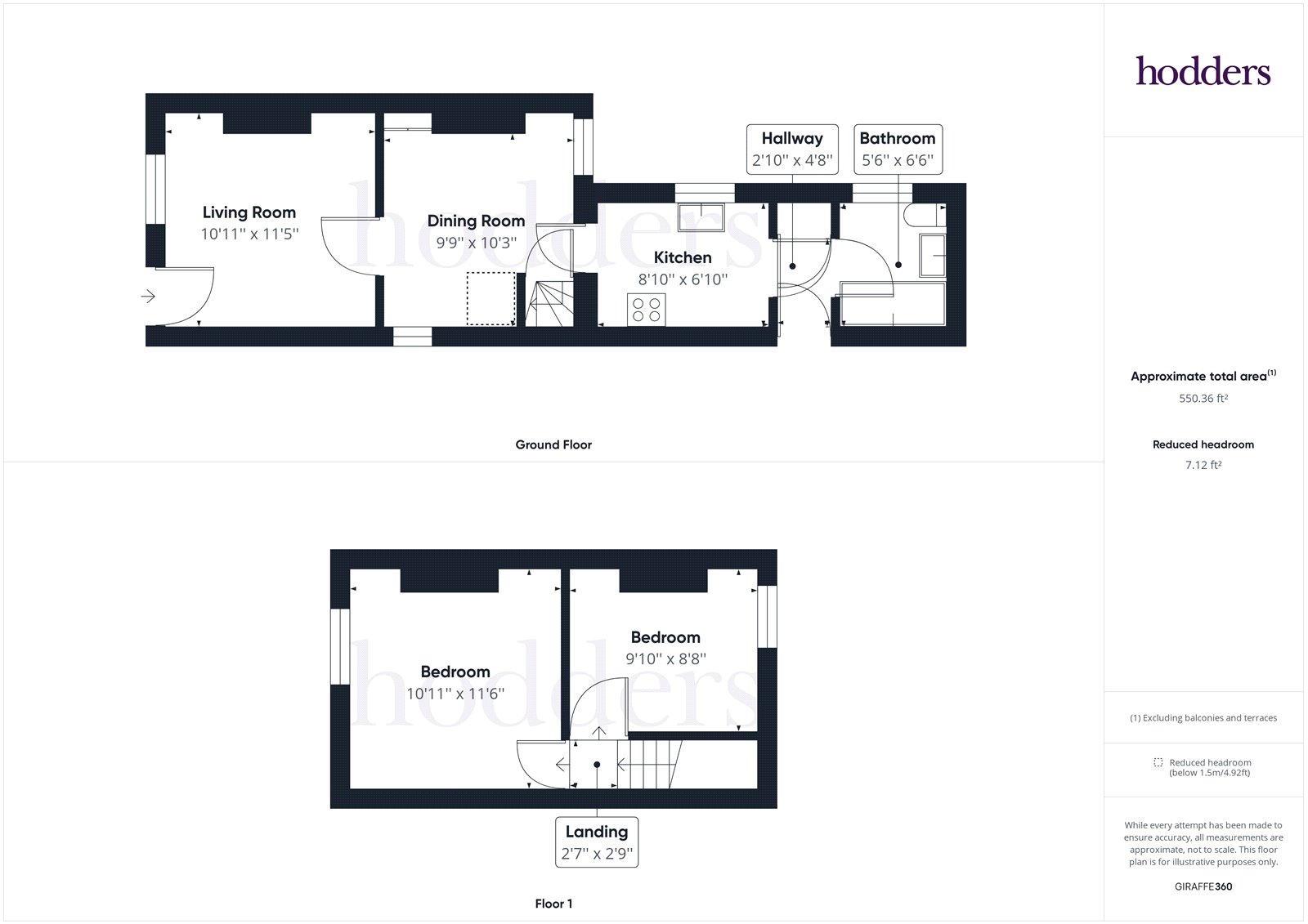
Situated within a few minutes' walk of Chertsey town centre this attractive end of terrace flat fronted cottage on a popular residential lane forming part of the conservation area. Accommodation comprises on the ground floor of two separate reception rooms, a galley-style kitchen and a downstairs bathroom. Access to the rear garden is via a small inner hallway at the foot of the kitchen and stairs to the first floor can be found behind a doorway leading from the dining room. Upstairs you will find the two double bedrooms, the smaller of the two enjoying views over the rear garden. Outside the property benefits from gated side access leading to the southerly aspect rear garden which is mainly laid to lawn and benefits from a large storage shed positioned at the end of the garden.


• Period charm
• Quiet residential road
• Town centre location
• Easy access to road and rail networks

Important Information

  • This is a Freehold property.

Property Ref: 57293s_ADD230919

Share:

Similar Properties

Merrylands, Chertsey, Surrey, KT16

2 Bedroom Semi-Detached House | £409,950

Set in a popular and peaceful cul-de-sac, this lovely two-bedroom semi-detached home is perfect for a small family or pr...

Harcourt Close, Egham, Surrey, TW20

3 Bedroom Terraced House | £400,000

An excellent opportunity to acquire this very well presented three bedroom terrace property with a conservatory extensio...

Crown Rise, Chertsey, Surrey, KT16

2 Bedroom End of Terrace House | £399,950

Modern Two-Bed Home in a Quiet Cul-de-SacSet within a peaceful and popular cul-de-sac just moments from Chertsey town ce...

Warwick Deeping, Ottershaw, Surrey, KT16

2 Bedroom Terraced House | £424,950

Nestled within a charming mews-style development just opposite the picturesque Ottershaw Park, this beautifully presente...

Mead Lane, Chertsey, Surrey, KT16

3 Bedroom Semi-Detached House | £425,000

Located within easy reach of Chertsey Meads is this three-bedroom semi-detached cottage boasting off street parking to t...

Marina Close, Chertsey, Surrey, KT16

2 Bedroom End of Terrace House | £425,000

Offered to the market in excellent decorative order, this attractive two double bedroom end-of-terrace home is situated...

hodders (Chertsey)

Chertsey, Surrey, KT16 8AY

01932 562321

How much is your home worth?

Use our short form to request a valuation of your property.

Request a Valuation

Mortgage Calculator

Amount Borrowed: £
Total Amount Repayable: £
Total Monthly Payment: £
©2026 The Guild of Property Professionals. All rights reserved. Terms and Conditions | Privacy Policy | Cookie Policy | Complaints Policy | Members Login
The Guild of Property Professionals Trading Address: 121 Park Lane, London W1K 7AG. GPEA Limited. Registered in England & Wales.  Company No: 02819824.  Registered Office Address: 2 St. Stephen's Court, St. Stephen's Road, Bournemouth, Dorset, England, BH2 6LA.  VAT Registration No: 576 8795 61
Book a Property Valuation Update Cookies Preferences