Hauxley Drive, Chester Le Street, DH2

£750,000

6 Bedroom Detached House for sale in Chester Le Street

3 6 3
  • Six Bedroom Stone Built Detached
  • Substantial Plot
  • Three Reception Rooms
  • Impressive Dining Kitchen
  • Three Bathrooms
  • Double Garage and Extensive Driveway
  • Council Tax Band G
  • EPC Rating C

Waldridge Lodge – An Exceptional Detached Family Residence

 

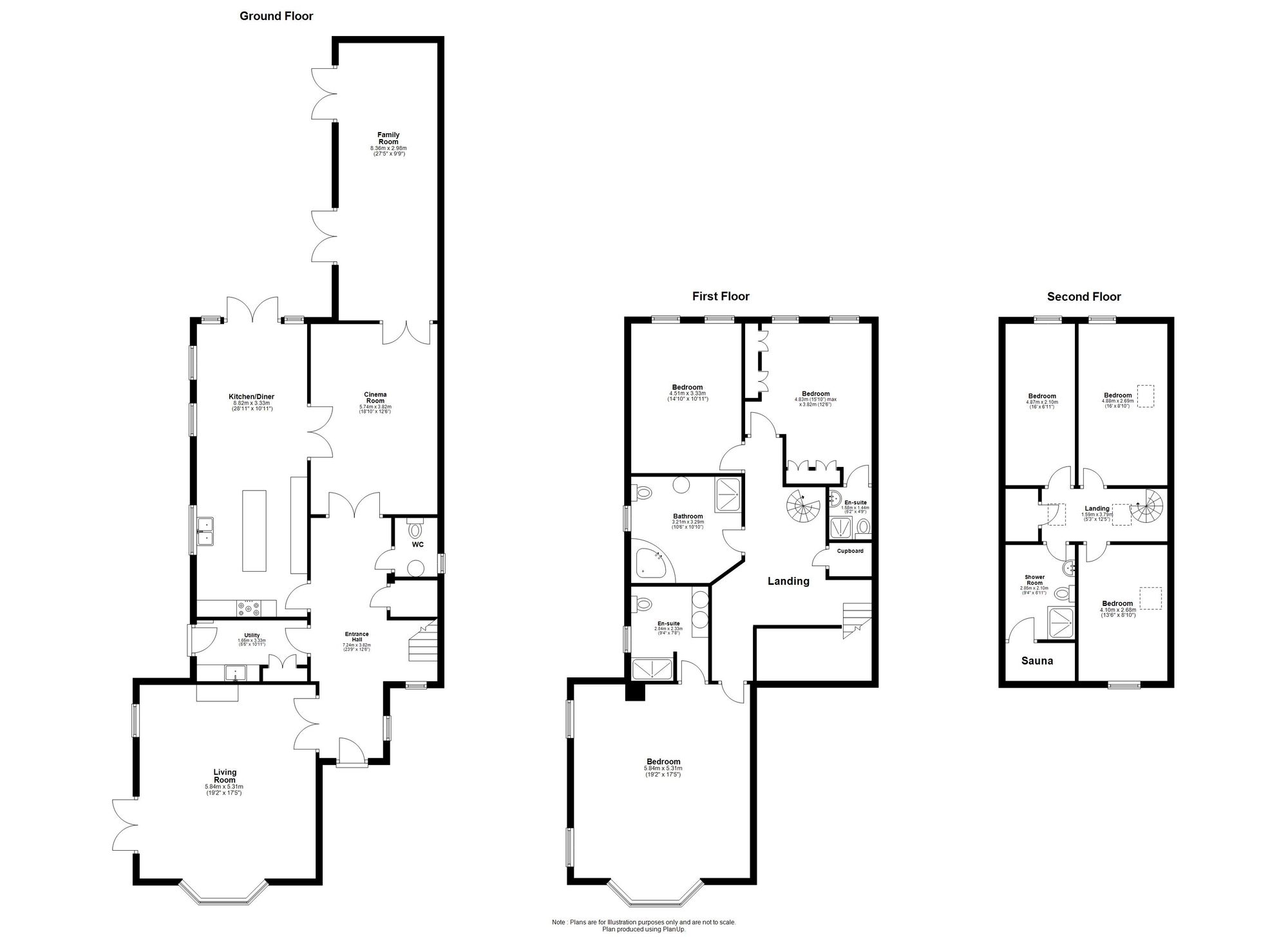
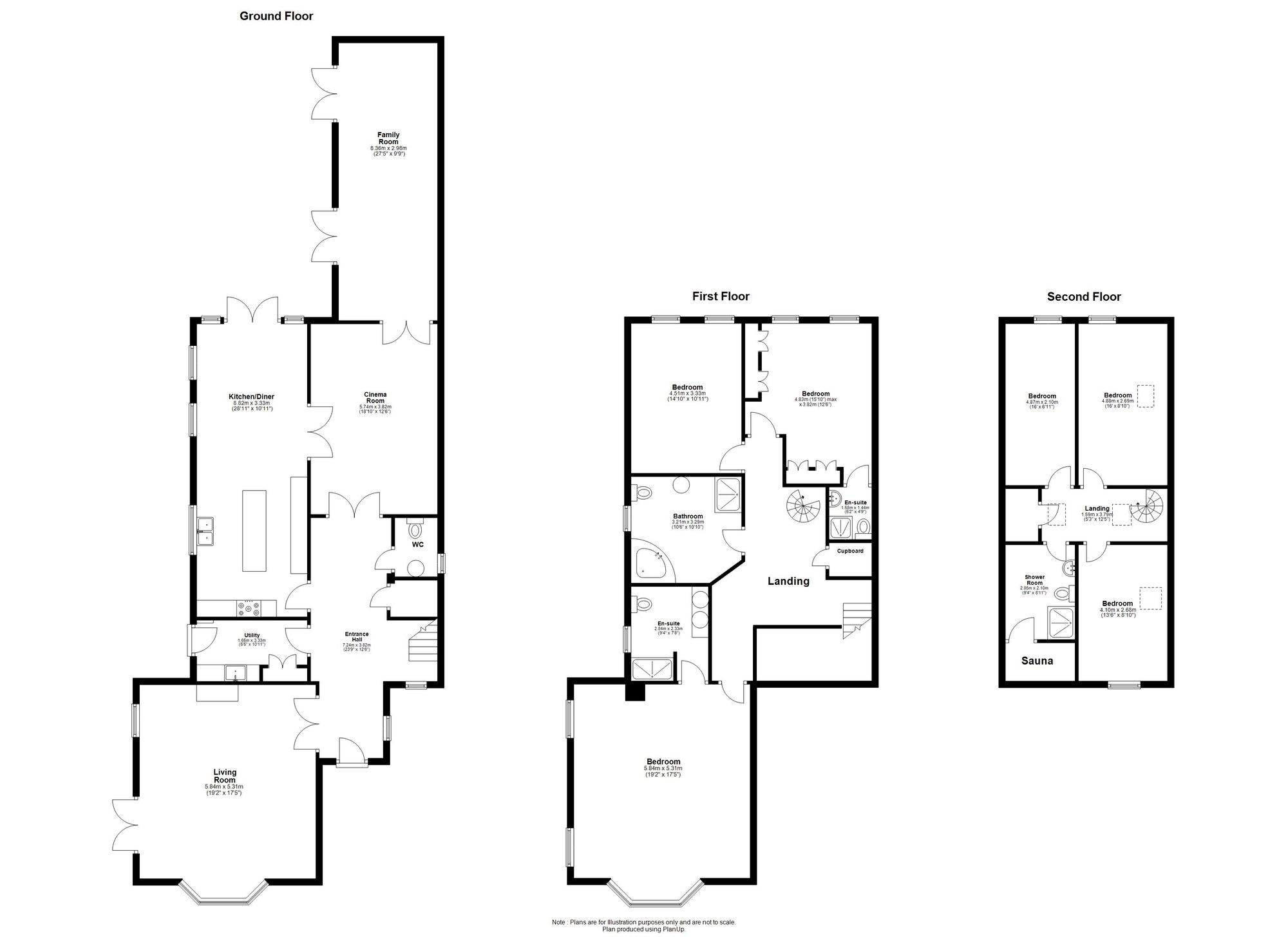
Waldridge Lodge is a truly stunning six-bedroom detached family home, constructed circa 2000 with an exceptional level of craftsmanship and finished in beautiful reclaimed stone. Situated on the highly regarded Hauxley Drive in Waldridge Fell, to the west of Chester-le-Street, this striking residence occupies a generous and mature plot extending to approximately a quarter of an acre. Perfectly blending traditional charm with modern luxury, this home offers both elegance and functionality in equal measure.

 

The property is approached via electronically controlled gates, opening to an expansive driveway with ample parking for multiple cars, all framed by landscaped gardens that set the tone for the grandeur within.

 

Upon entering, the fabulous reception hallway immediately impresses, with its soaring vaulted ceiling and bespoke feature staircase creating a wonderful sense of space and light. From here, access flows seamlessly into the principal living areas. The dual-aspect formal lounge is a refined yet welcoming room, centred around a modern fireplace, with a bay window to the front and French doors opening directly to the rear gardens—an ideal space for both relaxing and entertaining.

 

At the heart of the home lies the spectacular open-plan dining kitchen, designed with modern family living in mind. This sociable hub offers an extensive range of fitted units, integrated appliances, and a central preparation island. The adjoining dining area enjoys direct access to the gardens via patio doors, creating an effortless inside-outside flow, perfect for summer gatherings.

 

Further ground floor accommodation includes a superb cinema room for immersive family entertainment, and a generously proportioned family room, enhanced by dual sets of patio doors which open out onto the garden. A useful utility room and a stylish guest cloakroom complete the ground floor.

 

The first floor is home to a magnificent principal suite, featuring a vaulted ceiling, dual-aspect windows, and a luxuriously appointed en-suite shower room. Two further double bedrooms can be found on this level, one of which enjoys its own en-suite, while the spacious family bathroom offers a Jacuzzi-style bath and a separate shower enclosure, adding to the sense of indulgence.

 

The second floor provides a versatile arrangement of three further well-proportioned bedrooms, all serviced by a shower room complete with sauna—a rare and enviable feature.

 

Externally, the landscaped gardens are a true highlight of Waldridge Lodge, offering an idyllic blend of manicured lawns, established planting, and mature trees. Entertaining is well catered for with a bespoke outdoor bar area, generous patios for alfresco dining, and ample space for family recreation. A detached double garage further enhances the property, incorporating a built-in bar and a workshop, offering practicality alongside leisure.

 

Perfectly positioned, Waldridge Lodge is within convenient reach of local shops, schools, and amenities in Chester-le-Street, while enjoying transport links to the wider region. This rare opportunity combines the tranquility of a semi-rural setting with the convenience of nearby town living, making it an ideal home for discerning buyers seeking style, space, and luxury.

Energy Efficiency Current: 70.0
Energy Efficiency Potential: 75.0

Important Information

  • This is a Freehold property.
  • This Council Tax band for this property is: G

Property Ref: 480b8622-419c-49c0-b76d-43fd715efbd5

Share:

Similar Properties

Rockcliffe Way, Eighton Banks, NE9

5 Bedroom Detached House | Offers in excess of £675,000

The Generals Wood, Washington, NE38

5 Bedroom Detached House | £625,000

Blind Lane, Chester Le Street, DH3

3 Bedroom Detached Bungalow | Offers in excess of £585,000

Sarah Mains Residential Sales & Lettings (Low Fell)

Low Fell, Tyne & Wear, NE9 5EU

0191 487 8855

How much is your home worth?

Use our short form to request a valuation of your property.

Request a Valuation

Mortgage Calculator

Amount Borrowed: £
Total Amount Repayable: £
Total Monthly Payment: £
©2025 The Guild of Property Professionals. All rights reserved. Terms and Conditions | Privacy Policy | Cookie Policy | Complaints Policy | Members Login
The Guild of Property Professionals Trading Address: 121 Park Lane, London W1K 7AG. GPEA Limited. Registered in England & Wales.  Company No: 02819824.  Registered Office Address: 2 St. Stephen's Court, St. Stephen's Road, Bournemouth, Dorset, England, BH2 6LA.  VAT Registration No: 576 8795 61
Book a Property Valuation Update Cookies Preferences