Development Land, Birkin Lane, Wingerworth, Chesterfield, S42 6LL

£450,000

Plot for sale in Chesterfield

  • Single building plot for 1 detached eco home
  • Planning permission granted
  • North East Derbyshire Council - ref 22/01145/RM
  • Stunning rural location surrounded by glorious Derbyshire countryside
  • Close to village amenities
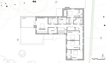
  • Overall accommodation 6083 sqft including garages
  • Fantastic location on the edge of the Peak District National Park and within close proximity to amenities

A truly unique opportunity to build your dream home in this stunning rural location. With planning consent granted for the erection of a large detached dwelling.

Local authority : North East Derbyshire Council
Planning ref : 22/01145/RM

Overall accommodation : 6083 sqft including garage.

Situated in this idyllic, rural location, on the outskirts of Wingerworth Village and a stones throw from Ashover and surrounding amenities, is this approximately 1 acre plot of land with full planning for the construction of an impressive 6083 sqft 5 bedroom, 4 bathroom detached eco home.

Property Ref: 7689458_33929258

Share:

Similar Properties

Longedge Lane, Wingerworth, Chesterfield, S42 6PQ

3 Bedroom Detached House | £450,000

Situated in this peaceful location, on a quiet countryside lane with stunning views to the rear, is this attractive deta...

Starkholmes Road, Starkholmes, Matlock, DE4 5JA

2 Bedroom Semi-Detached House | Offers in region of £425,000

Situated in the highly desirable and picturesque village of Starkholmes, close to local village amenities is this quaint...

Beresford Lane, Woolley Moor, Alfreton, DE55 6FH

4 Bedroom Semi-Detached House | Guide Price £425,000

£425,000 - £450,000 (Guide price) Situated in the exceptionally pretty Derbyshire village of Woolley Moor, surrounded by...

Pomegranate Road, Newbold, Chesterfield, S41 7BL

4 Bedroom Detached House | £495,000

A contemporary styled 4 bedroom, 3 bathroom detached family home in this sought after, exclusive location of Pomegranate...

Chatsworth Road, Brookside, Chesterfield, S40 3PE

2 Bedroom Detached Bungalow | £499,950

Situated in this highly sought after postcode, enjoying a private position in a large plot, is this tastefully styled 2...

Park View, Upper Langwith, Mansfield, NG20 9RE

3 Bedroom Detached Bungalow | Guide Price £500,000

£500,000 - £550,000 (Guide price) Located in this picturesque village location, surrounded by stunning countryside and c...

Dales and Peaks (Chesterfield)

Brampton, Chesterfield, S40 2AP

01246 567540

How much is your home worth?

Use our short form to request a valuation of your property.

Request a Valuation

Mortgage Calculator

Amount Borrowed: £
Total Amount Repayable: £
Total Monthly Payment: £
©2025 The Guild of Property Professionals. All rights reserved. Terms and Conditions | Privacy Policy | Cookie Policy | Complaints Policy | Members Login
The Guild of Property Professionals Trading Address: 121 Park Lane, London W1K 7AG. GPEA Limited. Registered in England & Wales.  Company No: 02819824.  Registered Office Address: 2 St. Stephen's Court, St. Stephen's Road, Bournemouth, Dorset, England, BH2 6LA.  VAT Registration No: 576 8795 61
Book a Property Valuation Update Cookies Preferences