3 Bedroom Village House for sale in Chippenham

4 3 2
  • An exceptional Grade II listed house
  • Iconic position within Castle Combe
  • Stunning interior with generous ground floor space
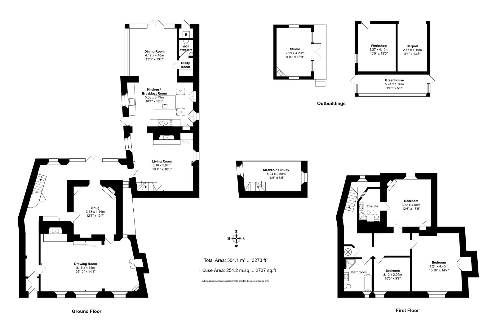
  • 4 reception rooms
  • Aga kitchen open plan to the dining room
  • 3 bedrooms, 2 bathrooms (consent for 4th Bedroom and en suite)
  • Glorious large garden
  • Ample private parking
  • Outbuildings with power

Description

The Bridge House is located on one of Castle Combe's most iconic streets. Dating back to the 1600s and Grade II Listed, the quintessential front elevation is most deceptive as the property is predominantly arranged at the rear offering stunning accommodation coupled with a glorious garden. The spacious accommodation spans to over 2700 sq.ft and is particularly generous on the ground floor. Showcasing a plethora of charm and character throughout, the property has been sympathetically updated with modern upgrades including underfloor heating in the majority of the ground floor. 

At the heart of the ground floor there is a highly desirable kitchen open plan to a dining room with views over the garden. The kitchen boasts an impressive high vaulted ceiling plus an oil-fired Aga, island unit and stone floors. Adjoining the kitchen there is a characterful living room with stone fireplace and wood-burning stove inset, whilst steps lead up to a wonderful mezzanine floor above. There are two further reception rooms also with fireplaces. A cosy snug leads to the front drawing room which features a magnificent inglenook fireplace and charming window seats. An oak staircase leads up to the first floor which comprises three bedrooms, a family bathroom with separate shower and roll-top bath, plus an en-suite shower room to the principal bedroom. For those needing additional space, planning was passed by Wiltshire Council in 2001 to create a fourth bedroom with en suite within the mezzanine area above the snug. It is understood that this planning is still valid today. 

Sitting within a c.0.41 acre plot, the enviable gardens are a delightful private haven to enjoy overlooking a picturesque wooded valley. The garden is arranged into three principal areas comprising a large secluded seating terrace off the kitchen, a good-sized central lawn and a further top lawn with wild flowers. Within the grounds there are a range of outbuildings including a timber studio which has power, lighting, an electric burner and a colonial style covered porch terrace. Additionally, there is a further outbuilding comprising a workshop, carport and greenhouse. The Bridge House has the superb benefit of ample private parking which is entered via residents only access off Water Lane. A driveway sweeps around to a gravelled parking bay beside the carport. 

Situation
The very pretty South Cotswolds village of Castle Combe is a world famous tourist destination and quaint village famed for its traditional and unspoilt Cotswold cottages and streets. The village is a regular location for the film industry with movie's including 'War Horse' and 'Dr Dolittle'. A short walk from the property there is the Manor House Hotel with its Michelin star Bybrook restaurant and the golf club which has a Peter Alliss designed 18 hole course, regarded as one of the top 100 in the UK. At the heart of the village is the 14th Century Market Cross, a small hotel and a public house. The nearby racetrack is also a popular attraction. There is an excellent road link to the M4 (Junction 18 7.5miles) and Bristol and Bath. Fast trains from Chippenham can reach Paddington, London in 75 minutes.
Additional Information
We understand the property is Freehold with oil-fired central heating, mains drainage, water and electricity. The property is Grade II Listed and located within the Cotswold Area of Outstanding Natural Beauty and a Conservation Area. For those needing additional space, planning was passed by Wiltshire Council in 2001 to create a fourth bedroom with en suite within the mezzanine area above the snug. It is understood that this planning is still valid today. Superfast broadband is available and there are some limitations to mobile phone coverage. Information taken from the Ofcom mobile and broadband checker, please see the website for more information. Wiltshire Council Tax Band F.
Joint Sole Agents:  Savills, Bath.

Important Information

  • This is a Freehold property.
  • This Council Tax band for this property is: F

Property Ref: 836439

Share:

Similar Properties

Little Somerford

5 Bedroom Detached House | £1,395,000

A beautifully renovated 17th Century Grade II listed farmhouse, unconverted barn ripe for conversion (STPP) with 8 acres...

The Street, Grittleton

3 Bedroom Village House | Guide Price £1,350,000

A beautifully renovated Grade II listed village house with a very impressive interior and pretty gardens. 

Kilcott Road, Hillesley

5 Bedroom Detached House | £1,295,000

Peacefully located amongst rolling Cotswold hills, a fascinating 17th Century Listed detached house steeped in history w...

Lanhill, Chippenham

6 Bedroom Barn Conversion | £1,450,000

Tucked away within a private rural setting, this impressive period home overlooks its beautifully manicured southerly ga...

Seagry Road, Sutton Benger

6 Bedroom Detached House | £1,475,000

An exceptional, standout family house with a most impressive interior and stunning gardens. Fantastic outbuildings inclu...

Upper Seagry

5 Bedroom Detached House | Offers Over £1,495,000

Set within approximately 3.5 acres with beautiful south-facing gardens and a paddock, a magnificent detached country hou...

James Pyle & Co (Sherston)

Swan Barton, Sherston, Wiltshire, SN16 0LJ

01666 840886

How much is your home worth?

Use our short form to request a valuation of your property.

Request a Valuation

Mortgage Calculator

Amount Borrowed: £
Total Amount Repayable: £
Total Monthly Payment: £
©2026 The Guild of Property Professionals. All rights reserved. Terms and Conditions | Privacy Policy | Cookie Policy | Complaints Policy | Members Login
The Guild of Property Professionals Trading Address: 121 Park Lane, London W1K 7AG. GPEA Limited. Registered in England & Wales.  Company No: 02819824.  Registered Office Address: 2 St. Stephen's Court, St. Stephen's Road, Bournemouth, Dorset, England, BH2 6LA.  VAT Registration No: 576 8795 61
Book a Property Valuation Update Cookies Preferences