West Street, Great Somerford

£795,000
SSTC
This property listing is now SSTC

3 Bedroom Detached House for sale in Chippenham

2 3 3
  • Detached individual house
  • Lovely setting up a private drive overlooking a field
  • 3 double bedrooms all with en-suites
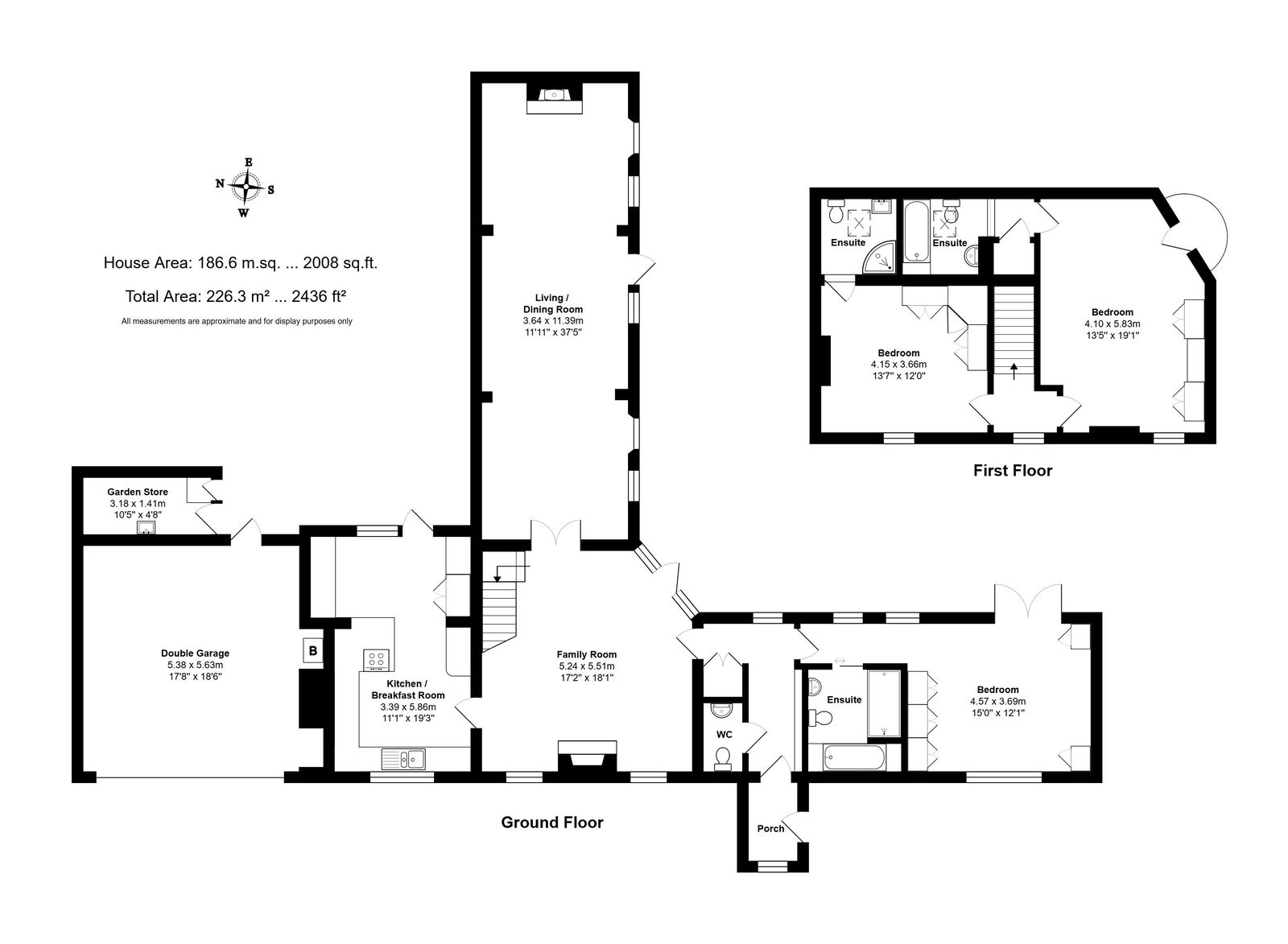
  • Impressive 37ft reception room with vaulted ceiling
  • Additional family room
  • Integrated kitchen/breakfast room
  • Delightful private south-facing walled garden
  • Double garage
  • Within walking distance of amenities
  • No onward chain

Description

Manor Stables Cottage is an interesting period conversion of some former stable buildings occupying a delightful location set up a private drive enjoying uninterrupted westerly views across a field opposite. The property is located within the popular village of Great Somerford and within easy level walking distance of amenities. 

The cottage is deceptively large and superbly configured boasting generous ground floor space and has been designed as a 'forever home' offering a ground floor bedroom suite. The spacious accommodation is filled with natural light and extends to over 2,000 sq.ft. The living accommodation includes a dual-aspect family room with a fireplace at the focal point. The well-appointed kitchen/breakfast room is fitted with a Poggenpohl kitchen with integrated dishwasher, double oven, induction hob, wine cooler and a larder cupboard. There is a magnificent 37ft reception room with an impressive high vaulted ceiling, fireplace with stove, and glazed windows and door overlooking the garden. Across the ground floor and first floor, there are three generous double bedrooms all fitted with wardrobes and benefitting from private en-suite bathrooms. 

Externally, the property is tucked away from passing traffic up a drive where there is an attached double garage with a store room at the back. The delightful south-facing garden is a tranquil environment in which to sit out in benefitting from a great degree of privacy and a sunny orientation. The garden has been beautifully landscaped around a heptagonal water feature with raised beds, pergolas, a lawn and thoughtful seating terraces. 

Situation
Great Somerford is a sought-after north Wiltshire village which has a good range of amenities including a shop and post office, C of E primary and pre-school, chocolate box pretty church, and The Volunteer Inn with outdoor dining. The village shop won the 'Best Village Shop in Wiltshire' award in 2022, whilst the village itself has consistently placed in the top 5 of the 'Best Kept Medium Sized Village' in Wiltshire by the Campaign to Protect Rural England. The village has an excellent sense of community, active with clubs and social events which are networked with the neighbouring villages. The village also has a show-ground which hosts Dauntsey Park Horse Trials among other equestrian events. Sporting and leisure facilities nearby include the Beaufort Polo Club, and the Somerford Fishing Association along the River Avon. There are also many walks through open countryside to be enjoyed via several public footpaths directly from and around the village. Situated 4.8 miles away is the historic market town of Malmesbury with its historic Abbey, Waitrose, Aldi, Co-op, library, leisure centre, Ofsted rated ‘outstanding’ secondary school, and Dyson HQ. The larger market town of Chippenham is 7 miles away with direct rail links to London Paddington (69 minutes), Bristol and Bath. Great Somerford is in an excellent location for commuting to London and Bristol with Junction 17 of the M4 only 5 miles away.
Additional Information
The property is Freehold with oil-fired central heating, mains drainage, water and electricity. There are solar panels on a feed-in tariff. The property is located within a conservation area. Superfast broadband is available and there are some limitations to mobile phone coverage. Information taken from the Ofcom mobile and broadband checker, please see the website for more information. Wiltshire Council Tax Band F.

Important Information

  • This is a Freehold property.
  • This Council Tax band for this property is: F

Property Ref: 1063356

Share:

Similar Properties

Bath Road, Tetbury

4 Bedroom Detached House | £795,000

Positioned just half a mile and a short walk from the town centre, an individual designed and built detached house offer...

Chelworth, near Crudwell

3 Bedroom Semi-Detached House | £775,000

This very pretty Cotswold stone period cottage showcases a wealth of charm and character positioned in the rural village...

Chelworth, near Crudwell

4 Bedroom Detached House | £775,000

With an elegant stylish interior, this detached family-house is set within a peaceful position with mature gardens. 

Langley Burrell

5 Bedroom Detached House | Guide Price £800,000

Available to the market for the first time in over 40 years, an exquisite Grade II Listed timber-framed farmhouse accomp...

Thompsons Hill, Sherston

3 Bedroom Detached House | Offers Over £800,000

Situated on the peaceful edge of the village, this very attractive detached period cottage occupies a generous 0.65 acre...

Tetbury Lane, Crudwell

4 Bedroom Detached House | £825,000

An excellent, well-appointed detached modern house occupying a southerly position overlooking fields within the highly s...

James Pyle & Co (Sherston)

Swan Barton, Sherston, Wiltshire, SN16 0LJ

01666 840886

How much is your home worth?

Use our short form to request a valuation of your property.

Request a Valuation

Mortgage Calculator

Amount Borrowed: £
Total Amount Repayable: £
Total Monthly Payment: £
©2026 The Guild of Property Professionals. All rights reserved. Terms and Conditions | Privacy Policy | Cookie Policy | Complaints Policy | Members Login
The Guild of Property Professionals Trading Address: 121 Park Lane, London W1K 7AG. GPEA Limited. Registered in England & Wales.  Company No: 02819824.  Registered Office Address: 2 St. Stephen's Court, St. Stephen's Road, Bournemouth, Dorset, England, BH2 6LA.  VAT Registration No: 576 8795 61
Book a Property Valuation Update Cookies Preferences