Lidstone, Chipping Norton, OX7

Guide Price
£1,250,000
SSTC
This property listing is now SSTC

4 Bedroom Semi-Detached House for sale in Chipping Norton

2 4 3

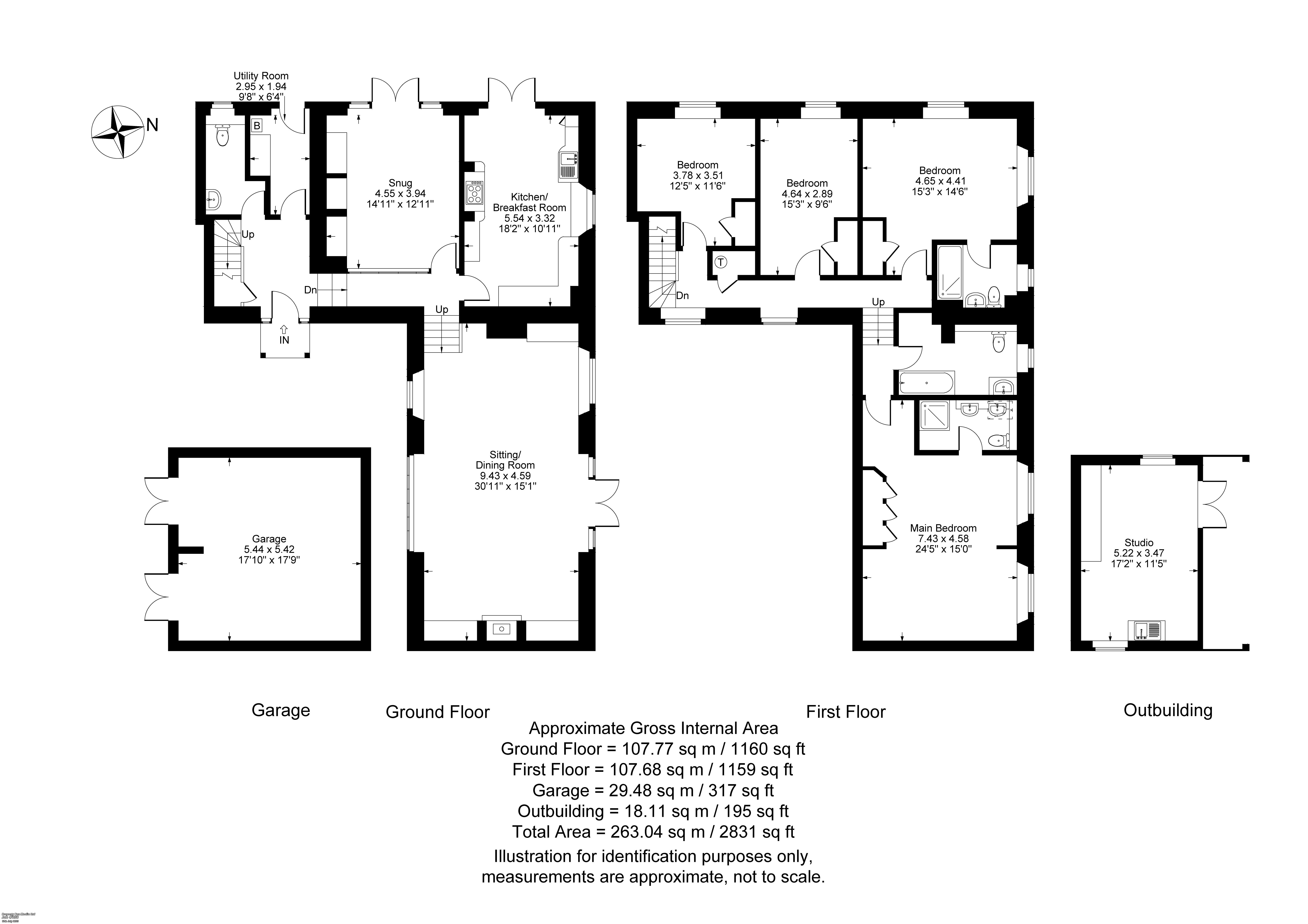
A Unique and Extremely Impressive Converted Barn set in nearly ¾ of an Acre of Gardens, along with Fine Countryside Views and Detached Home Office/Studio.

Pitched Canopy Porch, Hardwood Flooring, and Door to

Entrance Hall - Attractive Welsh Slate Tiled Floor. Stairs to First Floor Level with Under Stairs Cupboard.

Cloakroom – Comprising of White Suite of WC and Hand Wash Basin. Welsh Slate Tiled Floor and Double Glazed Window to Rear Aspect.

Open Plan Dining/Sitting Room – Attractive Stone Fireplace with Wood Burning Fire and Stone Hearth and Exposed Wooden Floor. Range of Built in Shelves, Built in Dresser with Shelves. Full Length Double Glazed Panelled Picture Window to Front Aspect. Double Glazed Window to Front Aspect and Double Glazed Window to Rear Aspect with Far Reaching Views towards Rolling Countryside and Double Glazed French Doors to Paved Patio Area. Three Quarter Glass Panelled Divide between Hallway and Dining Room/Lounge.

Separate Snug with French Doors leading out to Paved Patio Area.

Kitchen/Breakfast Room – Fitted with a Range of Matching Wall and Base Units with inset Single Bowl Sink Unit, Integrated Dishwasher and Built in Larder Cupboard. Space for Induction Rangemaster Cooker, Welsh Slate Floor. Fitted Breakfast Bar Adjoining a Full Length Double Glazed Window to Rear Aspect with Views towards Rolling Countryside. Double Glazed French Doors to Paved Patio Area.

Utility Room Fitted with a Range of Cupboards and Worksurfaces which have Plumbing for Washing Machine and Tumble Dryer beneath. Freestanding Oil Central Heating Boiler and Welsh Slate Floor. Hardwood Stable Door to Garden.

First Floor Landing – Two Double Glazed Windows to Front Aspect, Built-in Airing Cupboard.

Master Bedroom – Two Double Glazed Windows to Rear Aspect with Fine Countryside Views. Exposed Timbers, Exposed Wooden Floor. Range of Built in Wardrobes. En-Suite Shower Room – Comprising of White Suite of Double walk in Shower Cubicle with Handheld Rain Shower Over. Twin Hand Wash Basin on Vanity and Low Level WC. Fully Tiled Walls, Tiled Floor and Exposed Timber.

Guest Bedroom – Double Glazed Windows to Side and Rear Aspect with Fine Countryside Views. Exposed Wooden Floor and Exposed Beams. Built in Wardrobes. En-Suite Bathroom – Comprising of White Suite Double walk in Shower Cubicle with Handheld and Rain Shower Over. Pedestal Hand Wash Basin, Low Level WC, Fully Tiled Walls. Double Glazed Window with Shutters and Fine Countryside Views. Exposed Wooden Floor.

Bedroom Three – Double Glazed Windows to Side Aspect, Exposed Timber Floors, Built in Wardrobe and Exposed Timber Beams. Access to Loft Space.

Bedroom Four – Double Glazed Windows to Side Aspect, Exposed Timber Floor and Built in Wardrobe.

Family Bathroom – Comprising of White Suite of Panel Bath with Separate Shower over. Hand Wash Basin with Vanity Unit Below, Low Level WC. Part Panelled Walls, Exposed Wooden Floor, Double Glazed Window to Rear Aspect with Shutters. Views over Open Countryside.

Outside the Property is Set in Just Under ¾ of an Acre of Mature Landscaped Gardens. It is Approach Via a Gravel Driveway to an Attached Double Garage with Wooden Swing Doors to The Front with Light and Power Connected, Loft Area for Storage.

The Gardens are Laid to the Rear and Side of the Property and Back onto Fields and Woodlands. There are Views over Open Fields and Woodland. There is a Raised Paved Patio Enjoying the Views with Steps Down to a Lawn Area which then leads through to a Wild Garden Meadow with Garden Pond. There is a Greenhouse and Vegetable Area with Raised Beds. There is a Small Orchard Area with a Variety of Fruit Trees.

Within the Gardens is a Detached Studio/Office with Decked Area Enjoying the Fine Countryside Views. The Studio/Office boasts French Doors to the Front Aspect with Double Glazed Windows to Side Aspect including Light and Power and Water. There is Also a Single Stainless Steel Sink with Cupboards below. The Studio/Office has Internet Connection.

The Property benefits from Oil Central Heating, Private Drainage and Double Glazed Windows.

Lidstone is a hamlet on the River Glyme in Oxfordshire, about 3 miles east of Chipping Norton. The hamlet is in Enstone civil parish, about 1+1?4 miles west of Enstone

Enstone, a pretty village lies to the north west of Woodstock and is surrounded by delightful countryside with an extensive network of footpaths and bridleways. The village comprises mainly period properties and benefits from two public houses, a village shop and Post Office and a primary school. Approximately 3 miles distant is the mainline station at Charlbury which offers a popular service to London Paddington. The charming town of Woodstock offers a greater selection of day to day shopping, public houses, cafes and restaurants with the historic City of Oxford providing a more comprehensive range of shopping and leisure facilities.

Chipping Norton c. 5 Miles
Woodstock c.7 Miles
Oxford c. 15 Miles
Deddington c. 10 Miles
Banbury c. 12 Miles
Cheltenham c. 28 miles
Birmingham c. 50 miles
London c. 70 miles
Charlbury or Kingham to London, c. 1 hour
Bicester North or Banbury to London, c. 1 hour

Important Information

  • This is a Freehold property.

Property Ref: 625517_CHN230089

Share:

Similar Properties

Mill Lane, Chipping Norton, Oxfordshire, OX7

4 Bedroom House | Guide Price £1,200,000

A Truly Rare Opportunity to Purchase a Detached Residence Set In 2.5 Acres in This Quiet and Peaceful Location Just on T...

Swinbrook Road, Shipton-Under-Wychwood, OX7

4 Bedroom Detached House | Guide Price £1,000,000

A Rarely Available Four Bedroom Impressive and Substantial Detached Residence Set in Gardens of Just Over Half an Acre w...

Brookside, Broadwell, Moreton-In-Marsh, Gloucestershire, GL56

2 Bedroom Detached House | Offers in excess of £1,000,000

A completely refurbished stone built two bedroom detached residence, situated in an elevated position within this highly...

Mark David (Chipping Norton)

Chipping Norton, Oxfordshire, OX7 5NA

01608 644 944

How much is your home worth?

Use our short form to request a valuation of your property.

Request a Valuation

Mortgage Calculator

Amount Borrowed: £
Total Amount Repayable: £
Total Monthly Payment: £
©2026 The Guild of Property Professionals. All rights reserved. Terms and Conditions | Privacy Policy | Cookie Policy | Complaints Policy | Members Login
The Guild of Property Professionals Trading Address: 121 Park Lane, London W1K 7AG. GPEA Limited. Registered in England & Wales.  Company No: 02819824.  Registered Office Address: 2 St. Stephen's Court, St. Stephen's Road, Bournemouth, Dorset, England, BH2 6LA.  VAT Registration No: 576 8795 61
Book a Property Valuation Update Cookies Preferences