Cricket Ground Road, Chislehurst

Asking Price
£2,000,000

6 Bedroom Land for sale in Chislehurst

6
  • Plot B Choose which planning consent suits your vision Consent to build an 8,000 sq ft house or a 5,500 sq ft house Coveted Cricket Ground Road position Walk to Chislehurst station 0.6 miles Walk...

Background

The Orchard is currently a substantial detached complex of 0.583 acres which has been owned by the present occupants for 48 years and has proved to be a most magnificent family home.

The main buildings were constructed in 1960 and the detached indoor swimming pool was constructed in 1986. The existing house comprises 4/5 bedrooms, kitchen, dining room, lounge and study. There is also a self-contained annexe known as Orchard Cottage. There is garaging for 6 cars and parking space on the front and side driveways for approx. 10 more cars.

The cricket ground immediately opposite The Orchard serves as a huge front garden maintained free of charge by Chislehurst & West Kent Cricket Club but is always open to the public, except when cricket matches are being played.

Plot B - £2,000,000

The site is now for sale divided into two plots (this is Plot B), each has two valid planning consents to give purchasers the opportunity of deciding themselves which consent to utilise.

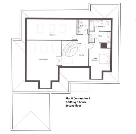
CONSENT NUMBER ONE granted 10.12.24 to build one 6-bedroom 8,000 sq ft detached house with integral garaging. The planning reference number is 24/01815/FULL1 which can be viewed on the Bromley planning portal.

CONSENT NUMBER TWO granted 3.11.2023 to build one 5-bedroom 5,500 sq ft house with integral garage. The planning reference number is 23/02863/FULL1 which can be viewed on the Bromley planning portal.

Stamp Duty Saving

You will make a significant saving on stamp duty only paying the tax on the price of the land, rather than on the new build house.

The many benefits of Living in Chislehurst

Chislehurst is one of the most expensive parts of south-east London. Much of the pretty village’s charm and rural feel are derived from its surrounding commons, which were saved from development by residents at the end of the 19th century and are now protected by an Act of Parliament. Along with the village atmosphere that families crave, the big attraction for house hunters is Chislehurst’s close proximity to Central London, Canary Wharf and the M25.

Transport

Chislehurst is only 8 miles from Junction 4 of the M25. There are trains from Chislehurst station to Cannon Street that take 29 minutes, while services to London Bridge take 21 minutes. It takes 29 minutes to Charing Cross, 24 minutes to Waterloo and 41 minutes to Blackfriars. Nearby Bickley Station has direct line service to London Victoria taking only 24 minutes.

Schools

Chislehurst benefits from a variety of good private schools nearby, particularly Bromley High School for Girls and Eltham College for Boys (girls also in sixth form), Farringtons School for Girls and Babbington House (co-ed aged 3 – 11).

Highly rated state infant schools include Mead Road, Edgebury in Belmont Lane and St Nicholas C of E in School Road.

At Secondary Level there is Bullers Wood (girls aged 11 – 18), St Nicholas Lane, Chislehurst School for Girls and Coopers (co-ed aged 11-18).

Hospitals

Chislehurst is close to the Princess Royal University Hospital (PRUH), Orpington Hospital, Beckenham Beacon and Queen Mary’s Hospital, Sidcup.

There are also two private hospitals nearby namely Chelsfield Park Hospital, Orpington and The Sloane Hospital in Bromley.

Leisure and the Arts

Chislehurst is a sport place, with the Chislehurst and West Kent Cricket Club in Cricket Ground Road, a tennis club in Empress Drive and the golf club in Camden Park Road.

There is a Vue cinema in Bromley town centre and the Churchill Theatre. Virgin Active has a swimming pool at its Chislehurst branch on the A20 Sidcup By-Pass.

Shops and Restaurants

The two shopping areas are along the High Street and Royal Parade. The High Street is dominated by a lovely duck pond at one end and a large Sainsbury’s at the other. Most of the shops are independent, but there are many chain restaurants, including Côte, Giggling Squid and Zizzi.

Chislehurst also has various excellent pub-restaurants including The Bull on Royal Parade, The Tigers Head and The Crown, both overlooking the Common, and the The Queen’s Head in the High Street.

Chislehurst Churches

Christ Church C of E in Lubbock Road, Chislehurst Methodist in Prince Imperial Road, St Nicholas C of E in Church Lane, St Patrick Roman Catholic in Red Hill, St Mary’s Catholic Church in Crown Lane and Ichthus Christian Fellowship in the High Street.

Further Interest

Please call Richard Piddock or Lorraine Gatward at jdm Chislehurst to discuss this opportunity in more detail and arrange a site visit.

NB

The front image is computer generated

Any journey times/distances given are approximate and have been sourced from Google Maps and Trainline.com

Material Information

• Prospective purchasers must review the planning consent for themselves on the London Borough of Bromley planning portal to confirm the exact details of the consent they wish to pursue

• Electricity: Mains supply

• Gas: Mains supply

• Sewerage: Mains supply

• Council Tax: Existing house Bromley Band H

• This is a Conservation area

• There is a tree with a specific TPO to the front of Plot A

Important Information

  • This is a Freehold property.

Property Ref: CHI250286

Share:

Similar Properties

Park Farm Road

6 Bedroom Detached House | Asking Price £2,000,000

This fabulous six bedroom detached home offers everything you could want from a spacious family property. Approximately...

Heathfield, Chislehurst

5 Bedroom Detached House | Asking Price £1,850,000

Superbly located in Heathfield, this family home is just a short stroll past the picturesque pond and common into Chisle...

Oakwood Close, Chislehurst

4 Bedroom Detached House | Asking Price £1,750,000

Asking price £1,750,000 - £1,800,000.Substantial home in a highly favoured private cul-de-sac, set within beautiful grou...

Cricket Ground Road, Chislehurst

6 Bedroom Land | Asking Price £2,200,000

PLOT A - TWO PLANNING CONSENTS AVAILABLE – AN EXCEPTIONAL PLOT IN CHISLEHURST Choose which consent best suits your visio...

St. Pauls Cray Road, Chislehurst

6 Bedroom Detached House | Asking Price £2,250,000

It is a true pleasure to offer this majestic Grade ll listed home which embodies the historic attraction of living in Ch...

Park Farm Road, Bickley

6 Bedroom Detached House | Asking Price £3,000,000

This is an extraordinarily handsome property. With immense kerb appeal, stunning Edwardian red brick architecture, elega...

jdm Chislehurst (Chislehurst)

Chislehurst, Kent, BR7 5AE

020 8325 8000

How much is your home worth?

Use our short form to request a valuation of your property.

Request a Valuation

Mortgage Calculator

Amount Borrowed: £
Total Amount Repayable: £
Total Monthly Payment: £
©2026 The Guild of Property Professionals. All rights reserved. Terms and Conditions | Privacy Policy | Cookie Policy | Complaints Policy | Members Login
The Guild of Property Professionals Trading Address: 121 Park Lane, London W1K 7AG. GPEA Limited. Registered in England & Wales.  Company No: 02819824.  Registered Office Address: 2 St. Stephen's Court, St. Stephen's Road, Bournemouth, Dorset, England, BH2 6LA.  VAT Registration No: 576 8795 61
Book a Property Valuation Update Cookies Preferences