Cottwood, Riddlecombe

Guide Price
£350,000

2 Bedroom Detached House for sale in Chulmleigh

1 2 2
  • NO ONWARD CHAIN GRADE II LISTED PERIOD DETACHED THATCHED COTTAGE CHARACTER FEATURES GARAGE & PARKING 2 DOUBLE BEDROOMS 2 BATHROOMS COSY SITTING/DINING ROOM KITCHEN AND LARGE UTILITY ROOM PICTURESQ...

Set along a quiet country lane and surrounded by just a few neighbouring properties, this Grade II listed detached thatched cottage offers a distinctive blend of period features and practical space, complemented by a standout garden and private parking.

The approach leads to the driveway which provides ample parking and continues up to the garage. From here, a path runs behind the garage with steps rising to a raised decked balcony and summer house, creating an inviting spot to enjoy the outlook across the surrounding countryside.

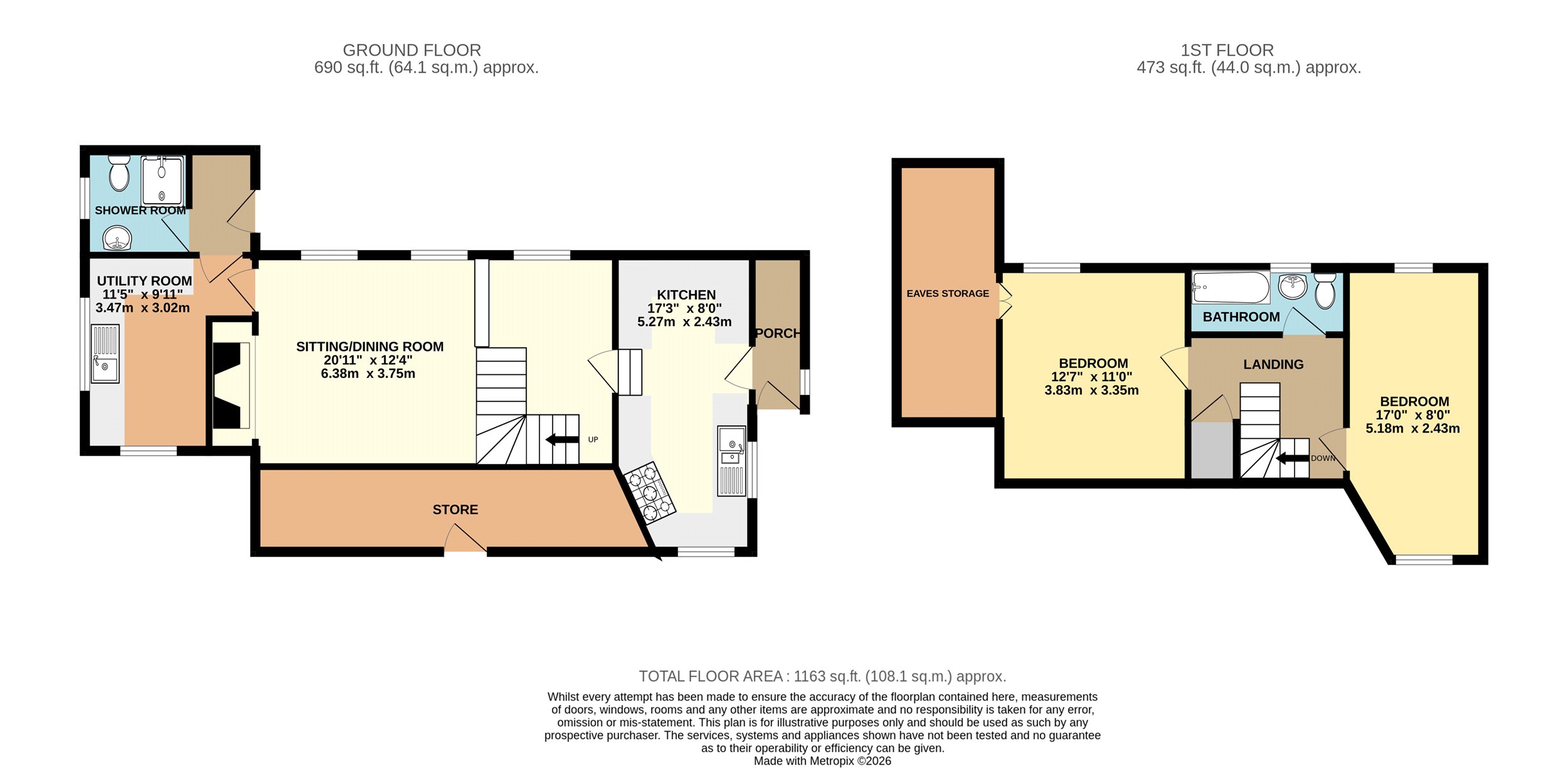
The cottage is entered through a useful porch, opening into the kitchen. This is arranged with wooden base and wall units, an inset sink, and under counter space and plumbing for white goods. A feature Aga style cooker provides a focal point. From the kitchen, steps lead up to the sitting dining room which forms the heart of the home. The room showcases exposed beams and an inglenook fireplace housing a wood burning stove, complete with the original bread oven. Stairs rise from this room to the first floor.

From the sitting dining room, the layout continues through to the utility room, again fitted with wooden wall and floor cabinets and under counter space and plumbing for white goods. Just off the utility is a shower room, and a rear porch provides an additional exit to the outside.

On the first floor, there are two bedrooms positioned at either end of the cottage, with a three piece bathroom suite located centrally. The larger bedroom also benefits from access into a sizeable eaves storage space.

Outside, there is a store running nearly the length of the property, housing the hot water tank. The gardens are arranged to provide a variety of areas to enjoy. A path to the front is bordered by mature shrubs and plants and continues around the cottage. To the side, a walled courtyard offers access through to the rear. Steps rise to the main garden which has been previously landscaped into a raised layout, largely laid to lawn with a further raised level and patio areas. Several mature trees provide structure and privacy, and there is a useful garden shed. Steps then return down towards the cottage, with a gate leading back onto the track.

Construction – Stone/Cobb with part thatch and part tiled roof

Important Information

  • This is a Freehold property.
  • This Council Tax band for this property is: C
  • EPC Rating is E

Property Ref: TOR250204

Share:

Similar Properties

Hollocombe, Chulmleigh

4 Bedroom Semi-Detached House | Guide Price £350,000

Positioned in a FANTASTIC RURAL SETTING, this semi-detached character property brings with it expansive entertaining spa...

Torrington Road, Winkleigh

3 Bedroom House | Guide Price £350,000

This beautifully converted former mill barn blends historic character with modern comfort, featuring vaulted ceilings, e...

Pathfields, Torrington

3 Bedroom Semi-Detached House | Asking Price £295,000

Beautifully presented semi-detached family home in a sought-after area of Great Torrington. Offering three double bedroo...

Willow Grove, Stibb Cross

4 Bedroom Detached House | Offers in excess of £355,000

Charming Detached Family Home in Peaceful Devon Village – Close to Coast and Countryside .An EXECUTIVE style 4 bed house...

Tower View, Buckland Brewer

4 Bedroom Semi-Detached House | Guide Price £375,000

This well improved four-bedroom home offers spacious living including a bright sunroom with garden access, a modern kitc...

Ashreigney, Chulmleigh

4 Bedroom Detached House | Guide Price £375,000

With the most amazing views across the rolling Devon countryside to Dartmoor, an ideal opportunity to convert a former a...

Webbers Torrington (Torrington)

Torrington, Devon, EX38 8HN

01805 624334

How much is your home worth?

Use our short form to request a valuation of your property.

Request a Valuation

Mortgage Calculator

Amount Borrowed: £
Total Amount Repayable: £
Total Monthly Payment: £
©2026 The Guild of Property Professionals. All rights reserved. Terms and Conditions | Privacy Policy | Cookie Policy | Complaints Policy | Members Login
The Guild of Property Professionals Trading Address: 121 Park Lane, London W1K 7AG. GPEA Limited. Registered in England & Wales.  Company No: 02819824.  Registered Office Address: 2 St. Stephen's Court, St. Stephen's Road, Bournemouth, Dorset, England, BH2 6LA.  VAT Registration No: 576 8795 61
Book a Property Valuation Update Cookies Preferences