Sea Pink Way, Jaywick, Clacton-on-Sea

£250,000

Land for sale in Clacton-on-Sea

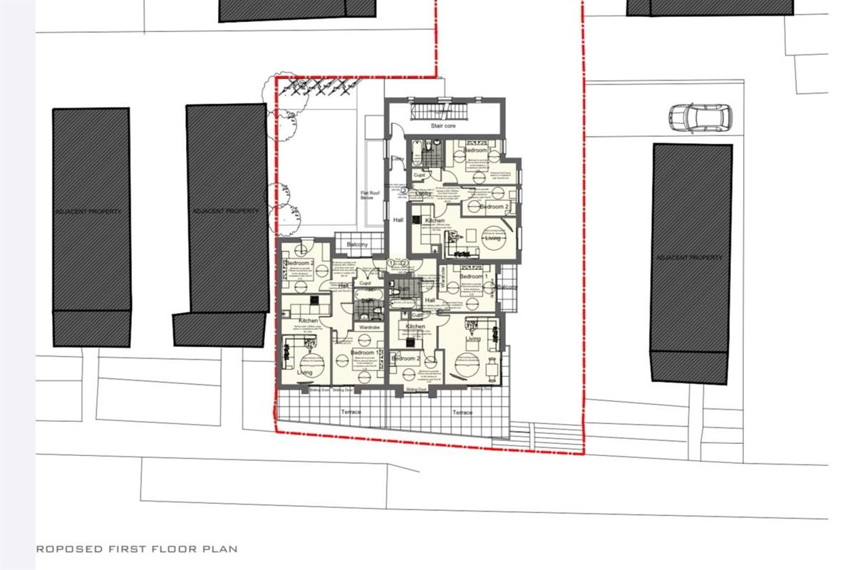
** SEAFRONT DEVELOPMENT ** Planning approved for this attractive block of SEVEN APARTMENTS. situated directly on the seafront with sandy beaches. Consisting of 6 x two bedroom and 1 x three bedroom all with an allocated parking space.

Tenure: Freehold

Agents Note
Full information can be found on the planning portal via https://idox.tendringdc.gov.uk/online-applications/applicationDetails.do?activeTab=documents&keyVal=OCS432QB0GS00

Important Information

  • This is a Freehold property.

Property Ref: 5628112_CS0041

Share:

Similar Properties

Crome Road, Clacton-on-Sea

3 Bedroom Bungalow | £250,000

Located on the popular Cann Hall Development and situated on a corner plot with driveway, garage and the potential for a...

Pallister Road, Clacton-on-Sea

Shop | £250,000

Situated in Clacton-on-Sea's town centre, we are delighted for offer for sale the investment opportunity to acquire this...

Pier Avenue, Clacton-on-Sea

3 Bedroom Semi-Detached House | £250,000

We are pleased to offer for sale this mixed commercial and residential investment opportunity consisting of a fully let...

Rosemary Road, Clacton-on-Sea

3 Bedroom Flat | £260,000

This FREEHOLD TOWN CENTRE PROPERTY comprises of a GROUND FLOOR COMMERCIAL premises and a SPLIT LEVEL THREE BEDROOM APART...

Rosemary Road, Clacton-on-Sea

Shop | £260,000

This freehold town centre property comprises of a ground floor commercial premises and a split level three bedroom apart...

Thorpe Road, Clacton-on-Sea

3 Bedroom Chalet | £260,000

Situated in this non-estate location, we are delighted to offer for sale this three bedroom semi detached chalet house w...

Mike Vincent & Son (Clacton on Sea)

Clacton on Sea, Essex, CO15 1SD

01255220232

How much is your home worth?

Use our short form to request a valuation of your property.

Request a Valuation

Mortgage Calculator

Amount Borrowed: £
Total Amount Repayable: £
Total Monthly Payment: £
©2025 The Guild of Property Professionals. All rights reserved. Terms and Conditions | Privacy Policy | Cookie Policy | Complaints Policy | Members Login
The Guild of Property Professionals Trading Address: 121 Park Lane, London W1K 7AG. GPEA Limited. Registered in England & Wales.  Company No: 02819824.  Registered Office Address: 2 St. Stephen's Court, St. Stephen's Road, Bournemouth, Dorset, England, BH2 6LA.  VAT Registration No: 576 8795 61
Book a Property Valuation Update Cookies Preferences