Holland Road, Little Clacton, Clacton-on-Sea

£300,000
SSTC
This property listing is now SSTC

2 Bedroom Detached House for sale in Clacton-on-Sea

1 2 1
  • Popular Little Clacton Area
  • Development Plot
  • Paddock Views to Rear
  • Pre-App Approval (time limited)
  • Current Cottage on Site
  • Two Residential Dwellings (STPP)

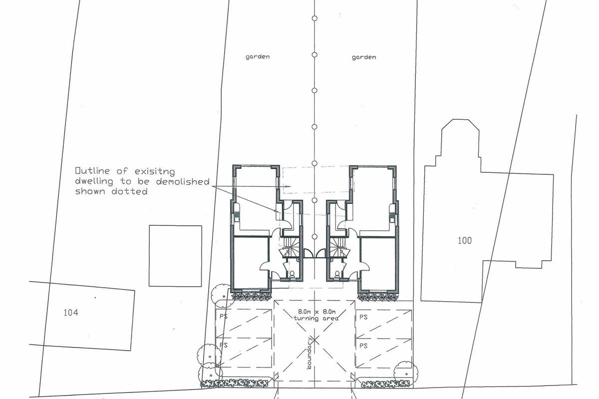
PLOT POTENTIAL - Occupying a semi rural position on the outskirts of Little Clacton, this plot approaching 1/4 of an acre has had time limited pre-app approval for 2 detached dwellings (STPP). The site, that backs onto paddocks, currently has a detached cottage which will need to be demolished.

Council Tax Band: Exempt
Tenure: Freehold

Outside
The plot measures just under 1/4 of an acre and has currently been cleared of the majority of the overgrowth. There is currently a detached cottage which sits within the plot and will need to be demolished. The plot occupies a non estate position on the outskirts of Little Clacton village and has paddock/meadow views to the rear. As afore mentioned the plot has had a pre-approval letter issued under reference number 23/30045/PREAPP for two detached dwellings from Tendring District Council although this is time limited may change. Also this is not outline or full planning consent, just a guidance, and it would be up to any prospective buyer to apply for their own planning permission. Further details can be obtained through the agent Mike Vincent and Son

Important Information

  • This is a Freehold property.

Property Ref: 5628112_RS0698

Share:

Similar Properties

Coan Avenue, Clacton-on-Sea

2 Bedroom Bungalow | £300,000

Located within the highly sought after 'Royals Area' on the western side of Clacton, this TWO BEDROOM DETACHED BUNGALOW...

Fleetwood Avenue, Holland-on-Sea, Clacton-on-Sea

2 Bedroom Bungalow | £300,000

Located in the popular area of Holland on Sea, this fully detached bungalow benefits from two double bedrooms as well as...

Hayes Road, Clacton-on-Sea

6 Bedroom Semi-Detached House | £300,000

Located on the edge of Clacton's town centre, we are delighted to offer for sale this well-presented six bedroom, three-...

Manchester Road, Holland-on-Sea

2 Bedroom Bungalow | Offers Over £320,000

We are delighted to offer for sale this two bedroom, detached bungalow offered with vacant possession, situated in the p...

Fleetwood Avenue, Holland-on-Sea, Clacton-on-Sea

2 Bedroom Bungalow | £320,000

Situated in the popular location of Holland on sea we are delighted to offer for sale this two bedroom detached bungalow...

No Onward Chain, Bretten Close, Clacton-on-Sea

4 Bedroom Detached House | £323,400

This FOUR BEDROOM DETACHED FAMILY HOME is located on the Grange Park development and benefits from en suite shower, two...

Mike Vincent & Son (Clacton on Sea)

Clacton on Sea, Essex, CO15 1SD

01255220232

How much is your home worth?

Use our short form to request a valuation of your property.

Request a Valuation

Mortgage Calculator

Amount Borrowed: £
Total Amount Repayable: £
Total Monthly Payment: £
©2025 The Guild of Property Professionals. All rights reserved. Terms and Conditions | Privacy Policy | Cookie Policy | Complaints Policy | Members Login
The Guild of Property Professionals Trading Address: 121 Park Lane, London W1K 7AG. GPEA Limited. Registered in England & Wales.  Company No: 02819824.  Registered Office Address: 2 St. Stephen's Court, St. Stephen's Road, Bournemouth, Dorset, England, BH2 6LA.  VAT Registration No: 576 8795 61
Book a Property Valuation Update Cookies Preferences