Lower Ballyartan Road, Londonderry

£80,000

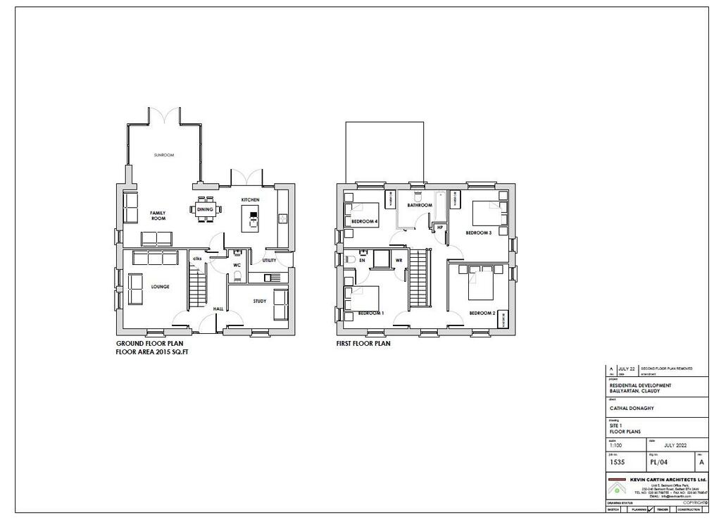
Land for sale in Claudy

  • Fantastic Opportunity to acquire a 2 storey building plot.
  • Detailed Plans available.
  • Plot overlook the River Faughan.
  • Located approximately 9 miles from Derry city.
  • Main transport links close by.
  • Services nearby.
  • LA11/2021/0424/F

Fantastic Opportunity to acquire a 2 storey building plot.

Important Information

  • This is a Freehold property.

Property Ref: 26766_BCV317592

Share:

Similar Properties

-12 Ballinteer Road, Macosquin, Coleraine, County Londonderry

Commercial Property | Offers in region of £80,000

.

Long Commons, Coleraine, County Londonderry

Terraced House | Offers Over £75,000

.

Causeway Street, Portrush, County Antrim

Retail Property (High Street) | Offers Over £85,000

.

Castleroe Road, Coleraine, County Londonderry

Farm Land | Offers Over £95,000

.

Brook Street, Coleraine, County Londonderry

3 Bedroom Terraced House | Offers Over £95,000

.

Bensons (Coleraine)

9 Dunmore Street, Coleraine, Co. Londonderry, BT52 1EL

028 7034 3677

How much is your home worth?

Use our short form to request a valuation of your property.

Request a Valuation

Mortgage Calculator

Amount Borrowed: £
Total Amount Repayable: £
Total Monthly Payment: £
©2025 The Guild of Property Professionals. All rights reserved. Terms and Conditions | Privacy Policy | Cookie Policy | Complaints Policy | Members Login
The Guild of Property Professionals Trading Address: 121 Park Lane, London W1K 7AG. GPEA Limited. Registered in England & Wales.  Company No: 02819824.  Registered Office Address: 2 St. Stephen's Court, St. Stephen's Road, Bournemouth, Dorset, England, BH2 6LA.  VAT Registration No: 576 8795 61
Book a Property Valuation Update Cookies Preferences