Badgers Croft Thringstone

£950,000

6 Bedroom Detached House for sale in Coalville

4 6 5
  • Individual Detached Home
  • Substantial Accommodation Over Four Floors
  • Six Reception Rooms
  • Six Bedrooms
  • Five Bathrooms/Shower Rooms
  • Impressive Lower Level Entertaining Suite
  • South Facing Garden
  • Energy Rating C
  • Council Tax Band G
  • Tenure Freehold

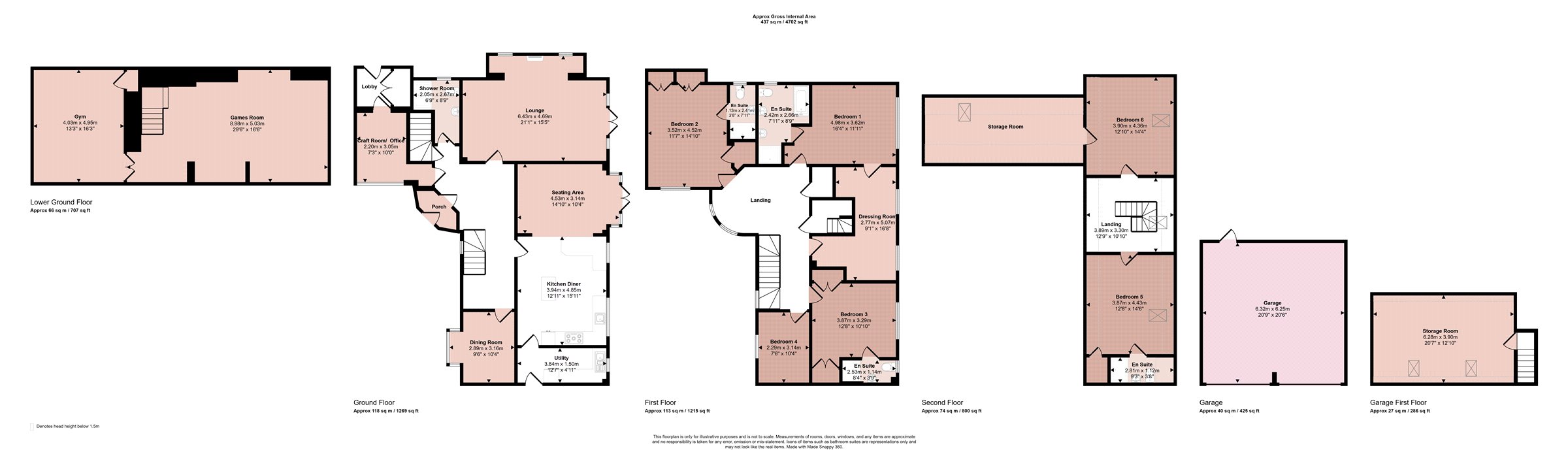
A rare and spectacular offering to the market, this individual home deceives upon first appearances and offers accommodation set across four floors with an impressive 4,700 sqft of accommodation. On the ground floor the welcoming hallway provides access to a split level living kitchen with handcrafted units and large informal seating area. Furthermore, on the ground floor is a lounge with inglenook fireplace, separate dining room and a craft room/home office, a utility room and ground floor shower room. Head downstairs into the real showpiece of the home where there is a lower level designed for entertaining in mind with a fabulous games room and home cinema, integrated bar and space for a pool table and situated off is a full sized gymnasium. Across the upper two floors are six double bedrooms with a showstopping principal bedroom suite with large bedroom, custom built walk-through dressing room and luxury bathroom. There are three further en-suite bedrooms. Outside, a vast block paved driveway provides generous parking with electric gated access to a modern built double garage with room over and extensive landscaped gardens with outdoor garden/hot tub room. The property features high quality fixtures and fittings throughout with bespoke cabinetry and upgraded bathroom and en-suites throughout.

PROPERTY OF THE WEEK



A rare and spectacular offering to the market, this individual home deceives upon first appearances and offers accommodation set across four floors with an impressive 4,700 sqft of accommodation. On the ground floor the welcoming hallway provides access to a split level living kitchen with handcrafted units and large informal seating area. Furthermore, on the ground floor is a lounge with inglenook fireplace, separate dining room and a craft room/home office, a utility room and ground floor shower room. Head downstairs into the real showpiece of the home where there is a lower level designed for entertaining in mind with a fabulous games room and home cinema, integrated bar and space for a pool table and situated off is a full sized gymnasium. Across the upper two floors are six double bedrooms with a showstopping principal bedroom suite with large bedroom, custom built walk-through dressing room and luxury bathroom. There are three further en-suite bedrooms. Outside, a vast block paved driveway provides generous parking with electric gated access to a modern built double garage with room over and extensive landscaped gardens with outdoor garden/hot tub room. The property features high quality fixtures and fittings throughout with bespoke cabinetry and upgraded bathroom and en-suites throughout.

Important Information

  • This is a Freehold property.
  • This Council Tax band for this property is: G
  • EPC Rating is C

Property Ref: BNT_BNT250920

Share:

Similar Properties

Barkby Road Queniborough

4 Bedroom Detached House | Guide Price £950,000

Rich in history and packed with original character features, this spacious 17th century farmhouse offers versatile accom...

Eaton Court Vicarage Lane

Not Specified | Guide Price £900,000

An outstanding investment opportunity to acquire a well-established over-60s residential complex comprising ten bungalow...

One Barrow Lane Charley

6 Bedroom Detached House | Offers in excess of £900,000

A rare opportunity to acquire this flexible six bedroomed detached country home situated in an idyllic location within C...

Whitwick Road Copt Oak

5 Bedroom Detached House | Guide Price £995,000

A period five bedroomed detached cottage with striking white exterior and Swithland slate roof with formal gardens surro...

Leicester Road Markfield

4 Bedroom Detached House | Guide Price £1,000,000

A stunning, 1711 originally built, four bedroomed residence being skillfully extended and luxuriously appointed. With no...

Main Street Pickwell

5 Bedroom Detached House | Guide Price £1,000,000

A most appealing, period residence having been significantly extended and modernised to the highest standard and offerin...

Bentons (Melton Mowbray)

47 Nottingham Street, Melton Mowbray, Leicestershire, LE13 1NN

01664 563892

How much is your home worth?

Use our short form to request a valuation of your property.

Request a Valuation

Mortgage Calculator

Amount Borrowed: £
Total Amount Repayable: £
Total Monthly Payment: £
©2026 The Guild of Property Professionals. All rights reserved. Terms and Conditions | Privacy Policy | Cookie Policy | Complaints Policy | Members Login
The Guild of Property Professionals Trading Address: 121 Park Lane, London W1K 7AG. GPEA Limited. Registered in England & Wales.  Company No: 02819824.  Registered Office Address: 2 St. Stephen's Court, St. Stephen's Road, Bournemouth, Dorset, England, BH2 6LA.  VAT Registration No: 576 8795 61
Book a Property Valuation Update Cookies Preferences