Stunning 4 Bedroom Barn Conversion

Asking Price
£1,300,000

4 Bedroom Not Specified for sale in Cockernhoe

3 4 3
  • STUNNING BARN CONVERSION
  • 4 Double Bedrooms
  • 2 Ensuite Bathrooms
  • Main Family Bathroom
  • Downstairs WC
  • 38ft Vaulted Sitting Room
  • Formal Dining Room
  • 22ft Kitchen/Breakfast Room
  • Utility Room
  • 2 Garages/Gym

* URBAN & RURAL COUNTRY HOMES * are proud to present this stunning 4 bedroom barn conversion situated in the quiet hamlet of Cockernhoe. Nestled in a development of just 6 barn conversions, this property offers extensive living space with exposed beams and vaulted ceilings.

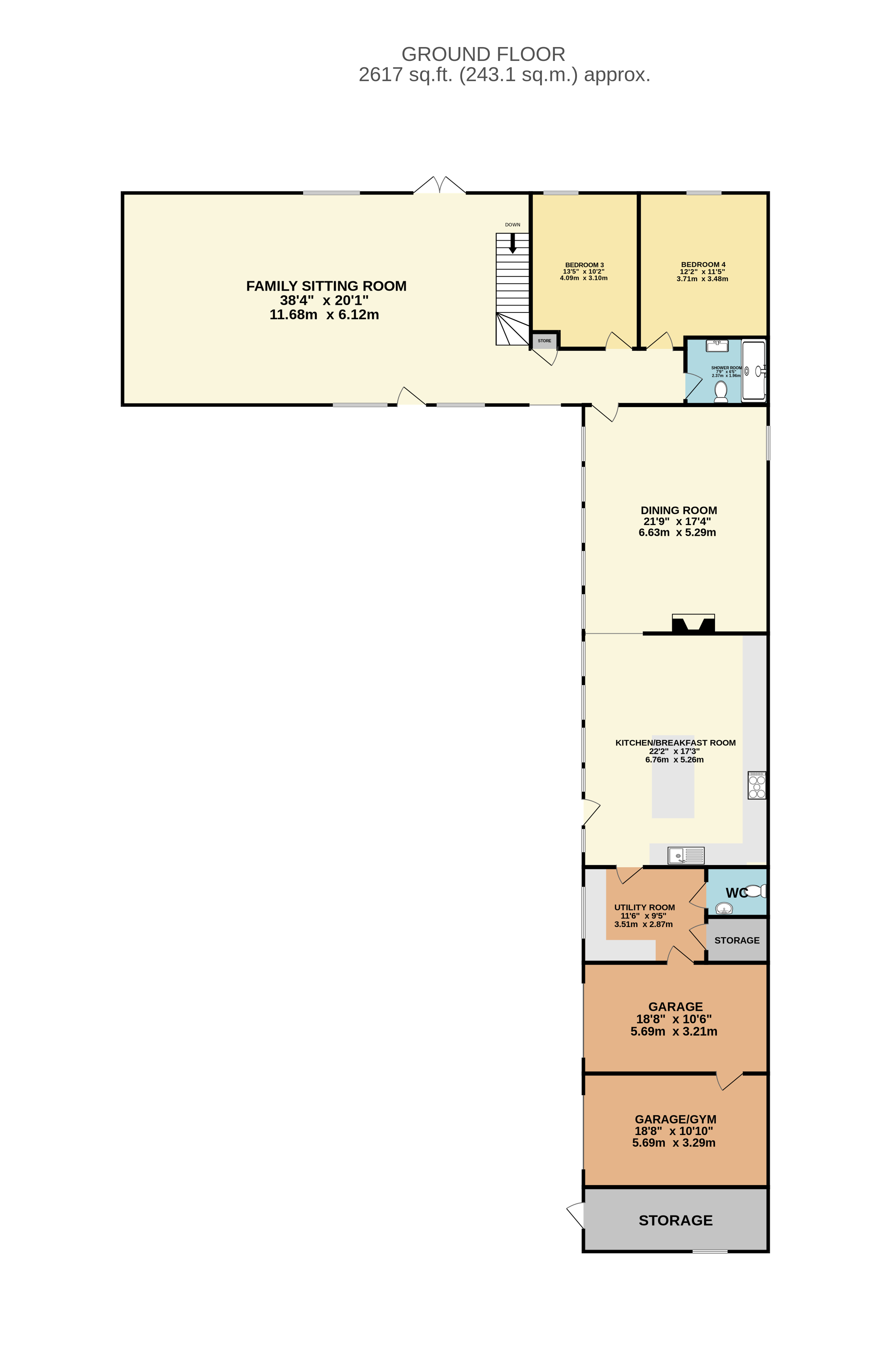
The property comprises a 38ft family sitting room with high vaulted ceilings and exposed beams together with a brick built fireplace, feature electric wood burner and integrated sound system throughout. There is also a 21ft dining room, 22ft kitchen/breakfast room / cosy lounge area with snooker table and log burner, utility, downstairs WC and 2 garages, one of which has been converted to a gym. There is also a downstairs bathroom and 2 double bedrooms on the ground floor. Upstairs there are 2 further double bedrooms, both with en-suite bathrooms with the master bedroom having the addition of a dressing room and separate shower and corner bath. Also, each bedroom has stairs to a duplex snug which are ideal for extra space, study area or storage rooms. Externally there is a gated entrance with shingle driveway for several cars, front and back gardens mostly laid to lawn with established shrubs and a pond to the rear and a decked area with hot tub.

THE LOCAL AREA

Cockernhoe is a little hamlet situated within a highly sought-after residential area, bordering the beautiful Hertfordshire countryside and just a short drive to the historical town of Hitchin where you will find access to the A1 motorway leading to London and the North. There is also a 15 minute drive to the M1 which gives access to North and South.

The area offers a range of local amenities including Asda supermarket, several doctors surgeries, dentists and the ever-popular village school as well as public transport links. With easy access to the M1 & A1 motorways, London Luton Airport, Hitchin Mainline Station & Luton Parkway Thameslink station, all within easy reach.

CLICK THROUGH for photos and full colour floorplan with measurements.

VIEWINGS BY APPOINTMENT ONLY

Important Information

  • This is a Freehold property.
  • This Council Tax band for this property is: G

Property Ref: STO250060

Share:

Similar Properties

Bespoke family home offering space throughout.

4 Bedroom Detached House | Offers in excess of £750,000

* URBAN & RURAL STOPSLEY * BESPOKE PROPERTY * This stunning 4 double bedroom family home, with no expense spared showcas...

Heavily extended 5 bedroom detached in Putteridge

5 Bedroom Detached House | Offers in excess of £600,000

* URBAN & RURAL STOPSLEY * HEAVILY EXTENDED * This family home covers just under 2000 sq. ft. and features 5 bedrooms, 3...

spacious 5 bed detached in Putteridge

5 Bedroom Detached House | Asking Price £599,995

* URBAN & RURAL STOPSLEY * EXTENDED * 5 BEDROOMS * This stunning 5 bedroom family home has been thoughtfully extended an...

Urban & Rural (Stopsley (Luton))

Stopsley (Luton), Bedfordshire, LU2 7UN

01582 422244

How much is your home worth?

Use our short form to request a valuation of your property.

Request a Valuation

Mortgage Calculator

Amount Borrowed: £
Total Amount Repayable: £
Total Monthly Payment: £
©2026 The Guild of Property Professionals. All rights reserved. Terms and Conditions | Privacy Policy | Cookie Policy | Complaints Policy | Members Login
The Guild of Property Professionals Trading Address: 121 Park Lane, London W1K 7AG. GPEA Limited. Registered in England & Wales.  Company No: 02819824.  Registered Office Address: 2 St. Stephen's Court, St. Stephen's Road, Bournemouth, Dorset, England, BH2 6LA.  VAT Registration No: 576 8795 61
Book a Property Valuation Update Cookies Preferences