Three bedroom bungalow and annexe

Offers in excess of
£600,000

4 Bedroom Detached Bungalow for sale in Colchester

3 4 2
  • Detached bungalow and annexe Two reception rooms Study Three bedrooms One bedroomed annexe Plot of 0.38 acres (STS) Off road parking Full replacement dwelling approval

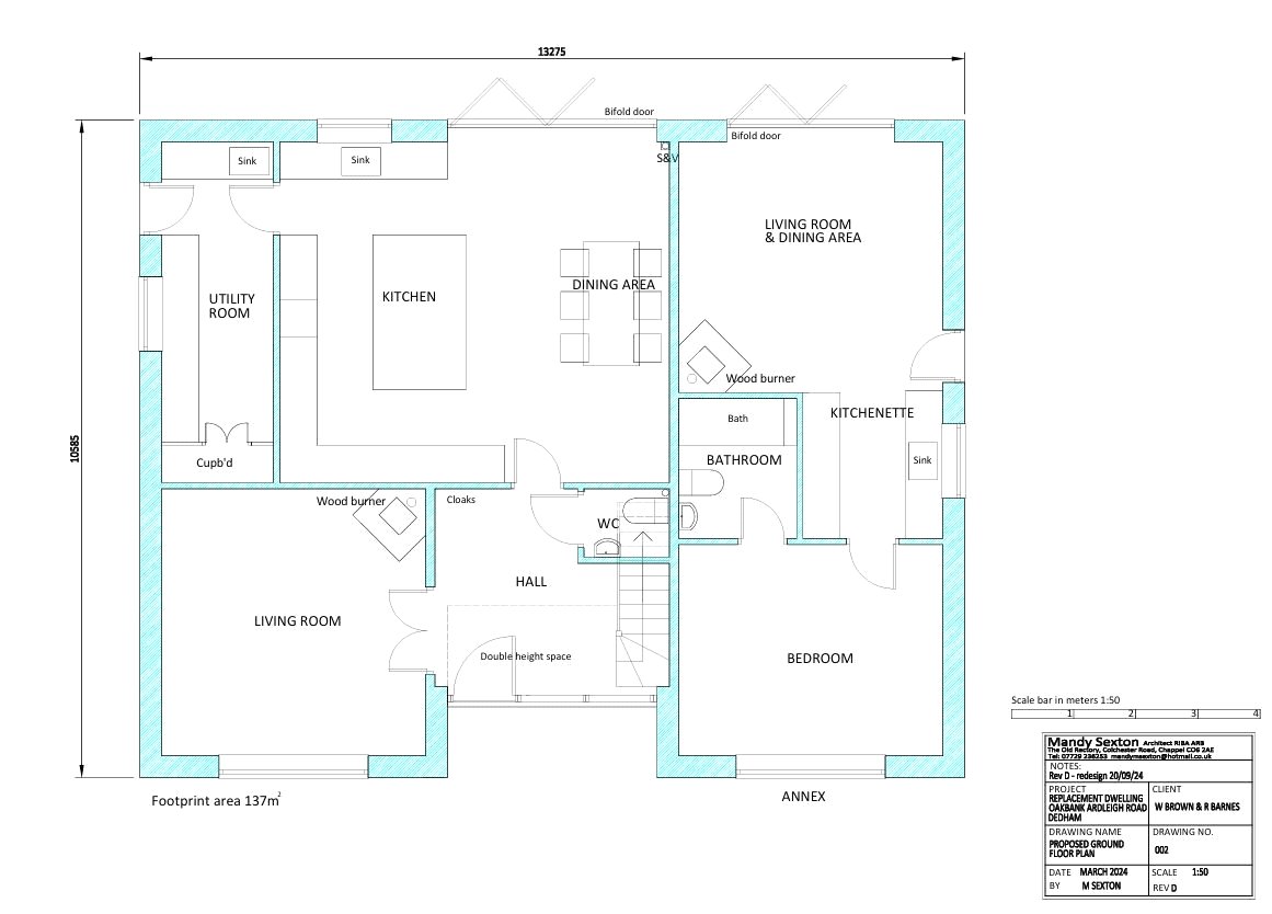
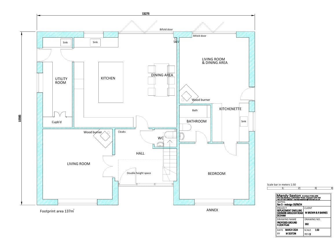
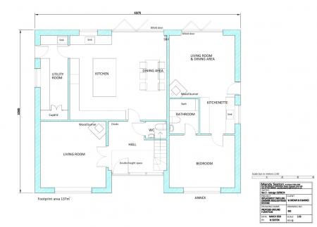
The property is entered via a welcoming hallway which leads into a generous living and dining room. This bright, triple-aspect space features French doors opening onto the garden, together with a central fireplace creating a focal point for the room. The kitchen is well-proportioned, fitted with a range of units and work surfaces, and offers direct access to the outside. A separate study provides an ideal space for home working or hobbies, while a cloakroom completes the living accommodation.

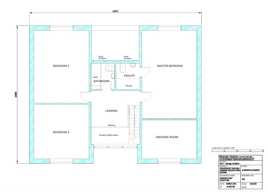
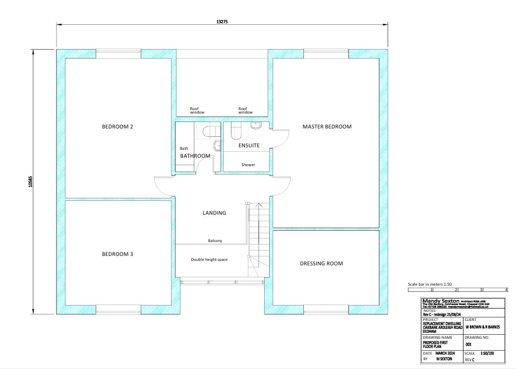
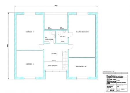
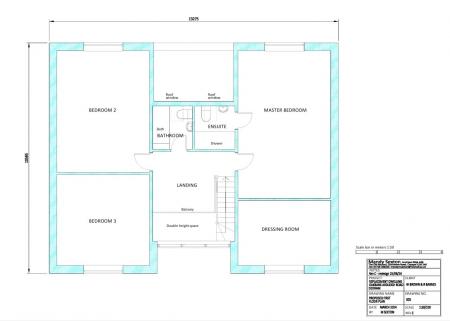
The bungalow offers three well-proportioned bedrooms, each with views to the gardens and flexible space for family use or guests. The main bedroom is a generous double, while the further two rooms provide scope for additional bedrooms, a dressing room, or home office if required. The family bathroom is fitted with a four-piece suite including a bath and separate shower, complemented by part-panelled walls and a rear-facing window providing natural light.

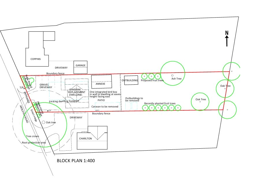
The property sits within a generous plot of approximately 0.38 acres (STS), offering a wide range of outdoor opportunities. To the rear, the east-facing gardens are predominantly laid to lawn with mature trees, planting, and a dedicated kitchen garden currently home to a chicken coop and beehive. There are various seating areas, providing space to relax and enjoy the outlook, while a number of outbuildings offer scope for storage or conversion to a home office if desired.

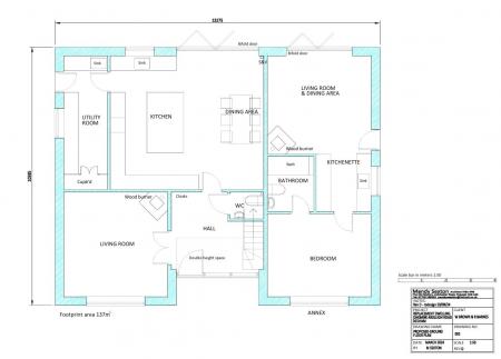
A recently constructed detached annexe complements the main residence, providing excellent additional accommodation. The annexe comprises a bright kitchen/family room, a cosy snug, a double bedroom, and a bathroom, creating an entirely self-contained space ideal for multi-generational living, guest accommodation, or as a potential rental opportunity.

Important Information

  • This is a Freehold property.
  • This Council Tax band for this property is: F
  • EPC Rating is E

Property Ref: DDH250332

Share:

Similar Properties

Four bedroom Link detached bungalow

4 Bedroom Link Detached House | Guide Price £600,000

Located in the heart of Bentley, this beautifully presented link-detached bungalow offers well-appointed flexible and sp...

Four-bedroomed detached house

4 Bedroom Detached House | Offers in excess of £600,000

This cottage on School Lane, Stratford St. Mary, is a beautifully presented detached home offering thoughtfully arranged...

Four bedroomed detached cottage

4 Bedroom Detached House | Guide Price £600,000

Set within the sought-after village of East Bergholt, this charming cottage offers well-proportioned and thoughtfully ar...

Three bedroomed detached bungalow

3 Bedroom Detached Bungalow | Offers Over £625,000

Commanding a highly desirable location in semi-rural Lawford, this exceptional new build detached, three-bedroomed bunga...

Four bedroom detached house

4 Bedroom Detached House | Guide Price £650,000

Set with countryside views, this beautifully presented home offers generous and versatile accommodation arranged over tw...

Four bedroomed semi-detached cottage

4 Bedroom Cottage | Guide Price £650,000

Set within the peaceful rural landscape of Horsley Cross, this distinctive Grade II listed residence presents a rare opp...

Kingsleigh Estate Agents (Dedham)

Dedham, Essex, CO7 6DE

01206 940123

How much is your home worth?

Use our short form to request a valuation of your property.

Request a Valuation

Mortgage Calculator

Amount Borrowed: £
Total Amount Repayable: £
Total Monthly Payment: £
©2026 The Guild of Property Professionals. All rights reserved. Terms and Conditions | Privacy Policy | Cookie Policy | Complaints Policy | Members Login
The Guild of Property Professionals Trading Address: 121 Park Lane, London W1K 7AG. GPEA Limited. Registered in England & Wales.  Company No: 02819824.  Registered Office Address: 2 St. Stephen's Court, St. Stephen's Road, Bournemouth, Dorset, England, BH2 6LA.  VAT Registration No: 576 8795 61
Book a Property Valuation Update Cookies Preferences