Marsh Hill, Sling, Coleford

£475,000

4 Bedroom Detached House for sale in Coleford

3 4 1
  • Four Bedroom Detached House
  • Off Road Parking, Garage
  • Enclosed Gardens
  • Spacious And Versatile Living Accommodation
  • No Onward Chain
  • EPC Energy Rating C, Council Tax Band D, Freehold

A SPACIOUS AND VERSATILE FOUR BEDROOM DETACHED FAMILY HOME SITUATED IN A POPULAR VILLAGE LOCATION. THE PROPERTY SUITS A FAMILY HAVING GENEROUS SIZED ROOMS THROUGHOUT, ENCLOSED 1/5TH ACRE GARDENS, AMPLE OFF ROAD PARKING AND A GARAGE. THE PROPERTY IS ALSO WITHIN WALKING DISTANCE OF THE WOODLAND.

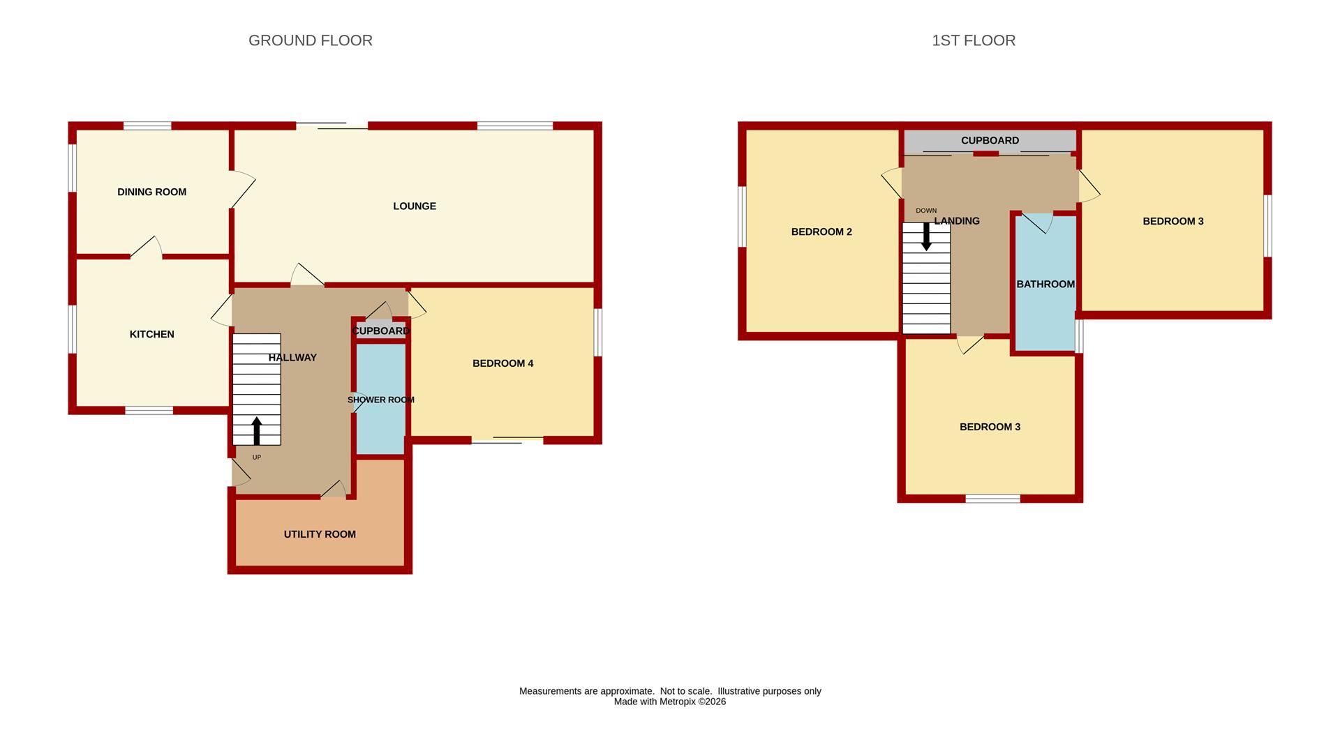
The property is accessed via a double glazed door into:

Utility Room - 2.44m x 3.35m (8'00 x 11'00) - Range of wall and base mounted units, stainless steel single drainer sink unit, space and plumbing for washing machine, power points, electrical consumer unit, rear aspect upvc double glazed window.

Hallway - Stairs leading to the first floor landing, radiator, storage cupboard with hanging and shelving, understairs storage, double glazed uPVC door to garden. Door into:

Shower Room - Shower cubicle with shower attachment, close coupled W.C, sink unit.

Lounge - 7.59m x 3.30m (24'11 x 10'10) - Power points, radiator, side and front aspect upvc double glazed windows. Front aspect upvc double glazed patio door.

Dining Room - 3.30m x 2.72m (10'10 x 8'11) - Radiator, power points, front and side aspect upvc double glazed windows. Door into:

Kitchen - 3.20m x 3.20m (10'06 x 10'06) - Range of wall, base and drawer mounted units, built in oven and grill with a four ring electric hob, power points, side and rear aspect upvc double glazed windows.

Bedroom 4 - 3.94m x 3.23m (12'11 x 10'07) - Radiator, power points, TV point, side aspect upvc double glazed window. Upvc double glazed patio doors leading out to the garden.

FROM THE INNER HALLWAY, STAIRS LEAD TO THE FIRST FLOOR:

Landing - Extensive range of fitted wardrobes with hanging rails and shelving, airing cupboard housing the boiler. Door into:

Bedroom 1 - 3.33m x 3.91m (10'11 x 12'10 ) - Radiator, power points, side aspect upvc double glazed window.

Bedroom 2 - 3.51m x 3.56m (11'06 x 11'08) - Radiator, power points, rear aspect upvc double glazed window.

Bedroom 3 - 3.23m x 3.35m (10'07 x 11'0) - Radiator, power points, side aspect upvc double glazed window.

Bathroom - Panelled bath with tiled surrounds, vanity unit with built in wash hand basin, radiator, close coupled W.C, side aspect frosted upvc double glazed window.

Outside - To the front of the property gated access lead to a parking area suitable for the parking of two/three vehicles which in turn leads to the garage. To the front you also have a raised balcony patio/seating area, lawned area with various shrubs, trees and bushes, far reaching views, pathway leads to the side giving access to the rear.

Garage - Accessed via up and over door.

Rear Garden - Mostly laid to lawn with mature shrubs, flowers, trees and bushes, greenhouse, patio/seating area, all enclosed by fencing and hedging surround.

Services - Mains water, mains drainage, mains gas, mains electric.

Water Rates - To be advised.

Local Authority - Council Tax Band: D
Forest of Dean District Council, Council Offices, High Street, Coleford, Glos. GL16 8HG.

Tenure - Freehold.

Viewings - Strictly through the Owners Selling Agent, Steve Gooch, who will be delighted to escort interested applicants to view if required. Office Opening Hours 8.30am - 7.00pm Monday to Friday, 9.00am - 5.30pm Saturday.

Directions - From our Coleford office proceed down to the traffic lights turning right onto Old Station Way, proceed over the next set of traffic lights and continue towards Sling proceeding straight over the crossroads towards Clements End where the property can be found on the right hand side.

Property Surveys - Qualified Chartered Surveyors (with over 20 years experience) available to undertake surveys (to include Mortgage Surveys/RICS Housebuyers Reports/Full Structural Surveys)

Property Ref: 34468225

Share:

Similar Properties

Kells Road, Berry Hill, Coleford

3 Bedroom Detached Bungalow | £475,000

Set for completion in early 2026, this STUNNING NEWLY BUILT THREE-BEDROOM PROPERTY boasts a HIGH SPECIFICATION INSIDE AN...

Crow Ash Road, Berry Hill, Coleford

5 Bedroom Detached House | Offers in excess of £475,000

A rare opportunity to own this ARCHITECT-DESIGNED FIVE DOUBLE BEDROOM home BUILT IN 1985, offering 2,768 SQ FT of FLEXIB...

Hillview Rise, Berry Hill, Coleford

4 Bedroom Detached House | £475,000

A BEAUTIFULLY PRESENTED and SPACIOUS FOUR-BEDROOM DETACHED HOME. This STUNNING PROPERTY boasts an IMPRESSIVE ENTERTAINME...

Castlemain, Parkend, Lydney

4 Bedroom Detached House | £500,000

Set within the SOUGHT AFTER VILLAGE OF PARKEND, this beautifully balanced FOUR-BEDROOM DETACHED HOME offers almost 2,000...

Church Walk, Viney Hill, Lydney

5 Bedroom Cottage | Guide Price £500,000

A CHARACTERFUL AND VERSATILE FIVE BEDROOM COTTAGE, offering FLEXIBLE ACCOMMODATION arranged over multiple levels with TW...

Wellmeadow, Staunton, Coleford

4 Bedroom Detached House | £519,000

Located in a SMALL CUL-DE-SAC within a POPULAR VILLAGE, this WELL-PRESENTED FOUR-BEDROOM DETACHED FAMILY HOME offers SPA...

Steve Gooch Estate Agents (Coleford)

Coleford, Gloucestershire, GL16 8HA

01594 835566

How much is your home worth?

Use our short form to request a valuation of your property.

Request a Valuation

Mortgage Calculator

Amount Borrowed: £
Total Amount Repayable: £
Total Monthly Payment: £
©2026 The Guild of Property Professionals. All rights reserved. Terms and Conditions | Privacy Policy | Cookie Policy | Complaints Policy | Members Login
The Guild of Property Professionals Trading Address: 121 Park Lane, London W1K 7AG. GPEA Limited. Registered in England & Wales.  Company No: 02819824.  Registered Office Address: 2 St. Stephen's Court, St. Stephen's Road, Bournemouth, Dorset, England, BH2 6LA.  VAT Registration No: 576 8795 61
Book a Property Valuation Update Cookies Preferences