30m South West Of, 77 Moneybrannon Road, Aghadowey, Coleraine

Offers in excess of
£75,000

Plot for sale in Coleraine

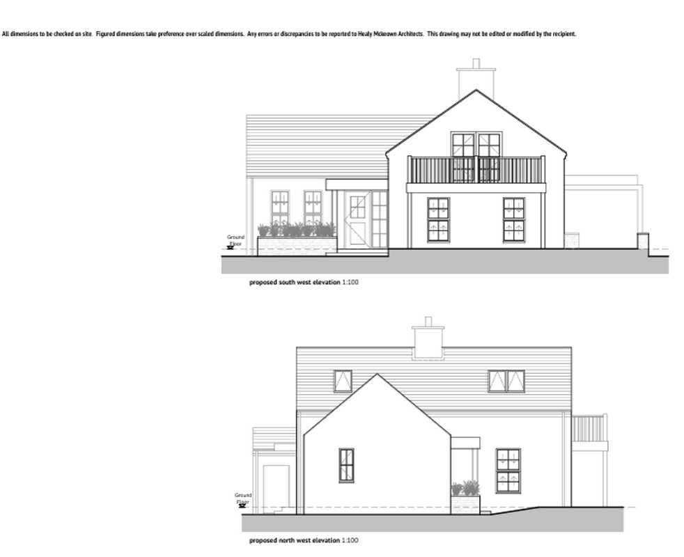
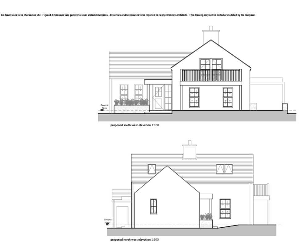
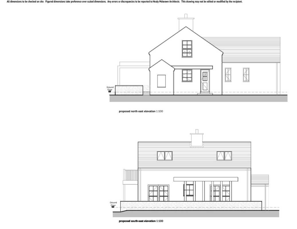
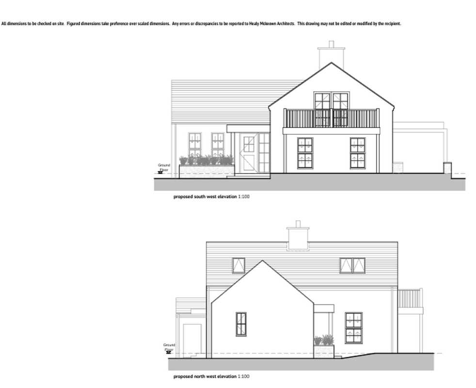
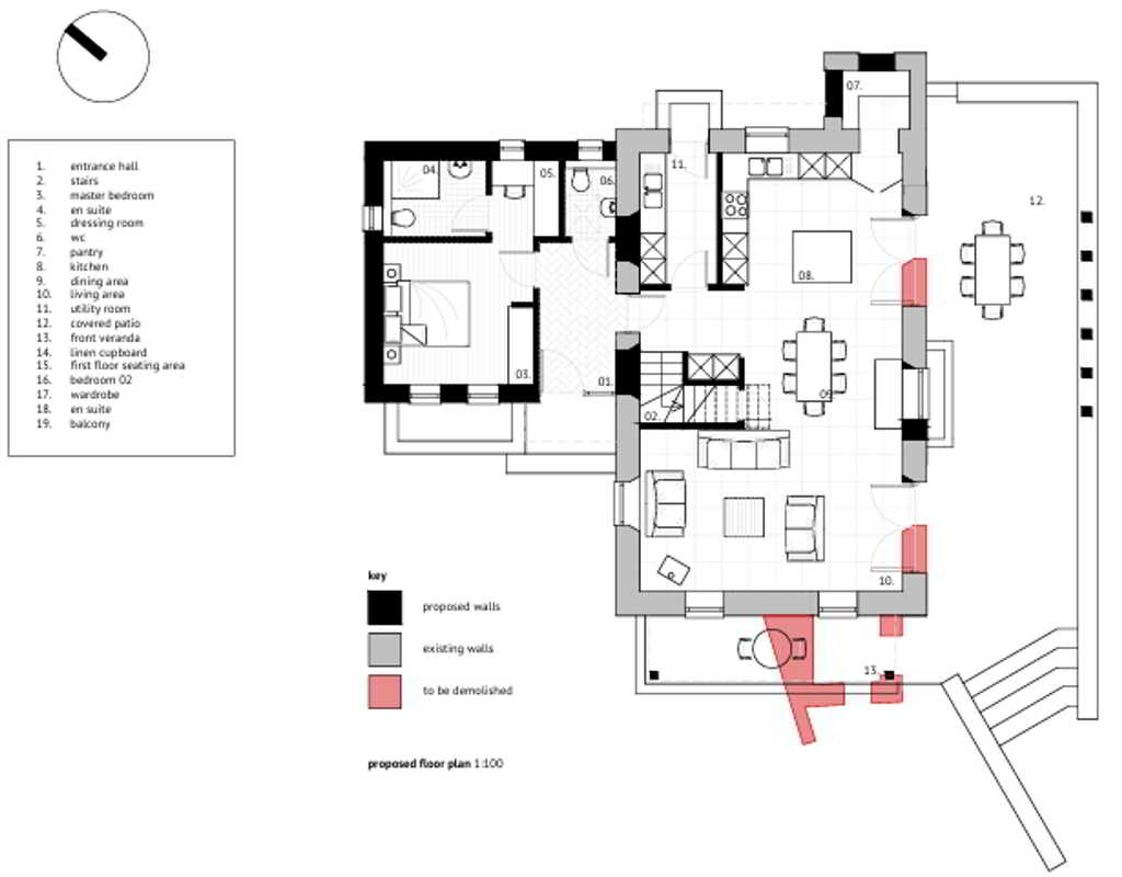
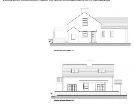
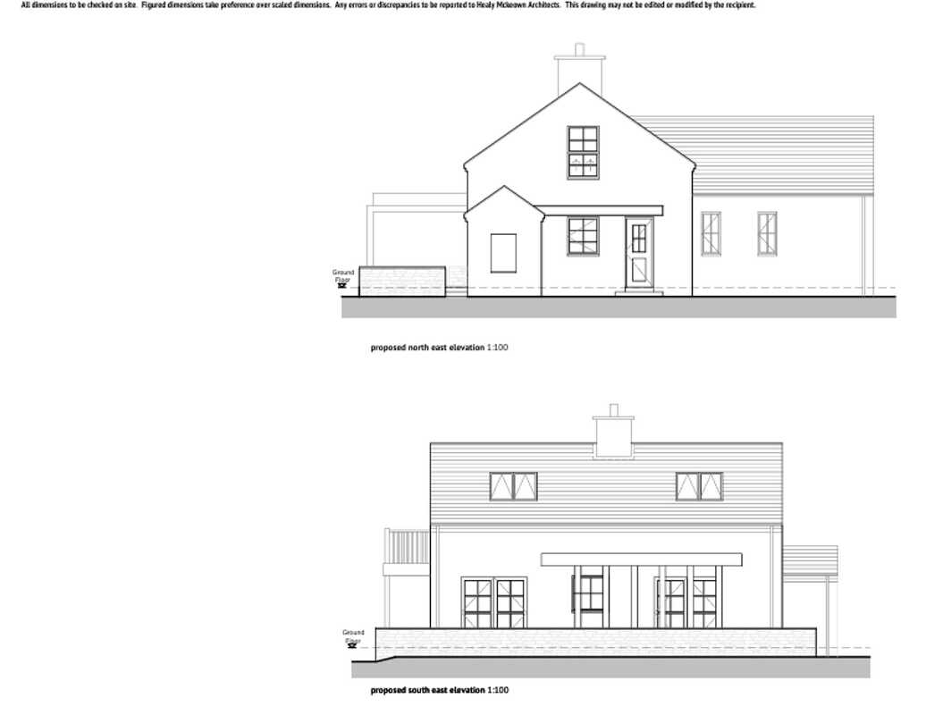
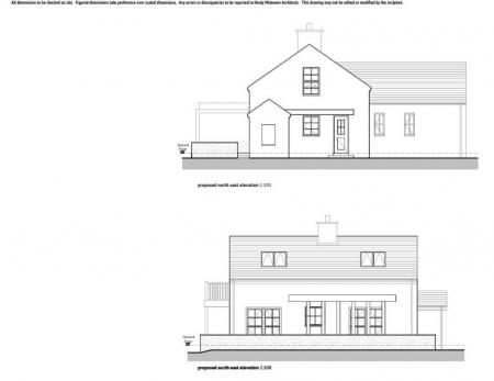
  • A fantastic opportunity to convert an Old School House into a delightful home.
  • On a choice semi elevated rural setting.
  • With views over the rolling surrounding countryside.
  • Towards the Sperrin Mountains and the Donegal Hills.
  • With Full Planning Permission to convert the same.
  • Into a quirky home designed to take in the fantastic outlook.
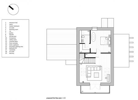
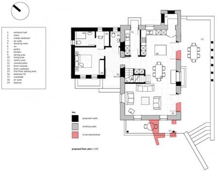
  • Planning reference LA01/2023/1290/F
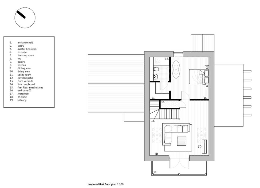
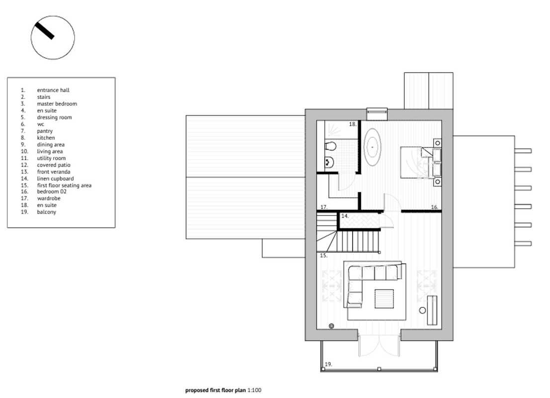
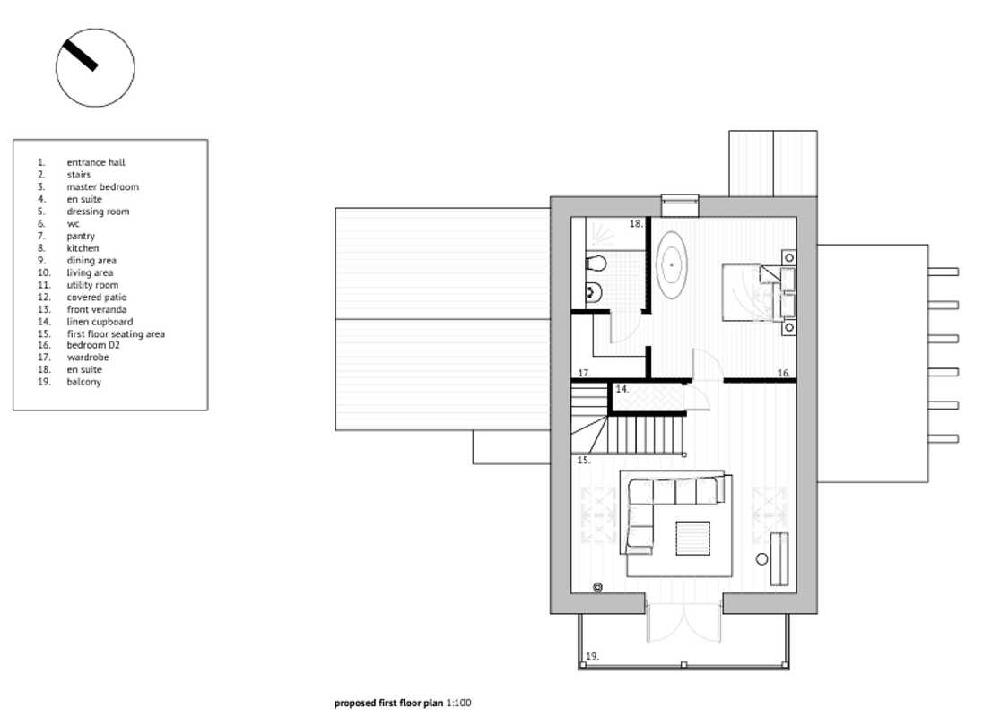
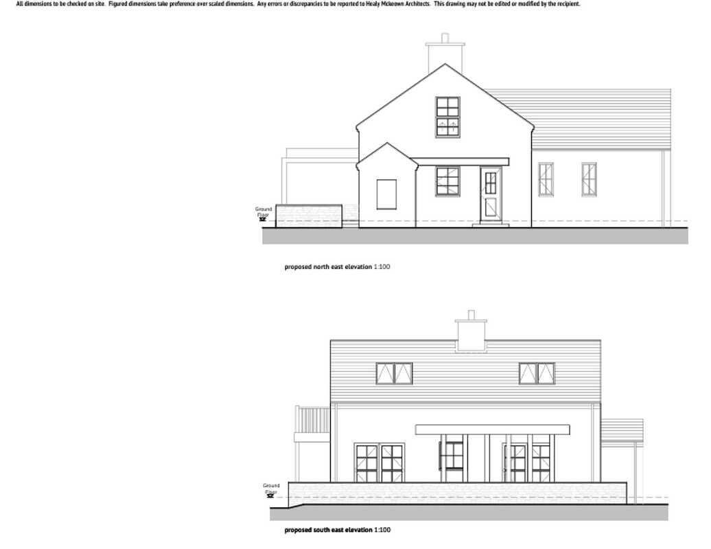
  • Cleverly designed to offer generously proportioned 2/3 bedroom accommodation.
  • Including a ground floor ensuite bedroom.
  • A master upper floor bedroom suite.

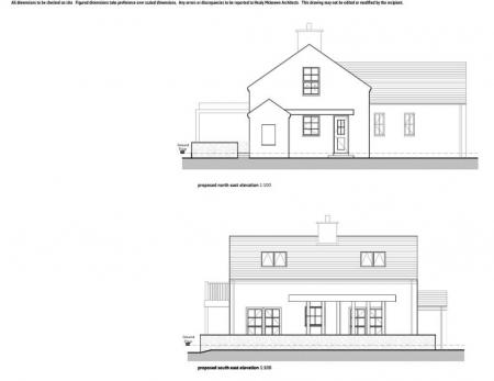
We are delighted to offer for sale this fantastic opportunity to renovate/extend this Old School House which occupies a choice semi elevated rural setting that enjoys panoramic views over the surrounding countryside. Indeed the architect has cleverly designed the same to include 2/3 bedroom accommodation; a ground floor bedroom with an ensuite; an open plan kitchen/dinette with a walk in pantry and a separate utility room; and an upper floor living area with the possibility of a balcony – all orientated to take in the super views. As such this provides a unique chance to create a characterful or contemporary rural retreat, lifetime home or retirement settlement.


 

Property Ref: ST0608216_1019057

Share:

Similar Properties

Opp, 20 Taughey Road, Ballymoney

Plot | Offers in excess of £75,000

30m South West Of, 77 Moneybrannon Road, Aghadowey, Coleraine

2 Bedroom Detached House | Offers in excess of £75,000

Site Adj To, 23 Lisnagat Road, Mosside, Ballymoney

Plot | Offers in region of £74,950

28 Main Street, Ballymoney

Shop | Offers in region of £79,950

Adj To, 108 Tullaghans Road, Dunloy, Ballymena

Plot | Offers in region of £79,950

McAfee Properties (Ballymoney)

Ballymoney, Ballymoney, County Antrim, BT53 6AN

028 2766 7676

How much is your home worth?

Use our short form to request a valuation of your property.

Request a Valuation

Mortgage Calculator

Amount Borrowed: £
Total Amount Repayable: £
Total Monthly Payment: £
©2026 The Guild of Property Professionals. All rights reserved. Terms and Conditions | Privacy Policy | Cookie Policy | Complaints Policy | Members Login
The Guild of Property Professionals Trading Address: 121 Park Lane, London W1K 7AG. GPEA Limited. Registered in England & Wales.  Company No: 02819824.  Registered Office Address: 2 St. Stephen's Court, St. Stephen's Road, Bournemouth, Dorset, England, BH2 6LA.  VAT Registration No: 576 8795 61
Book a Property Valuation Update Cookies Preferences