Site to the rear of 16 Shinny Road, Macosquin, Coleraine, County Londonderry

Offers in region of
£75,000

Land for sale in Coleraine

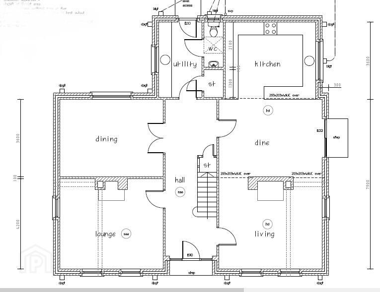
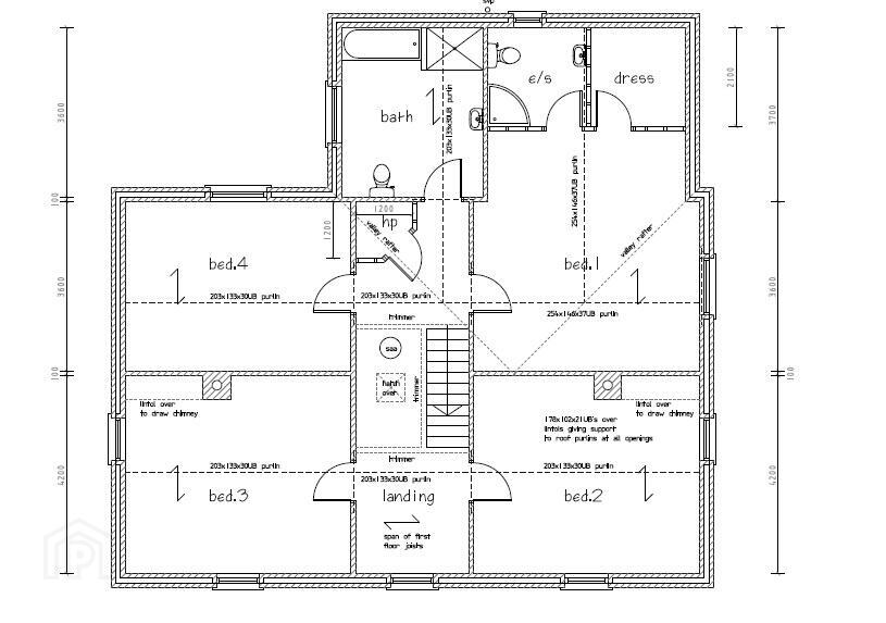
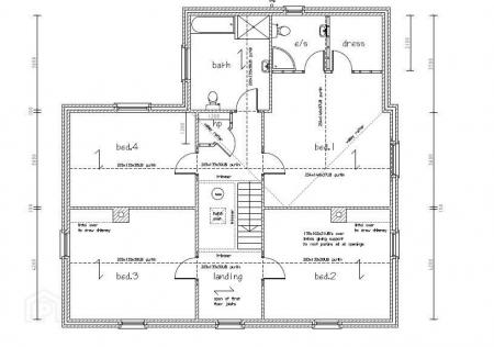
  • Full planning permission granted for a two storey house.
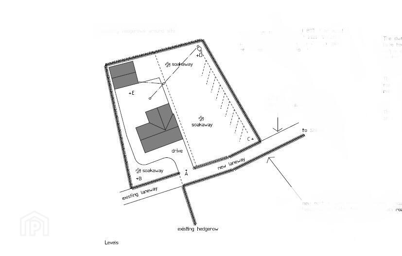
  • Site extends to approximately 0.6acre.
  • Dedicated access from the Shinny road.
  • House extends to approximately 2600sqft.
  • Planning Ref - C/2010/0059/F.

A unique opportunity to purchase a c.0.6 acre building site benefiting from full planning permission (C/2010/0059/F), for a four bedroom, two reception detached two storey house located on a mature private plot just off the Shinny road approx. 8 miles from Coleraine and 2.5 miles from the main Coleraine to Limavady road.

Property Ref: BCV932515

Share:

Similar Properties

Glebe Road, Macosquin, Coleraine

Farm Land | Offers Over £70,000

.

-12 Ballinteer Road, Macosquin, Coleraine, County Londonderry

Commercial Property | Offers in region of £80,000

.

Causeway Street, Portrush, County Antrim

Retail Property (High Street) | Offers Over £85,000

.

Bensons (Coleraine)

9 Dunmore Street, Coleraine, Co. Londonderry, BT52 1EL

028 7034 3677

How much is your home worth?

Use our short form to request a valuation of your property.

Request a Valuation

Mortgage Calculator

Amount Borrowed: £
Total Amount Repayable: £
Total Monthly Payment: £
©2026 The Guild of Property Professionals. All rights reserved. Terms and Conditions | Privacy Policy | Cookie Policy | Complaints Policy | Members Login
The Guild of Property Professionals Trading Address: 121 Park Lane, London W1K 7AG. GPEA Limited. Registered in England & Wales.  Company No: 02819824.  Registered Office Address: 2 St. Stephen's Court, St. Stephen's Road, Bournemouth, Dorset, England, BH2 6LA.  VAT Registration No: 576 8795 61
Book a Property Valuation Update Cookies Preferences