Adj to 85 Mountsandel Road, Coleraine

Offers Over
£260,000
SSTC
This property listing is now SSTC

Land for sale in Coleraine

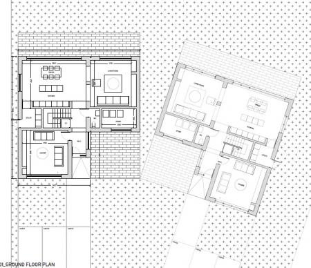
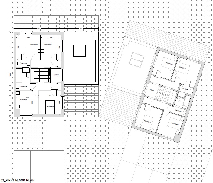
EXCLUSIVE DEVELOPMENT OPPORTUNITY - To acquire a site with full planning approval for 2 Detached Dwellings (c. 180 m² each) (Sites benefit from all required NI Water connections).

LOCATION:
The site is accessed via an existing tree-lined driveway just off the main Mountsandel Road on the periphery of Coleraine town centre and is within close proximity to local schools, shops, Causeway Hospital and conveniently located off the A26 leading to Ballymena / Belfast.

DESCRIPTION:
This is a superb opportunity to purchase a prime development site situated in the ever popular Mountsandel Road area of Coleraine. Rarely does the opportunity arise to purchase sites of this quality and location with easy access to town centre and all local amenities.

PLANNING:
The subject site has the benefit of full planning approval for 2 detached dwellings with shared access.
LA01/2021/0819/F
Approval for Pair of Detached Dwellings with shared access 29/04/2025
All NI Water connections have been approved.

Property Ref: 26766_BCV887470

Share:

Similar Properties

Oughtagh Road, Killaloo, Londonderry

Commercial Property | Offers Over £250,000

Oughtagh Road, Killaloo, Londonderry

Main Street, Bushmills

Commercial Property | Offers Over £250,000

Main Street, Bushmills

Cregg Mills, Claudy

Commercial Property | Offers Over £250,000

.

Earls Gate Square, Coleraine, County Londonderry

3 Bedroom Semi-Detached House | Offers Over £265,000

.

Queenora Avenue, Portstewart, County Londonderry

3 Bedroom Semi-Detached House | £270,000

.

Shell Hill Court, Coleraine, County Londonderry

4 Bedroom Detached House | Offers Over £270,000

.

Bensons (Coleraine)

9 Dunmore Street, Coleraine, Co. Londonderry, BT52 1EL

028 7034 3677

How much is your home worth?

Use our short form to request a valuation of your property.

Request a Valuation

Mortgage Calculator

Amount Borrowed: £
Total Amount Repayable: £
Total Monthly Payment: £
©2026 The Guild of Property Professionals. All rights reserved. Terms and Conditions | Privacy Policy | Cookie Policy | Complaints Policy | Members Login
The Guild of Property Professionals Trading Address: 121 Park Lane, London W1K 7AG. GPEA Limited. Registered in England & Wales.  Company No: 02819824.  Registered Office Address: 2 St. Stephen's Court, St. Stephen's Road, Bournemouth, Dorset, England, BH2 6LA.  VAT Registration No: 576 8795 61
Book a Property Valuation Update Cookies Preferences