Bickfield Lane, Compton Martin

Offers in excess of
£650,000
SSTC
This property listing is now SSTC

5 Bedroom Detached House for sale in Compton Martin

3 5 4
  • A detached spacious country house ideal for multi-generational living
  • Self-contained 'Granny' flat, ideal for dependants or rental income
  • built in 1953
  • delightful landscaped gardens
  • ample parking
  • convenient location near village of Compton Martin
  • 3 spacious garages
  • workshop/storage space
  • Offered with no onward chain

Tucked away on the fringes of the sought-after village of Compton Martin, this charming detached country home offers a rare opportunity to enjoy tranquil living in the heart of the breathtaking Chew Valley, with sweeping views across open countryside, Chew Valley Lake, and the rolling Mendip Hills beyond.
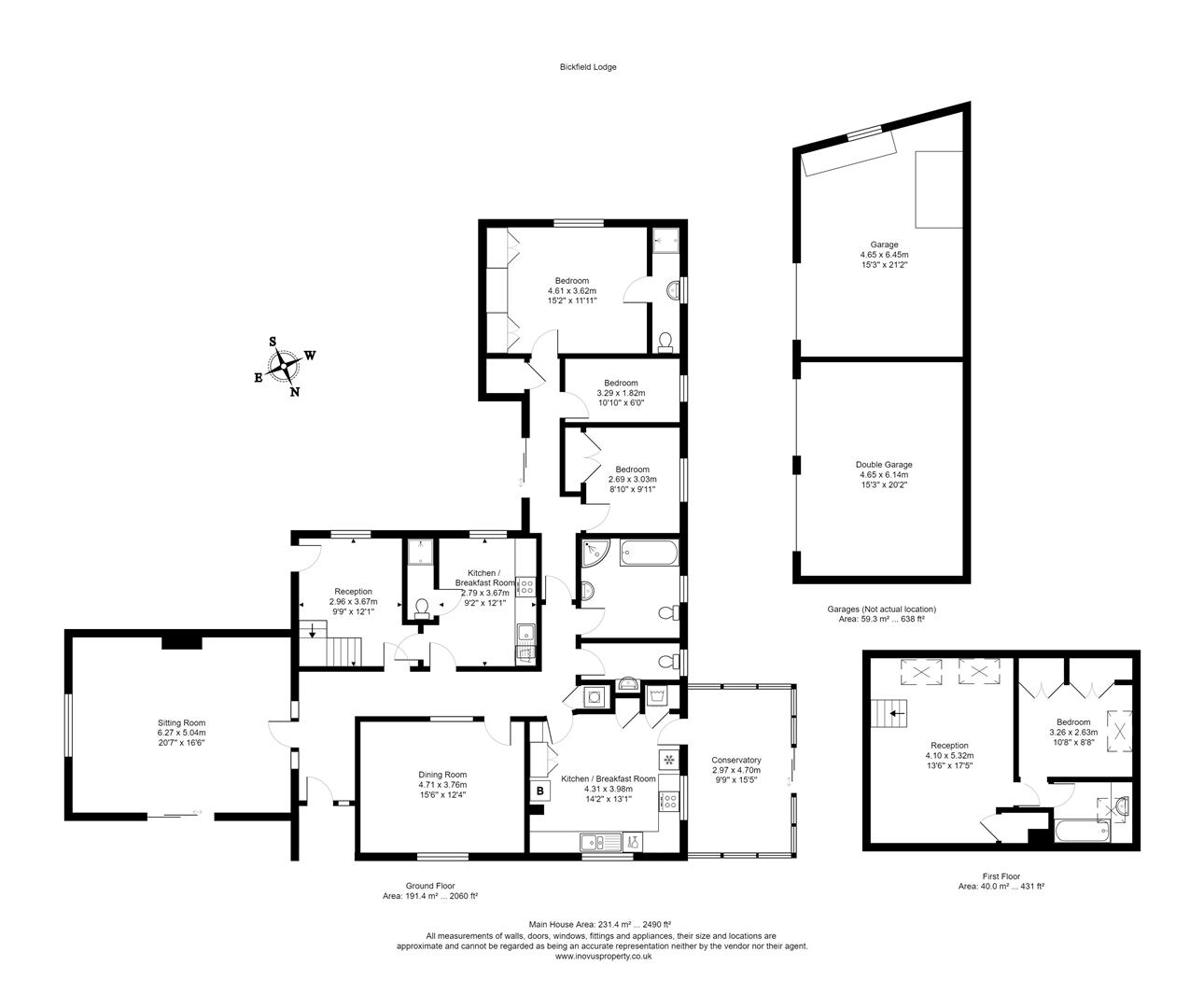
Inside, the home offers generous and flexible living space, perfect for families or those seeking multi-generational accommodation. The main house features a welcoming sitting room, a formal dining room, a well-appointed kitchen, and a light-filled conservatory - ideal for soaking in those views. There are two comfortable double bedrooms, a cosy single bedroom, and a stylish family bathroom with both bath and shower. On the ground floor is an entrance lobby, kitchen, a spacious upstairs sitting room, double bedroom, and a modern bathroom - ideal for guests, extended family, or even as an income-generating annex. Outside, beautifully maintained and richly stocked gardens wrap around the property with ample parking, a large double garage/workshop, a greenhouse and shed.

This attractive red brick former single storey home was built circa 1953 and incorporates a second storey offering further accommodation. The rooms are light and bright and the property benefits from plenty of storage.
The glazed front door of the property leads to a carpeted hallway, off which are the principal rooms and French doors leading out onto the rear garden.
A glazed door leads into the bright and warm sitting room has a wall mounted electric fire and sliding doors leading out onto the terrace. The versatile second reception room is currently used as a dining room and has a window overlooking the garden.
The fully fitted kitchen has a range of units and wall cabinets, a double stainless-steel sink, an electric oven with ceramic hob and tiled floor. The chimney alcove houses the oil-fed Worcester boiler for the central heating. A window overlooks the rear garden and a door leads through to the conservatory.
The Upvc conservatory has French doors leading onto the garden and benefits from long reaching views over the countryside.
The family bathroom has a bath and separate walk-in shower unit, WC, basin and extractor fan, whilst there is also a separate WC with vanity unit and basin.
A glazed door leads to the bedroom accommodation:
Bedrooms include a spacious double with built-in wardrobe, a single, and at the end of the hallway lies the principal bedroom, with a range of fitted units and an en suite shower room with modern suite.
A hall storage cupboard houses the tumble dryer.

Self Contained 'Granny Flat' - This area of the house would be suitable for dependents, older, teenage, or a young couple wanting privacy, or even for a possible rental income and benefits from its own part glazed door to the rear garden.
The bright and spacious reception hallway has room for a table/study area and a staircase. The kitchen has a range of fitted units, room for a freestanding electric oven, stainless steel sink and plumbed for washing machine. There is a further shower room/WC off the kitchen. Upstairs there is a bright studio/sitting room with a Velux window. Off this is a double bedroom with fitted wardrobe and Velux window.
The en suite bathroom has a vanity unit with basin bath and Velux window.

Outside - A paved pathway leads around the delightful, private, landscaped gardens, which have been well maintained and boast a wide range of flowers, shrubs, fruit bushes and trees, with lawned areas, a veg patch, greenhouse and garden shed. The tarmac driveway leads to three spacious garages with power, lighting and electronic doors and extensive workshop/storage space.

Location - Bickfield Lodge lies just outside the quintessential Somerset village of Compton Martin, with pond, village hall, church, the popular Ring o' Bells pub and a thriving village community. Nearby West Harptree has a wider array of facilities including a general store with delicatessen, post office, church and pub. A further selection of shops and facilities are available at Chew Magna about 4 miles away. Nearby Ubley has a preschool and primary and the property is within easy distance of Chew Valley Secondary School, Kings of Wessex and Churchill Academy & Sixth Form. Private schooling is available at Wells Cathedral School, Millfield School and Sidcot Quaker School. There is also an excellent choice of private schools in both Bristol and Bath. A wide range of outdoor pursuits are available locally, including sailing and walking at nearby Blagdon and Chew Valley Lake, which is a Site of Special Scientific Interest as well as an Area of Outstanding Natural Beauty, as is the Mendip Hills and Cheddar Gorge. Bristol International Airport is only 8 miles away and there is easy access to M5 via Junction 21 for Weston Super Mare.

Key Details - Council: Somerset, Band G
EPC Rating: F
Mains water
Private drainage (septic tank)
Oil central heating with Worcester boiler
Double glazed throughout

Property Ref: 230823_33838569

Share:

Similar Properties

Station Road, Blagdon

4 Bedroom Detached Bungalow | Offers in excess of £650,000

A charming four-bedroom bungalow, quietly situated off a private road in the heart of Blagdon Village.

Marlborough Buildings, Bath

3 Bedroom Apartment | Offers in excess of £475,000

A stunning lateral apartment adjacent to Royal Crescent on the top floor of this Bath stone property offering the finest...

Rhodyate, Blagdon, Somerset

3 Bedroom Detached House | Offers in excess of £450,000

A beautifully presented three-bedroom period stone cottage, dating back 200 years, in the sought-after village of Blagdo...

Front Street, Churchill

4 Bedroom Semi-Detached House | Offers in excess of £775,000

Dating from the early 19th Century, this charming semi-detached, L-shaped secluded family home has been the subject of r...

Crickham, Wedmore

4 Bedroom Detached House | Offers in excess of £775,000

A spacious and versatile 1930s detached family home with exceptional views over Somerset countryside. Set in an elevated...

The City, Mark, Highbridge

6 Bedroom Detached House | Offers in excess of £800,000

An exceptional opportunity to acquire a versatile country home, with a detached bungalow/annexe offering income potentia...

Peter Greatorex Unique Homes (Bath)

Bath, Somerset, BA1 1HE

01225 471144

How much is your home worth?

Use our short form to request a valuation of your property.

Request a Valuation

Mortgage Calculator

Amount Borrowed: £
Total Amount Repayable: £
Total Monthly Payment: £
©2025 The Guild of Property Professionals. All rights reserved. Terms and Conditions | Privacy Policy | Cookie Policy | Complaints Policy | Members Login
The Guild of Property Professionals Trading Address: 121 Park Lane, London W1K 7AG. GPEA Limited. Registered in England & Wales.  Company No: 02819824.  Registered Office Address: 2 St. Stephen's Court, St. Stephen's Road, Bournemouth, Dorset, England, BH2 6LA.  VAT Registration No: 576 8795 61
Book a Property Valuation Update Cookies Preferences