Brooklands Road, Congleton, CW12

£410,000
SSTC
This property listing is now SSTC

4 Bedroom Semi-Detached House for sale in Congleton

2 4 2
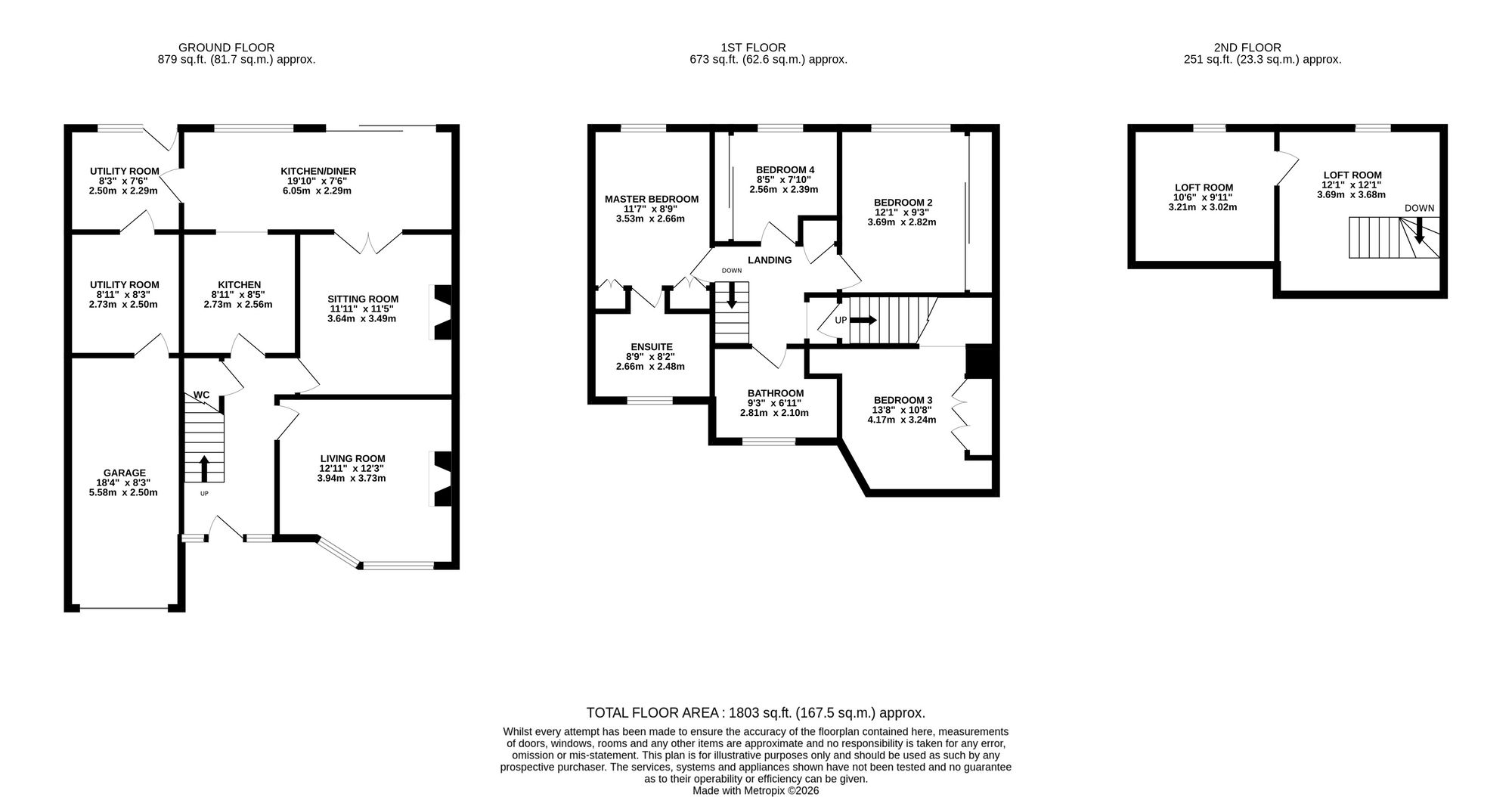
  • Four-bedroom semi-detached home with versatile living space across three floors.
  • Spacious kitchen/dining area with breakfast bar and sliding doors to the garden.
  • Bright living room with large bay window and cosy fireplace plus separate lounge.
  • Converted loft with two additional rooms ideal for storage or hobby spaces.
  • Driveway parking for at least three cars alongside an integral garage and private rear garden.

Located in the charming market town of Congleton, this well-presented four-bedroom semi-detached home offers generous living space, practical features, and a versatile layout ideal for modern family life.

Upon entering the property, you are welcomed by a bright and inviting living room. This spacious room benefits from a large bay window that floods the space with natural light, creating a warm and welcoming atmosphere, while a cosy fireplace provides a comfortable focal point for relaxing evenings.

The separate lounge is of a similar size, offering another versatile living space. It features an electric fireplace and double doors that open into the dining area of the kitchen, allowing for an easy flow between rooms while still offering the option of privacy when desired.

The kitchen is a particularly impressive space, designed with both practicality and entertaining in mind. It offers an abundance of cupboards and generous counter space for storage and food preparation. There is room for a fridge/freezer and dishwasher, alongside an integrated oven and induction hob. A breakfast bar provides a casual dining spot, while there is also ample room for a large dining table, making it an ideal hub of the home. Sliding glass doors lead directly out to the garden, allowing plenty of light into the room and creating a seamless connection between indoor and outdoor living.

The ground floor also benefits from two utility rooms, each with space for a washing machine and dryer as well as built-in cupboards for additional storage. The second utility room provides internal access to the garage, adding further convenience. Completing the downstairs layout is a WC neatly positioned under the stairs.

Upstairs, the master bedroom is a generous double room featuring built-in wardrobes and a private ensuite bathroom. The ensuite is well appointed with both a separate bath and shower. Bedroom two is another spacious double, with built-in wardrobes running along one wall to provide excellent storage. Bedroom three is also a double bedroom and includes additional built-in wardrobes, along with a designated workspace tucked under the stairs—perfect for those working from home.

The main family bathroom serves the remaining bedrooms and includes both a bath and a separate shower.

The top floor of the property features a converted loft space, offering two additional rooms that can be used for storage, hobby spaces, or creative studios, adding further versatility to the home.

Outside, the garden provides a pleasant outdoor retreat. A paved patio area offers a fantastic spot for relaxing in the sun or outdoor dining, while a lawn adds a welcome touch of greenery. There is also a large shed providing additional storage space.

To the front of the property, the driveway offers parking for at least three cars, alongside a garage with space for at least one vehicle, ensuring ample parking and storage for a busy household.

Location:

Situated in the sought-after market town of Congleton, the property enjoys a convenient and well-connected location. Congleton offers a wide range of local amenities including independent shops, supermarkets, cafés, and restaurants, as well as highly regarded schools for all ages. The town is surrounded by beautiful Cheshire countryside, with nearby outdoor attractions such as Astbury Mere Country Park and Biddulph Valley Way providing excellent opportunities for walking, cycling, and enjoying the outdoors. For commuters, Congleton railway station offers direct rail links to Manchester and Stoke-on-Trent, while the nearby M6 motorway provides easy access to major regional centres. Combining the charm of a traditional market town with excellent connectivity and access to green spaces, Congleton remains a highly desirable place to live.

Important Information

  • This is a Freehold property.
  • This Council Tax band for this property is: D
  • EPC Rating is D

Property Ref: 1b7d765e-91a6-4ae8-a71c-eb1d8a3ddd53

Share:

Similar Properties

Bay Lily Road, Stapeley, CW5

4 Bedroom Detached House | Offers in excess of £400,000

Spacious 4-bed detached property with modern kitchen/diner, ample parking, and detached garage. Located in historic Nant...

Wrinehill Road, Wybunbury, CW5

3 Bedroom Cottage | Offers in region of £400,000

Charming 3-bed semi-detached home near Wybunbury village. Open views, spacious lounge, south-facing garden, potential to...

Broad Lane, Stapeley, CW5

3 Bedroom Cottage | £400,000

This charming 3-bedroom semi-detached home in Stapeley is perfectly positioned to take full advantage of its picturesque...

Mckelvey Way, Audlem, CW3

4 Bedroom Detached House | £419,000

Chain-free four-bedroom home in Audlem with park views, private garden, garage, and off-road parking. Spacious kitchen/d...

Phoenix Rise, Pipe Gate, TF9

4 Bedroom Detached House | £420,000

Immaculate 4-bed family home on large plot with front and rear gardens, spacious kitchen/diner, ensuite, Jack and Jill b...

Teal Way, Wistaston, CW2

4 Bedroom Detached House | £420,000

Tucked away in the desirable village of Wistaston, this impressive four-bedroom detached home offers a perfect blend of...

James Du Pavey Estate Agents (Nantwich)

52 Pillory St, Nantwich, Cheshire, CW5 5BG

01270 445678

How much is your home worth?

Use our short form to request a valuation of your property.

Request a Valuation

Mortgage Calculator

Amount Borrowed: £
Total Amount Repayable: £
Total Monthly Payment: £
©2026 The Guild of Property Professionals. All rights reserved. Terms and Conditions | Privacy Policy | Cookie Policy | Complaints Policy | Members Login
The Guild of Property Professionals Trading Address: 121 Park Lane, London W1K 7AG. GPEA Limited. Registered in England & Wales.  Company No: 02819824.  Registered Office Address: 2 St. Stephen's Court, St. Stephen's Road, Bournemouth, Dorset, England, BH2 6LA.  VAT Registration No: 576 8795 61
Book a Property Valuation Update Cookies Preferences