Kenegie Manor, Gulval, TR20 8YN

Guide Price
£75,000

2 Bedroom Terraced House for sale in Cornwall

1 2 1
  • TWO 2
  • FIRST FLOOR SHOWER ROOM
  • OPEN PLAN LIVING/
  • FRONT AND REAR PATIO
  • ALLOCATED PARKING
  • USE OF ON SITE FACILITIES
  • SLEEPS FOUR PEOPLE
  • 12 MONTHS HOLIDAY OCCUPANCY
  • EPC = E * COUNCIL TAX BAND = RATED FOR BUSINESS USE
  • APPROXIMATELY 48 SQUARE METRES

Tenure: Leasehold.

Lease remaining (For Leasehold tenure): 962 (in years).
Ground rent (For Leasehold tenure): £1858.27 per year.

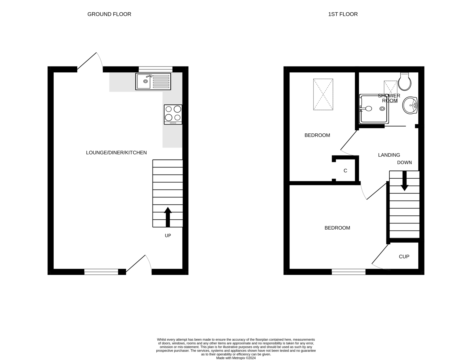
A nicely presented two bedroom terraced holiday home, situated in popular Kenegie Holiday Park on the outskirts of Penzance, with the use of on site facilities such as swimming pool, bar, tennis courts and putting green. The accommodation comprises of two bedrooms and shower room on the first floor, open plan lounge/kitchen, leading onto both front and rear patio, allocated parking for one vehicle to the front. The property enjoys 12 months holiday let occupancy and is presently let by the present vendors (figures are available upon request). The property is fully furnished and equipped for four people and viewing is recommended.

Property additional info


UPVC double glazed door into:

OPEN PLAN KITCHEN/LIVING ROOM: 20' 0" x 13' 0" (6.10m x 3.96m)
Double glazed doors and windows to both front and rear, two panel heaters, stairs rising, wooden base and wall kitchen units with worksurfaces and tiling over, space for cooker and dishwasher, single drainer stainless steel sink unit.

FIRST FLOOR LANDING:
Door to:

BEDROOM ONE: 9' 9" x 8' 6" (2.97m x 2.59m)
Double glazed to front, storage cupboard overstairs.

BEDROOM TWO: 10' 9" x 7' 0" (3.28m x 2.13m)
Skylight to rear, built in wardrobe, electric heater.

SHOWER ROOM:
Skylight to rear, WC, pedestal wash hand basin, tiled shower cubicle, heated towel rail, shaver light and point.

OUTSIDE:
Patios to both front and rear, allocated parking for one vehicle, use of communal gardens and on site facilities to include swimming pool, bar, clubhouse, small shop, tennis courts and putting green.

SERVICES:
Mains water, electricity and drainage.

LEASE:
962 years remaining

CHARGES:
Ground rent, service charge and water: £1858.27 pa

DIRECTIONS:
Via "What3Words" app: ///gather.warbler.inert

AGENTS NOTE:
We tested the mobile phone signal for O2 which was good. The property is constructed of block under a tiled roof.

Important Information

  • This is a Leasehold property.

Property Ref: 111122_J35

Share:

Similar Properties

Strawberry Hill, Tolroy Manor, Hayle, TR27 6HG

3 Bedroom Terraced House | Offers in region of £75,000

Situated on the popular Tolroy Manor holiday site is this nicely presented three bedroom holiday home. The accommodation...

St Ives Holiday Park, Lelant, St. Ives, TR26

2 Bedroom Bungalow | Offers in region of £70,000

A detached two bedroom holiday bungalow on this popular site, within easy reach of all local beaches, including St Ives...

Treweath Road, Penzance, TR18 3PZ

1 Bedroom Apartment | £70,000

Planning permission recently granted to convert a ground floor office suite into a one bedroom self contained apartment...

Kenegie Manor Holiday Park, Gulval, TR20 8YN

2 Bedroom Semi-Detached House | Guide Price £79,500

An exceptionally well presented two bedroom semi detached holiday bungalow, with 12 months holiday occupancy in a popula...

Kenegie Manor, Gulval, TR20 8YN

2 Bedroom Terraced House | Guide Price £80,000

This nicely presented holiday home enjoys a very pleasant situation on the outskirts of the site offering accommodation...

Old Court, Kenegie Manor, Gulval, TR20 8YN

2 Bedroom Terraced House | Guide Price £82,500

This two bedroom mid terrace two storey holiday home is located on the very popular Kenegie Manor holiday site which enj...

Marshalls Estate Agents (Penzance)

6 The Greenmarket, Penzance, Cornwall, TR18 2SG

01736 360203

How much is your home worth?

Use our short form to request a valuation of your property.

Request a Valuation

Mortgage Calculator

Amount Borrowed: £
Total Amount Repayable: £
Total Monthly Payment: £
©2025 The Guild of Property Professionals. All rights reserved. Terms and Conditions | Privacy Policy | Cookie Policy | Complaints Policy | Members Login
The Guild of Property Professionals Trading Address: 121 Park Lane, London W1K 7AG. GPEA Limited. Registered in England & Wales.  Company No: 02819824.  Registered Office Address: 2 St. Stephen's Court, St. Stephen's Road, Bournemouth, Dorset, England, BH2 6LA.  VAT Registration No: 576 8795 61
Book a Property Valuation Update Cookies Preferences