Gibson Way, Porthleven, Helston

Guide Price
£320,000

4 Bedroom Semi-Detached House for sale in Cornwall

2 4 2
  • SEMI DETACHED HOUSE
  • THREE/FOUR BEDROOMS
  • TWO RECEPTION ROOMS
  • SPACIOUS ACCOMODATION
  • SEA GLIMPSE FROM UPSTAIRS BEDROOM
  • OFF ROAD PARKING
  • REAR GARDEN
  • WALKING DISTANCE TO SCHOOL AND HARBOUR
  • EPC- E- 47
  • COUNCIL TAX BAND- B

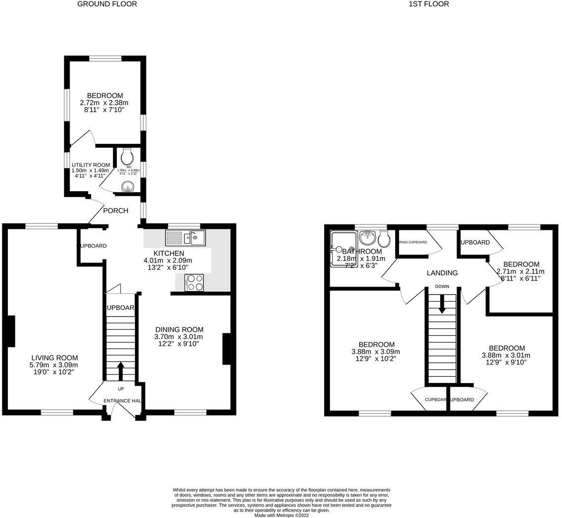
It is not very often that a family size property in Porthleven which is walking distance of all the village amenities becomes available with off road parking!! This 3/4 bedroom semi detached house provides a good amount of accommodation and flexible living which is ideally suited for a growing family or dependent relative. Internally, the accommodation is surprisingly spacious. The lounge is dual aspect creating a light and airy space and allows the family to spread out while relaxing in front of the TV. The separate dining room area creates a lovely hosting area which leads into the fully fitted kitchen. This is where you can really put your stamp on the property and make your kitchen dreams come true as the area lends itself to being opened up to create a more practical, modern family room. To the rear the sellers have converted the space into a further bedroom/office allowing a family member to have their own independent space or perfect home office. To the first floor there are two double bedrooms with built in storage with one of those bedrooms enjoying a sea glimpse, a single bedroom and shower room. Outside it is a real blank canvass allowing the avid gardener to fulfill their vision. The lawned area provides a great space for the summer BBQ's and the additional area would make a perfect patio for further outdoor seating or space for a hot tub!!
Guide Price - £320,000 
Location - Porthleven is a vibrant village offering an array of quality restaurants and cafes as well as day to day facilities to include a supermarket, primary school and doctors surgery. With a gorgeous traditional working harbour and beach this is a super and much sought after location.
Accommodation Entrance HallwayLoungeDining RoomKitchenRear PorchBedroom Four/OfficeTwo double bedroomsSingle bedroomShower Room
Outside - To the front of the property is a low maintenance gravel garden whilst to the side there is a driveway offering parking for several vehicles. There is an enclosed garden to the rear of the property.
Services - Mains electricity, water and drainage. Oil fired central heating.
Agents Note - Our client advises of the following planning application PA23/03874. Full details can be found on the Cornwall Council Planning Website.
Council Tax Band- B -
Anti Money Laundering Regulations - Purchasers - It is a legal requirement that we receive verified ID from all buyers before a sale can be instructed. We ask for your cooperation on this matter to ensure there is no unnecessary delay in agreeing a sale. We will inform you of the process once your offer has been accepted.
Proof Of Finance - Purchasers - Before agreeing a sale, we will require proof of your financial ability to purchase. Again, we ask for your cooperation on this matter to avoid any unnecessary delays in agreeing a sale and we will inform you of what we require prior to agreeing a sale.

Important Information

  • This is a Freehold property.
  • This Council Tax band for this property is: B

Property Ref: 486063

Share:

Similar Properties

Two bedroom bungalow in the village of Connor Downs

2 Bedroom Bungalow | Guide Price £320,000

Nestled within a sought after cul-de-sac, this two-bedroom linked detached bungalow has been thoughtfully extended to ma...

The Lizard, Well balanced family home

4 Bedroom Semi-Detached House | Guide Price £320,000

Arranged over three levels, this extended four bedroom semi detached home has been comprehensively updated to offer gene...

Ground floor apartment in the village of Porthleven

2 Bedroom Flat | Guide Price £315,000

Nestled in the charming area of Methleigh Bottom, Porthleven, this stunning ground floor apartment presents an exception...

Detached bungalow in coastal setting, Gillan

2 Bedroom Detached Bungalow | Guide Price £325,000

Nestled within easy reach of the tranquil waters of Gillan Creek, this two bedroom detached bungalow presents an excitin...

Mount Hawke, Charming two bed cottage

2 Bedroom Cottage | Guide Price £325,000

Steeped in over 200 years of history, this enchanting mid terrace cottage beautifully blends period character with pract...

Kuggar, Apartment with sea views

2 Bedroom Flat | Guide Price £325,000

The perfect coastal retreat, just moments from the beautiful sands of Kennack, a beach loved by families and surfers ali...

The Mather Partnership (Helston)

Helston, Cornwall, TR13 8AA

01326 565016

How much is your home worth?

Use our short form to request a valuation of your property.

Request a Valuation

Mortgage Calculator

Amount Borrowed: £
Total Amount Repayable: £
Total Monthly Payment: £
©2026 The Guild of Property Professionals. All rights reserved. Terms and Conditions | Privacy Policy | Cookie Policy | Complaints Policy | Members Login
The Guild of Property Professionals Trading Address: 121 Park Lane, London W1K 7AG. GPEA Limited. Registered in England & Wales.  Company No: 02819824.  Registered Office Address: 2 St. Stephen's Court, St. Stephen's Road, Bournemouth, Dorset, England, BH2 6LA.  VAT Registration No: 576 8795 61
Book a Property Valuation Update Cookies Preferences