Trungle, Paul, TR19 6UF

£350,000

2 Bedroom Bungalow for sale in Cornwall

1 2 1
  • TWO BEDROOMS * LIVING ROOM
  • KITCHEN/DINING ROOM
  • SHOWER ROOM
  • LPG CENTRAL HEATING * DOUBLE GLAZING
  • GOOD DECORATIVE ORDER
  • SOUGHT AFTER LOCATION
  • OFF ROAD PARKING * ENCLOSED GARDENS TO FRONT AND REAR
  • CENTRAL POSITION WITHIN THE VILLAGE * CLOSE TO THE PICTURESQUE VILLAGE OF MOUSEHOLE
  • EXCELLENT OPPORTUNITY * VIEWING RECOMMENDED
  • EPC = E * COUNCIL TAX BAND = B * APPROXIMATELY 60 SQUARE METRES

Council tax band: B.

A chance to acquire an extremely well presented two bedroom detached bungalow, located in a prime residential area within the popular village of Paul, only a short walk to the picturesque village of Mousehole. The property has been extremely well cared for by the present vendors, who have modernised Riverside Bungalow to a high standard and really needs to be viewed internally to appreciate to the full. The property stands in its own grounds with driveway to the front, astro turf area and large garden shed to the rear with a raised decked area offering a good degree of privacy. The Trungle area of Paul is popular, being a quiet location, yet within easy reach of the main town of Penzance and Mousehole. There are many footpaths around the village leading on to open countryside and due to the popularity of properties such as this we recommend an early appointment.

Property additional info

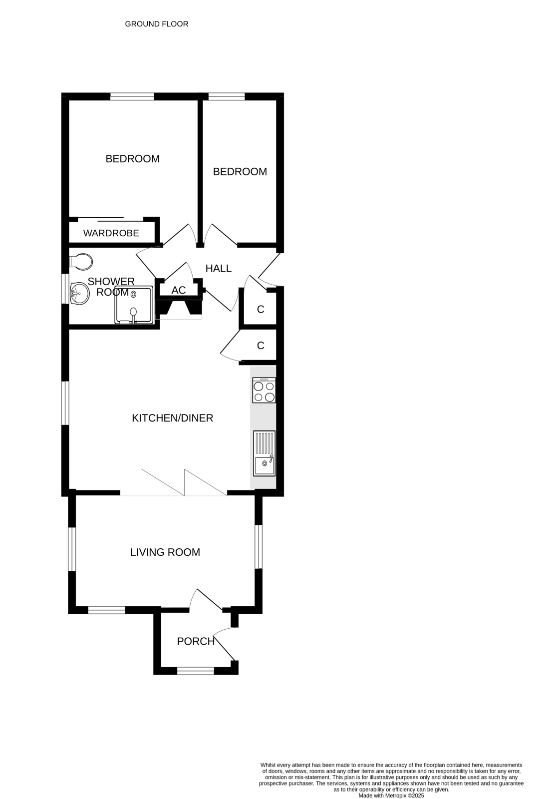
ENTRANCE HALL:
Double glazed window, laminate flooring, radiator, door to:

LIVING ROOM: 14' 0" x 8' 10" (4.27m x 2.69m)
Triple aspect room, laminate flooring, pitched ceiling, TV point, radiator. Folding doors to:

KITCHEN/DINER: 16' 0" x 12' 5" (4.88m x 3.78m)
Inset single drainer sink with cupboards below, extensive range of fitted wall and base units, worksurfaces and power points, concealed worktop lighting, built in Neff oven, Bosch hob and Ciarra extractor fan over, plumbing for washing machine, built in larder unit, laminate flooring, UPVC double glazed window, multi fuel stove set on tiled hearth, radiator.

INNER HALL:
Laminate flooring, built in cloaks cupboard, built in linen cupboard, sunken spotlights, radiator, door to garden.

BEDROOM ONE: 11' 0" narrowing to 8' 10" x 10' 0" (3.35m narrowing to 2.69m x 3.05m)
Laminate flooring, built in double wardrobe, radiator, access to roof space which houses the LPG boiler.

BEDROOM TWO: 11' 0" x 6' 0" (3.35m x 1.83m)
Double glazed window overlooking the rear garden, laminate flooring, radiator.

SHOWER ROOM:
White suite comprising double sized shower cubicle with chrome fittings and glass screen, wash hand basin, low level WC, fully tiled walls, UPVC double glazed window, tiled flooring, chrome towel rail/radiator.

OUTSIDE:
To the rear of the property is an enclosed decked area which offers a good degree of privacy and to the front there is a driveway with off road parking, astro turf area and large garden shed.

SERVICES:
Mains water, electricity and drainage.

DIRECTIONS:
Via "What3Words app: ///blotches.hung.parrot

AGENTS NOTE:
We understand from Openreach website that Fibre to the Cabinet Broadband (FTTC) is available to the property. We tested the mobile phone signal for Vodafone which was intermittent. The property is constructed of block under a tiled roof.

Important Information

  • This is a Freehold property.

Property Ref: 111122_M56

Share:

Similar Properties

St. Buryan, Penzance, TR19 6DL

3 Bedroom Semi-Detached House | Offers in region of £350,000

A beautifully presented and extended semi detached granite cottage with established cottage style gardens bordered by a...

Lower Gurnick Road, Newlyn, TR18 5QN

2 Bedroom Bungalow | Guide Price £350,000

A rare opportunity to acquire a two bedroom detached bungalow, located on a larger than average corner plot, being laid...

Heamoor, TR20 8UP

3 Bedroom Detached House | £350,000

A detached three bedroom former lodge to Boskenwyn Manor, situated between the villages of Heamoor and Gulval and offere...

Turnpike Hill, TR17 0AY

1 Bedroom Apartment | Guide Price £355,000

A most charming one bedroom Grade II Listed cottage apartment, located in a popular area within the town of Marazion, wi...

St Pol de Leon, Trungle, TR19 6US

2 Bedroom Barn Conversion | £360,000

A semi detached two bedroom single storey barn conversion with gardens, garage and parking, situated in the church villa...

Lansdowne Place, Penzance, TR18 4QB

4 Bedroom Semi-Detached House | Guide Price £360,000

A beautifully presented house which has been extended extensively within the last 10 years to provide spacious and flexi...

Marshalls Estate Agents (Penzance)

6 The Greenmarket, Penzance, Cornwall, TR18 2SG

01736 360203

How much is your home worth?

Use our short form to request a valuation of your property.

Request a Valuation

Mortgage Calculator

Amount Borrowed: £
Total Amount Repayable: £
Total Monthly Payment: £
©2025 The Guild of Property Professionals. All rights reserved. Terms and Conditions | Privacy Policy | Cookie Policy | Complaints Policy | Members Login
The Guild of Property Professionals Trading Address: 121 Park Lane, London W1K 7AG. GPEA Limited. Registered in England & Wales.  Company No: 02819824.  Registered Office Address: 2 St. Stephen's Court, St. Stephen's Road, Bournemouth, Dorset, England, BH2 6LA.  VAT Registration No: 576 8795 61
Book a Property Valuation Update Cookies Preferences