Cross Street, Penzance, TR18 2EY

£150,000

1 Bedroom Terraced House for sale in Cornwall

1 1 1
  • ONE DOUBLE BEDROOM
  • FIRST FLOOR SHOWER ROOM
  • LOUNGE
  • COURTYARD
  • NO ONWARD CHAIN * NO ALLOCATED PARKING
  • TOWN CENTRE LOCATION
  • EPC = F
  • COUNCIL TAX BAND = A
  • APPROXIMATELY 50 SQUARE METRES

Council tax band: A.

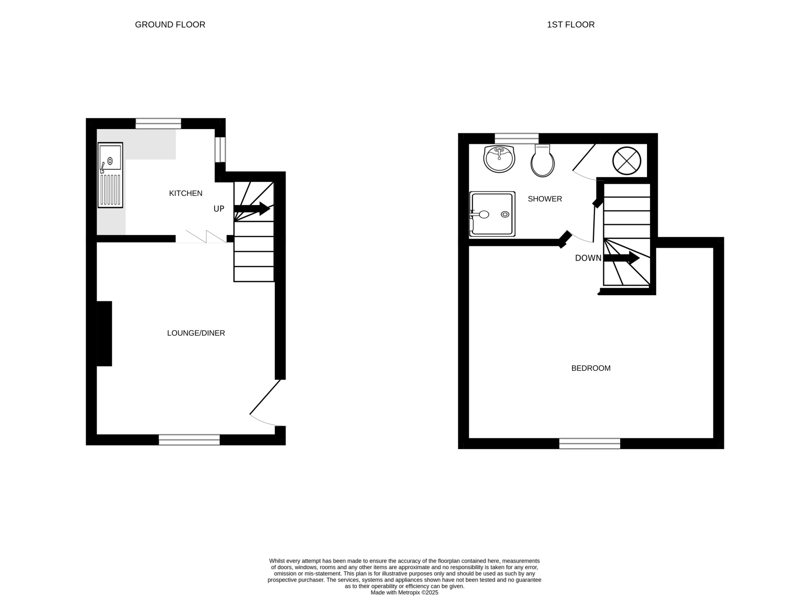
A one bedroom mid terrace cottage situated close to the town centre, offered for sale with no onward chain. The accommodation comprises of lounge, kitchen on the ground floor, bedroom and shower room on the first floor. To the rear is a fully enclosed courtyard. The property is double glazed where stated and gas centrally heated and an ideal investment/first time buy.

Property additional info


UPVC double glazed door into:

LOUNGE: 10' 8" x 10' 4" (3.25m x 3.15m)
Double glazed sash window to front, gas fire, wall lights, door to:

KITCHEN: 7' 2" x 6' 0" (2.18m x 1.83m)
Base and wall units, worksurfaces over, single bowl stainless steel sink unit, two windows to rear, plumbing for washing machine, undercounter fridge space, electric cooker point, stairs rising with window to side.

BEDROOM: 13' 8" x 11' 0" maximum (4.17m x 3.35m maximum )
L shaped, two double glazed sash windows to front, one double glazed window to side, built in wardrobe, electric panel heater, access to loft, door to:

SHOWER ROOM:
Double glazed window to rear, WC, wash hand basin, fully tiled walk in shower, fan heater, cupboard housing hot water tank.

OUTSIDE:
Fully enclosed courtyard to the rear accessed via a shared pedestrian alleyway.

SERVICES:
Mains water, electricity, gas and drainage.

AGENTS NOTE:
We understand from Openreach Full Fibre Broadband (FTTP) is available to the property. We tested the mobile phone signal for O2 which was good. The property is constructed of granite under a slate roof.

Important Information

  • This is a Freehold property.

Property Ref: L04

Share:

Similar Properties

Building Plot at Levant, Trewellard, St Just, TR19 7SR

3 Bedroom Plot | £150,000

Lovely sea views over surrounding countryside and beyond from this building plot with detailed planning permission for a...

Dreams Of Cornwall, Connor Downs, TR27 5BN

2 Bedroom Bungalow | £149,950

Situated on the edge of the popular village of Connor Downs are a select number of brand-new Delta Langford park homes....

Dreams Of Cornwall, Treeve Lane, Connor Downs, Hayle, Cornwall, TR27 5BN

2 Bedroom Bungalow | £149,950

Situated on the edge of the popular village of Connor Downs are a select number of brand-new Delta Langford park homes....

Relubbus, TR20 9EL

Plot | Guide Price £160,000

Planning has been granted for the construction of a four bedroom detached house REF PA22/10093, and situated in the popu...

Victoria Place, Penzance, TR18 4BP

2 Bedroom Apartment | £160,000

Ideal opportunity for a first time buy, a young family or investor to acquire a well presented two bedroom first floor a...

New Street, Troon, Camborne, Cornwall, TR14 9EW

2 Bedroom Terraced House | £160,000

Offered to the market with no onward chain is this two bedroom mid terraced cottage with good size gardens to the rear....

Marshalls Estate Agents (Penzance)

6 The Greenmarket, Penzance, Cornwall, TR18 2SG

01736 360203

How much is your home worth?

Use our short form to request a valuation of your property.

Request a Valuation

Mortgage Calculator

Amount Borrowed: £
Total Amount Repayable: £
Total Monthly Payment: £
©2026 The Guild of Property Professionals. All rights reserved. Terms and Conditions | Privacy Policy | Cookie Policy | Complaints Policy | Members Login
The Guild of Property Professionals Trading Address: 121 Park Lane, London W1K 7AG. GPEA Limited. Registered in England & Wales.  Company No: 02819824.  Registered Office Address: 2 St. Stephen's Court, St. Stephen's Road, Bournemouth, Dorset, England, BH2 6LA.  VAT Registration No: 576 8795 61
Book a Property Valuation Update Cookies Preferences