Lescudjack Road, Penzance, TR18 3AD

£350,000

4 Bedroom Terraced House for sale in Cornwall

2 4 1
  • FOUR 4
  • FIRST FLOOR BATHROOM * GROUND FLOOR CLOAKROOM
  • UTILITY ROOM
  • KITCHEN/DINING ROOM * LOUNGE
  • CELLAR * SEA VIEWS FROM REAR
  • NO ONWARD CHAIN
  • GAS CENTRAL HEATING
  • IDEAL FAMILY HOME
  • TOWN LOCATION * CONSERVATION AREA
  • EPC = E * COUNCIL TAX BAND = RATED FOR BUSINESS USE (PREVIOUSLY RATE C) * APPROXIMATELY 103 SQUARE METRES

A beautifully presented four bedroom terraced granite house, situated in a popular residential street on the outskirts of Penzance, yet within easy access of all the town's amenities. The beautifully presented accommodation comprises of kitchen/diner, lounge, utility and cloakroom on the ground floor. There are three bedrooms and family bathroom on the first floor and the main bedroom is located on the second floor, enjoying sea views from the rear elevation towards St Michael's Mount and beyond. There is a small garden to the front, an enclosed courtyard to the rear and a useful cellar, which covers the entire ground floor of the property. The property is offered for sale with no onward chain, is gas centrally heated, partially double glazed and would make an ideal family home.

Property additional info


Double glazed door into:

ENTRANCE PORCH:
Tiled floor, floor to dado rail panelling, half glazed door into:

ENTRANCE HALL:
Wooden floor, radiator, stairs rising, doors to:

KITCHEN/DINER: 20' 2" x 11' 8" (6.15m x 3.56m)
Dual aspect sash windows to front and rear with deep sills and recess below, radiator, wooden floors throughout. Kitchen comprises an extensive range of base and wall units with wooden worktops over, space for range style gas oven with stainless steel extractor fan, further space for fridge/freezer and dishwasher, sink and drainer with mixer tap over, tiled splashback, fitted cupboard to one wall, breakfast bar with seating, fireplace to one wall (not used).

LOUNGE: 14' 3" x 9' 7" (4.34m x 2.92m)
Understairs storage cupboard, radiator, two sash windows to side, cupboard housing combination gas boiler, fire surround to former fireplace.

UTILITY ROOM: 7' 4" x 7' 3" (2.24m x 2.21m)
Radiator, UPVC window and double glazed door to rear, sink and drainer, space for washing machine and tumble dryer, sea glimpse from window, door to:

SEPARATE WC:
Access to loft space.

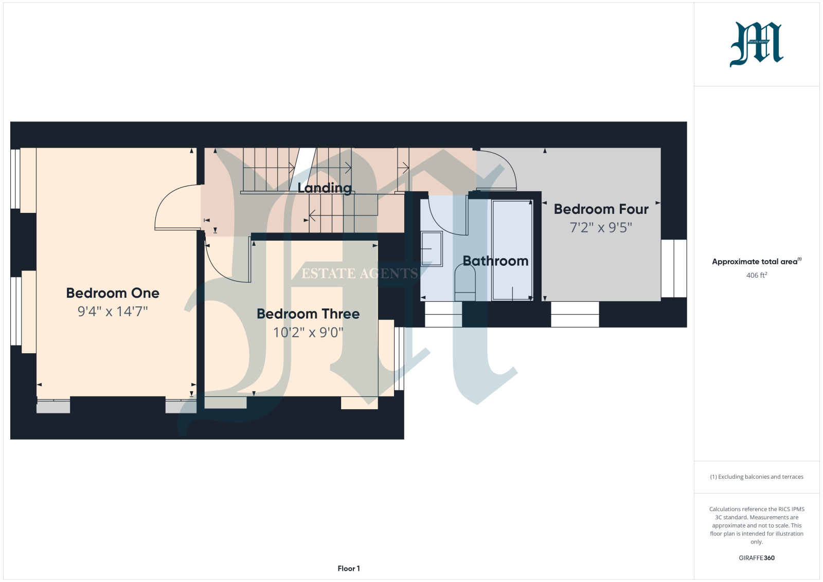
FIRST FLOOR LANDING:
Access to loft space, stairs rising, door to:

BEDROOM ONE: 14' 7" x 9' 4" (4.45m x 2.84m)
Two sash windows to front, fitted cupboards to one wall, radiator.

BEDROOM THREE: 10' 2" x 9' 0" (3.10m x 2.74m)
Window to rear with sea glimpses, radiator, two alcoves to one wall.

BEDROOM FOUR: 9' 5" x 7' 2" (2.87m x 2.18m)
Radiator, dual aspect windows to side and rear with views of Mount's Bay towards St Michael's Mount.

BATHROOM:
Tiled floor, P shape bath with shower head attachment over, WC, pedestal wash hand basin, heated towel rail, window to side.

SECOND FLOOR LANDING:
Door to:

BEDROOM TWO: 14' 7" x 11' 0" (4.45m x 3.35m)
Window to rear with stunning views across Mount's Bay towards St Michael's Mount and beyond, radiator, vaulted ceiling, storage into eave space.

OUTSIDE:
To the front of the property is an enclosed patio. To the rear is a fully enclosed courtyard with area laid to deck and outside tap, pedestrian access to rear service lane, access to cellar which could be easily incorporated into the property to provide living space (subject to any necessary planning permissions).

SERVICES:
Mains water, electricity, gas and drainage.

DIRECTIONS:
Via "What3Words" app: ///piglet.margin.height

AGENTS NOTE:
We understand from Openreach website that Full Fibre Broadband (FTTP) is available to the property. We tested the mobile phone signal for O2 which was good. The property is constructed of granite under a slate tiled roof.

Important Information

  • This is a Freehold property.

Property Ref: 111122_M67

Share:

Similar Properties

Kenstella Road, Newlyn, TR18 5AY

3 Bedroom Semi-Detached House | £350,000

Lovely sea views over Mount's Bay to St Michael's Mount and beyond from this well presented three bedrooms semi deatched...

Hill Close, Heamoor, TR18 3JX

3 Bedroom Semi-Detached House | £350,000

Offered for sale for the first time since construction in 1970 is this semi detached, three bedroom house, offered for s...

9 Ventonleague Hill, TR27

3 Bedroom Semi-Detached House | Guide Price £345,000

A beautifully presented semi detached three bedroom dormer bungalow situated in the popular residential location within...

Turnpike Hill, TR17 0AY

1 Bedroom Apartment | Guide Price £355,000

A most charming one bedroom Grade II Listed cottage apartment, located in a popular area within the town of Marazion, wi...

Fairfield House, Porthrepta Road, Carbis Bay, TR26 2NZ

2 Bedroom Apartment | Guide Price £360,000

A second floor, two bedroom, luxury apartment with parking and enjoying glorious views across St Ives Bay.

St Pol de Leon, Trungle, TR19 6US

2 Bedroom Barn Conversion | £360,000

A semi detached two bedroom single storey barn conversion with gardens, garage and parking, situated in the church villa...

Marshalls Estate Agents (Penzance)

6 The Greenmarket, Penzance, Cornwall, TR18 2SG

01736 360203

How much is your home worth?

Use our short form to request a valuation of your property.

Request a Valuation

Mortgage Calculator

Amount Borrowed: £
Total Amount Repayable: £
Total Monthly Payment: £
©2026 The Guild of Property Professionals. All rights reserved. Terms and Conditions | Privacy Policy | Cookie Policy | Complaints Policy | Members Login
The Guild of Property Professionals Trading Address: 121 Park Lane, London W1K 7AG. GPEA Limited. Registered in England & Wales.  Company No: 02819824.  Registered Office Address: 2 St. Stephen's Court, St. Stephen's Road, Bournemouth, Dorset, England, BH2 6LA.  VAT Registration No: 576 8795 61
Book a Property Valuation Update Cookies Preferences