Manor Way, Heamoor, TR18 3HN

£270,000

3 Bedroom Terraced House for sale in Cornwall

1 3 1
  • THREE 3
  • FIRST FLOOR BATHROOM
  • LOUNGE
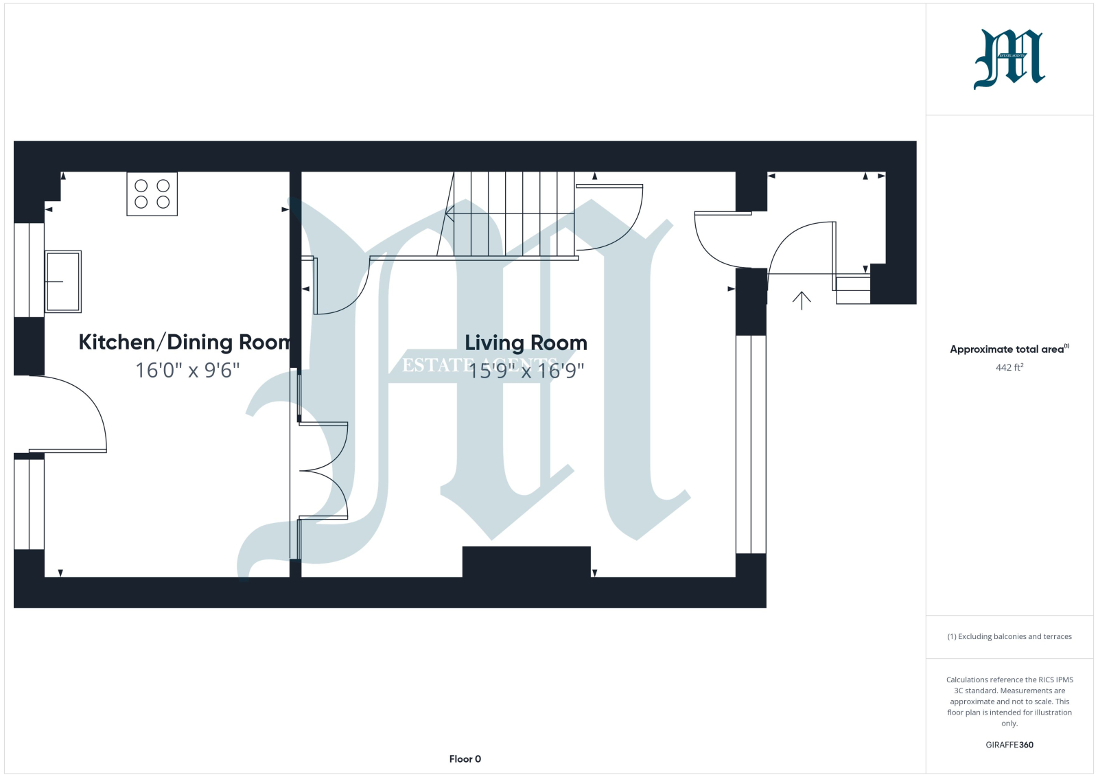
  • KITCHEN/DINING ROOM
  • FRONT AND REAR GARDENS
  • POPULAR LOCATION
  • NO ONWARD CHAIN
  • ON STREET PARKING
  • EPC = E * COUNCIL TAX BAND = C
  • APPROXIMATELY 81 SQUARE METRES

Council tax band: C.

A three bedroom mid terraced house, situated in a popular residential location on the outskirts of the village of Heamoor, yet within walking distance of the town of Penzance. The accommodation comprises of lounge with kitchen/dining room on the ground floor. There are three bedrooms and bathroom on the first floor. The house is double glazed and has gardens to both the front and rear and is offered for sale with no onward chain.

Property additional info


Double glazed door with side panel into:

PORCH:
Tiled floor, further glazed door into:

LOUNGE: 16' 9" x 15' 9" (5.11m x 4.80m)
Stairs rising with cupboard under, double glazed window to front, electric fire to one wall, TV point, doors lead into:

KITCHEN/DINING ROOM: 16' 0" x 9' 6" (4.88m x 2.90m)
Two double glazed windows and door to rear, tiled floor, night storage heater, base and wall units with worksurfaces and tiling over, single drainer stainless steel sink unit, plumbing for washing machine.

FIRST FLOOR LANDING:
Access to loft, night storage heater, cupboard housing hot water tank.

BEDROOM ONE: 13' 0" x 9' 2" (3.96m x 2.79m)
Double glazed window to front, built in wardrobes and cupboard.

BEDROOM TWO: 9' 6" x 7' 7" (2.90m x 2.31m)
Double glazed window to rear, built in wardrobes

BEDROOM THREE: 10' 2" x 6' 3" (3.10m x 1.91m)
Double glazed window to front, over stairs storage cupboard, bath, double glazed window to rear, pedestal wash hand basin, WC, panelled bath, fully tiled shower cubicle.

BATHROOM:
UPVC double glazed window to rear, WC, pedestal wash hand basin, panelled bath, fully tiled mains shower cubicle and partial wall tiling.

OUTSIDE:
To the front there is a lawned garden enclosed by low level block built wall. To the rear is a fully enclosed garden laid to patio with steps leading to lawn, bordered by shrubs and plants, outside tap, pedestrian access to rear lane.

SERVICES:
Mains water, electricity, gas and drainage.

DIRECTIONS:
Via "What3Words" app: ///tribe.unwanted.fears

AGENTS NOTE:
We understand from Openreach website that Full Fibre Broadband (FTTP) is available to the property. We tested the mobile signal for O2 which was good. The property is constructed of block under a concrete tiled roof.

Important Information

  • This is a Freehold property.

Property Ref: 111122_M44

Share:

Similar Properties

The Strand, Newlyn, TR18 5HW

3 Bedroom Terraced House | Guide Price £270,000

An extremely versatile two bedroom, four storey house with charming character throughout, located in a conservation area...

Clifton Terrace, Newlyn, Penzance, TR18 5HY

2 Bedroom Terraced House | £270,000

Located in a tucked away position near the centre of Newlyn is this two bedroom character home with sea views towards St...

Penpons Close, Penzance, TR18 4PT

3 Bedroom Terraced House | £270,000

A three bedroom mid terrace house situated in a popular residential estate on the outskirts of Penzance. The accommodati...

New Street, Penzance, TR18 2NE

1 Bedroom Apartment | Guide Price £275,000

A rare opportunity to acquire an extremely well presented one bedroom ground floor apartment, which is formerly part of...

Darlington Road, Long Rock, TR20 8JR

2 Bedroom Bungalow | Guide Price £275,000

A two bedroom link detached bungalow in need of some refurbishment with gardens, garage and parking, situated in the pop...

Gilly Lane, Whitecross, TR20 8BZ

2 Bedroom End of Terrace House | £275,000

A nicely presented end of terrace two bedroom cottage with gardens and parking, and offered for sale with no onward chai...

Marshalls Estate Agents (Penzance)

6 The Greenmarket, Penzance, Cornwall, TR18 2SG

01736 360203

How much is your home worth?

Use our short form to request a valuation of your property.

Request a Valuation

Mortgage Calculator

Amount Borrowed: £
Total Amount Repayable: £
Total Monthly Payment: £
©2026 The Guild of Property Professionals. All rights reserved. Terms and Conditions | Privacy Policy | Cookie Policy | Complaints Policy | Members Login
The Guild of Property Professionals Trading Address: 121 Park Lane, London W1K 7AG. GPEA Limited. Registered in England & Wales.  Company No: 02819824.  Registered Office Address: 2 St. Stephen's Court, St. Stephen's Road, Bournemouth, Dorset, England, BH2 6LA.  VAT Registration No: 576 8795 61
Book a Property Valuation Update Cookies Preferences