Laregan House, Penzance, TR18 4QE

Guide Price
£360,000
SSTC
This property listing is now SSTC

3 Bedroom Apartment for sale in Cornwall

1 3 1
  • VIEWS OVER SECLUDED PRIVATE GARDEN * NO ONWARD CHAIN
  • THREE 3
  • 23 FT LIVING ROOM * 17FT RECEPTION HALL
  • FITTED KITCHEN * MANY PERIOD FEATURES
  • MODERN BATHROOM * GAS CENTRAL HEATING
  • IDEAL FAMILY OR RETIREMENT HOME
  • PRIME RESIDENTIAL AREA * OWN LARGE GARDEN
  • GARAGE AND AND ALLOCATED PARKING FOR TWO CARS * TWO CELLAR
  • EXCELLENT OPPORTUNITY * VIEWING RECOMMENDED
  • EPC = D * COUNCIL TAX BAND = D * APPROXIMATELY 134 SQUARE METRES

Council tax band: D.

Tenure: Leasehold.

Lease remaining (For Leasehold tenure): 999 (in years).

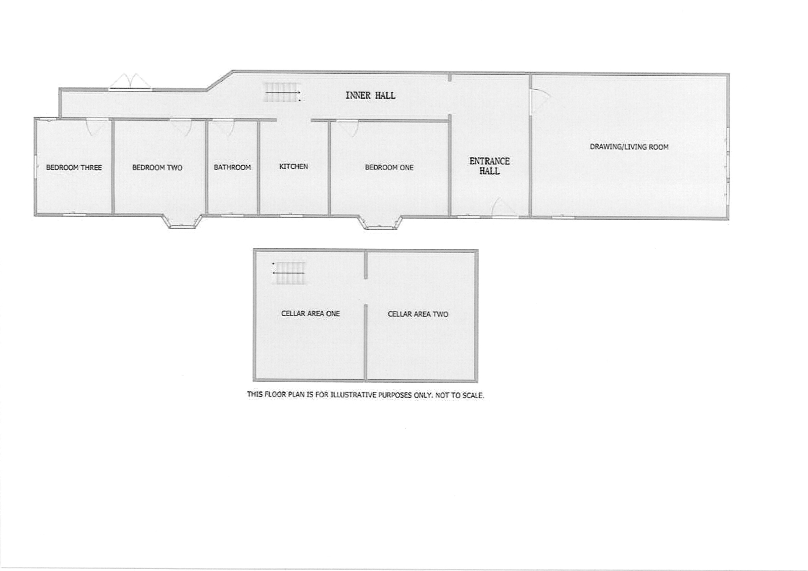
A rare opportunity to acquire a three bedroom ground floor apartment which forms a substantial part of a former mansion house, which was converted some years ago into four apartments, with number 4 being one of the larger ones, occupying most of the ground floor with its own gardens, garage and two allocated parking spaces on the forecourt. The property has spacious accommodation, which has much charm and character throughout with high ceilings and pleasant outlook over the garden to the front. The main reception room, being 23ft long, offers bright and airy accommodation, along with the impressive reception hall. From the inner hall there are steps down to two large cellar rooms, which could be used for a variety of uses, subject to any necessary planning permissions. A particularly attractive feature are the gardens to the front of the property, which are for the sole use of number 4, being laid to lawn with mature trees and shrubs, which creates a good degree of privacy. To the rear of the property is a garage and garden shed, which goes with the property. Laregan House is located on the top of Laregan Hill and is approached via a private unmade lane, being tucked away from passing traffic, yet within close proximity to many local amenities. offered for sale with NO ONWARD CHAIN.

Property additional info

ENTRANCE VESTIBULE:
Double glazed door to:

RECEPTION HALL: 17' 0" x 8' 10" (5.18m x 2.69m)
Exposed floorboards, high ceilings, radiator.

LIVING ROOM: 23' 4" x 16' 5" (7.11m x 5.00m)
Bay window with working shutters, period fireplace, double glazed window overlooking gardens, ceiling rose, cornice, two radiators.

INNER HALLWAY:
Exposed floorboards with hatch leading to the cellar.

KITCHEN: 11' 7" x 7' 9" (3.53m x 2.36m)
Stainless steel twin bowl sink with cupboards below, range of fitted wall and base units, worksurfaces and power points, built in oven, four ring hob and extractor hood, plumbing for washing machine, tiled flooring, windows overlooking garden.

BEDROOM ONE: 17' 10" x 13' 2" (5.44m x 4.01m)
Into panelled bay window overlooking gardens, shutters, shelved recess, two radiators.

BEDROOM TWO: 11' 3" x 10' 4" (3.43m x 3.15m)
Plus small bay window overlooking gardens, radiator.

BEDROOM THREE: 11' 4" x 8' 8" (3.45m x 2.64m)
Triple aspect room, views to garden, two radiators.

BATHROOM:
White suite comprising double ended bath with chrome mixer tap and shower attachment, pedestal wash hand basin, low level WC, fully tiled walls, semi circular shower cubicle, tiled flooring, two built in cupboards, chrome towel rail.

CELLAR:
Two large rooms with good head height, electric light, no window.

ROOM ONE: 15' 2" x 9' 7" (4.62m x 2.92m)
Wine bins.

ROOM TWO: 15' 3" x 13' 6" (4.65m x 4.11m)
Gas central heating boiler, radiator.

OUTSIDE:
The property has it's own large garden to the front, which is laid to lanw with mature trees and shrubs, which creates a good degree of privacy. To the rear of the property, there is a raised flower border, to the side is a detached single garage and to the side of that a garden shed with potential for further parking (subject to any necessary planning permissions)

SERVICES:
Mains water, electricity, gas and drainage.

LEASE:
New 999 years. 25% share of the freehold.

NB:
No holiday let allowed. One cat or one dog is permitted.

CHARGES:
25% maintenance and 25% insurance.

DIRECTIONS:
Via "What Three Words" app: ///repeating.pizzas.yawned

AGENTS NOTE:
We understand from USwitch website that Superfast Fibre Broadband is available to the property. We tested the mobile phone signal for Vodafone which was good. The property is constructed of granite under a slate roof.

Important Information

  • This is a Leasehold property.

Property Ref: 111122_J15

Share:

Similar Properties

Fairfield House, Porthrepta Road, Carbis Bay, TR26 2NZ

2 Bedroom Apartment | Guide Price £360,000

A second floor, two bedroom, luxury apartment with parking and enjoying glorious views across St Ives Bay.

Lansdowne Place, Penzance, TR18 4QB

4 Bedroom Semi-Detached House | Guide Price £360,000

A beautifully presented house which has been extended extensively within the last 10 years to provide spacious and flexi...

St Pol de Leon, Trungle, TR19 6US

2 Bedroom Barn Conversion | £360,000

A semi detached two bedroom single storey barn conversion with gardens, garage and parking, situated in the church villa...

Chapel Street, Mousehole, TR19 6SD

2 Bedroom Terraced House | Guide Price £365,000

A chance to aquire a charming two bedroom terrace character cottage located in the centre of this popular village, which...

Tregender Road, Crowlas, TR20 8DN

3 Bedroom Bungalow | £365,000

A beautifully presented and recently extended by the present vendors, three bedroom link detached bungalow, situated wit...

Penwerris Rise, Praa Sands, TR20 9TD

2 Bedroom Bungalow | Guide Price £375,000

Situated in a private location near the beach in Praa Sands is this good size two bedroom detached bungalow in need of u...

Marshalls Estate Agents (Penzance)

6 The Greenmarket, Penzance, Cornwall, TR18 2SG

01736 360203

How much is your home worth?

Use our short form to request a valuation of your property.

Request a Valuation

Mortgage Calculator

Amount Borrowed: £
Total Amount Repayable: £
Total Monthly Payment: £
©2025 The Guild of Property Professionals. All rights reserved. Terms and Conditions | Privacy Policy | Cookie Policy | Complaints Policy | Members Login
The Guild of Property Professionals Trading Address: 121 Park Lane, London W1K 7AG. GPEA Limited. Registered in England & Wales.  Company No: 02819824.  Registered Office Address: 2 St. Stephen's Court, St. Stephen's Road, Bournemouth, Dorset, England, BH2 6LA.  VAT Registration No: 576 8795 61
Book a Property Valuation Update Cookies Preferences