Delightful semi-detached home, Goldsithney

Guide Price
£268,000

2 Bedroom Semi-Detached House for sale in Cornwall

1 2 1
  • SEMI DETACHED HOUSE NO ONWARD CHAIN
  • SOUGHT AFTER VILLAGE LOCATION
  • MODERN KITCHEN
  • OFF ROAD PARKING & GARAGE
  • WELL PRESENTED THROUGHOUT
  • TWO DOUBLE BEDROOMS AND LOFT SPACE
  • FRONT AND REAR GARDENS
  • COUNTRYSIDE VIEWS
  • COUNCIL TAX BAND B
  • EPC- 67- D - FREEHOLD TENURE

Situated on Springfield Road, in the charming village of Goldsithney, this delightful semi-detached home offers a perfect blend of comfort and convenience. Being sold with no onward chain, and with two well-proportioned bedrooms and a thoughtfully designed bathroom, this property is ideal for small families or couples seeking a home close to amenities. Upon entering, you will be greeted by a light and spacious reception room, perfect for entertaining guests or enjoying quiet evenings at home. The accommodation is well-presented throughout, ensuring a warm and inviting atmosphere. The property boasts beautifully maintained gardens, providing an excellent outdoor space for relaxation or gardening enthusiasts. One of the standout features of this home is the incredibly useful loft room, which can serve as an office, or storage space, catering to your individual needs. The practicality of off-road parking for up to three vehicles, along with a garage, adds to the appeal, making it easy for you and your guests to come and go with ease. Situated in a popular village, this semi-detached home not only offers a comfortable living space but also a sense of community and access to local amenities.
Guide Price £268,000 -
Location - Goldsithney is hugely sought after and for good reason. It’s an attractive traditional village featuring a pretty, small stone church, post office and two village pubs both of which serve local ales and good food. There is a village store which is well stocked, much of which is local produce, in addition to gifts and cards. The village has a friendly, established community and is well placed for access to a huge choice of coastal and countryside walks. The sandy beach at Perranuthnoe is a reasonable walk or short drive away and the nearest major town, Penzance, is approximately 5 miles away and well served with day-to-day facilities as well as a railway station. Within easy reach, there is a choice of stunning beaches including the romantic and secluded Prussia Cove and Marazion, home to St Michael’s Mount – the castle on the island!
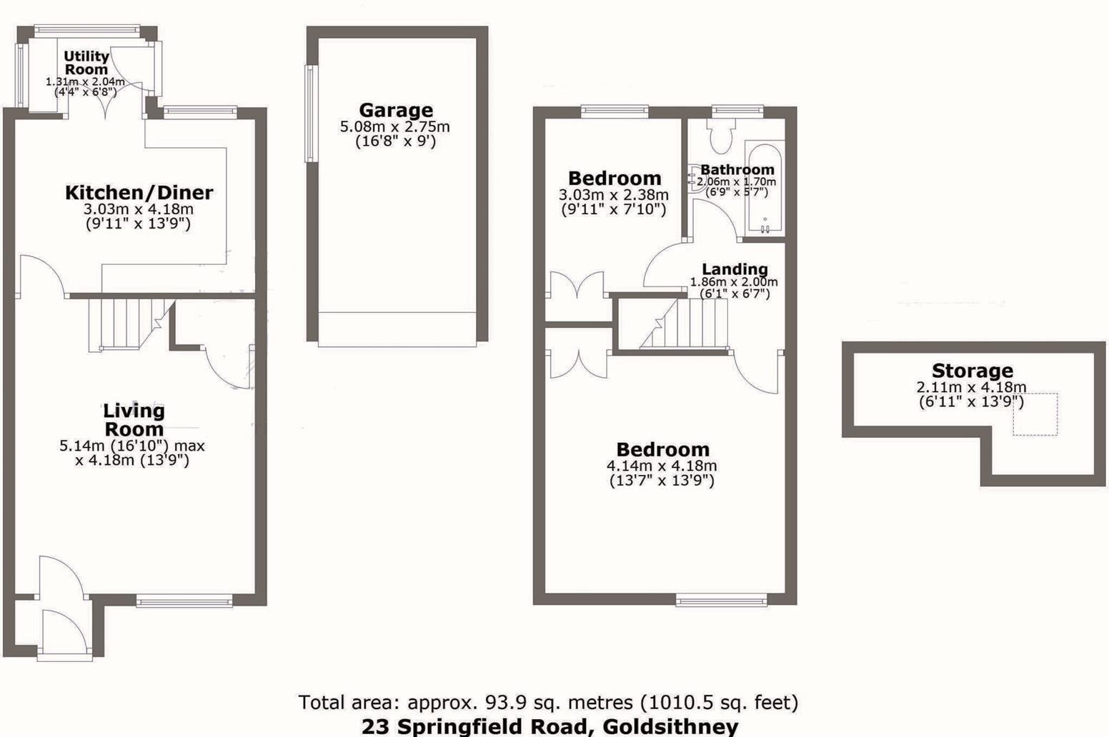
Accommodation - Entrance hallLiving roomKitchen dining roomUtility roomBedroomBedroomBathroom
Outside - The property benefits from well presented gardens to the front & rear elevations. The front garden comprises landscaped patio levels planted with shrubs and bushes, and laid to loose stone chippings. The rear garden is chiefly laid to lawn with timber decking, fenced boundaries and the tank for the oil central heating.
Garage - Front aspect up and over garage door. Power and light.
Parking - The property benefits from generous parking
Services - Mains water, electricity and drainage. Oil fired central heating.Freehold tenure.
Agents Note - Our clients have informed us that the neighbouring property has a pedestrian access down the far right hand side of the driveway, leading to the rear of the terrace, which they own.
Council Tax Band B -
Anti Money Laundering Regulations – Purchasers - It is a legal requirement that we receive verified ID from all buyers before a sale can be instructed. We will inform you of the process once your offer has been accepted.
Proof Of Finances - Before agreeing a sale, we will require proof of your financial ability to purchase. We will inform you of what we require prior to agreeing a sale.
Broadband & Mobile Phone Coverage - To check the broadband coverage for this property please visit check mobile phone coverage please visit
What3words - ///invested.gangs.steepest

Important Information

  • This is a Freehold property.
  • This Council Tax band for this property is: B

Property Ref: 485555

Share:

Similar Properties

Bungalow with no onward chain, Falmouth

2 Bedroom Detached Bungalow | Guide Price £265,000

Situated on Conway Road in Falmouth, this delightful detached two-bedroom bungalow presents a wonderful opportunity for...

Charming cottage in village setting, Nancegollan

3 Bedroom Cottage | Guide Price £265,000

Situated in a quiet residential area in the convenient village of Nancegollan, this charming mid-terraced cottage presen...

Hayle, Two bed cottage ideally positioned

2 Bedroom End of Terrace House | Guide Price £265,000

This charming two bedroom end terrace cottage is ideally positioned within the popular coastal town of Hayle, enjoying a...

Tregarthen, rare chance to create a unique home

3 Bedroom Barn Conversion | Guide Price £270,000

An exciting opportunity to create a bespoke single storey dwelling in a tucked away location within Tregarthen. Currentl...

Helston, Three bed home with no onward chain

3 Bedroom Semi-Detached House | Guide Price £270,000

This three bedroom linked semi-detached home is ideally situated on a popular residential estate, conveniently close to...

Goldsithney, Charming two bed home in village location

2 Bedroom Cottage | Guide Price £275,000

Situated in the heart of a sought after village, this charming two bedroom attached home offers comfortable living and a...

The Mather Partnership (Helston)

Helston, Cornwall, TR13 8AA

01326 565016

How much is your home worth?

Use our short form to request a valuation of your property.

Request a Valuation

Mortgage Calculator

Amount Borrowed: £
Total Amount Repayable: £
Total Monthly Payment: £
©2026 The Guild of Property Professionals. All rights reserved. Terms and Conditions | Privacy Policy | Cookie Policy | Complaints Policy | Members Login
The Guild of Property Professionals Trading Address: 121 Park Lane, London W1K 7AG. GPEA Limited. Registered in England & Wales.  Company No: 02819824.  Registered Office Address: 2 St. Stephen's Court, St. Stephen's Road, Bournemouth, Dorset, England, BH2 6LA.  VAT Registration No: 576 8795 61
Book a Property Valuation Update Cookies Preferences