Lewannick, Launceston, Cornwall

Guide Price
£995,000

7 Bedroom Detached House for sale in Cornwall

4 7 7

Trelaske Manor is believed to date back originally to the 18th century and is one of the most important residences in the historic Parish of Lewannick in the heart of north Cornwall. The home has an abundance of elegance with its architectural flair, charm and character. Our clients have resided in the property for some 8 years, they have completed a significant improvement project where the accommodation has been sympathetically updated to create what is today a superb home ready for immediate occupation.
   
The accommodation is accessed via the grand porch from where solid wooden double doors swing open into the impressive reception hallway. The hallway really gives you a flavour of the grandeur as it is dominated by the wide wooden staircase. Double doors lead out to the back garden and frame the far-reaching views over the grounds.
   
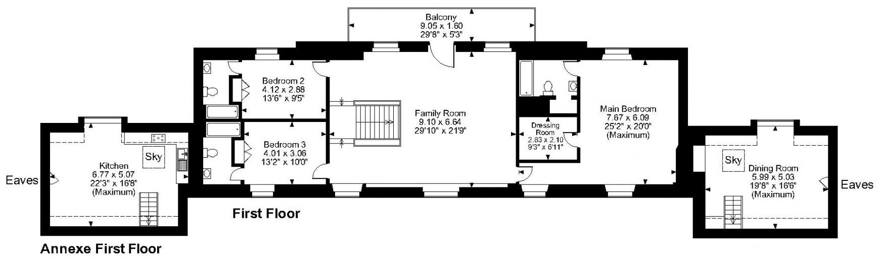
The hallway has exposed wood, deep window cills and Karndean flooring. It leads off at one side to a utility room and downstairs wc. There are many reception rooms which can be used in a versatile configuration. The formal dining room is spacious and the perfect space for entertaining. It is dual aspect with part wood panelled walls. The modern kitchen/breakfast room is superbly equipped with a range of matching wall and based units finished in honey oak. The work surfaces are solid granite and there is a Belfast style sink with mixer taps and a pull out expandable tap. The kitchen also comprises of display shelving and plate rack. There is concealed underlighting and recessed downlighting. An extensive range of appliances are included in the sale such as two microwave ovens, an gas fired aga, an electric fan oven, hob and a free standing American style fridge /freezer. The kitchen has a ceramic floor and again being dual aspect, has plenty of natural light. There is further additional storage in the form of two built in cupboards along with a door which opens into the west wing which is currently configured as a two storey bed and breakfast unit. The study is spacious and has a wood burning stove providing a cosy feel during the cooler months. From the study with very little effort, access could be be reinstalled back into what is currently Waterfall cottage (a two bedroom 2 storey self-contained holiday unit) this cottage would then become part of the main residence. The principal living space of Trelaske Manor is found on the first floor accessed directly from the wide stairs. The area features a stunning A frame ceiling throughout which is one of the key focal points along as well as the stained-glass window with the attractive Cornish crest. A glazed door leads out to the balcony which is wide enough for many to use and enjoy the far-reaching views looking due south over the gardens and field. There are three bedrooms on the first floor, the master bedroom suite has a walk in dressing room and a recently installed en-suite bathroom/ wc which has a matching suite including a separate shower cubicle with soaker shower. The remaining two double bedrooms both have en-suite facilities with showers and two windows each overlooking the respective elevations. The property has the benefit of oil fired central heating and UPVC double glazed windows and doors. Our clients have informed us that all of the handmade curtains, blinds and light fittings will remain as part of the sale.
   
Trelaske B&B (Fully furnished two bedroom letting suite)
Interconnected and attached to the main house and accessed from the kitchen/ breakfast room is Trelaske B&B, it has been used commercially for many years and generated a healthy income. The B&B is self-contained with a door leading from the front driveway off the main with a door leading to its own private terrace at the rear. It is two storey and is configured with reversed accommodation having two letting suites on the ground floor comprising of two double bedrooms with en-suite facilities and on the top floor a large open plan living space which has been used as a dining room for bed and breakfast guests. This room has a pleasant view over the gardens and access into the eaves storage.
   
Waterfall Cottage (fully furnished two bedroom self catering suite)
This is a two bedroom two storey letting suite which is entirely self contained. It also has reversed accommodation with two bedrooms both with en-suite facilities. It has been used as a self catering unit very successfully with some guests having stayed at times for several weeks. It is unobtrusive to the main residence and like the B&B suite has its own outside terrace. The first floor has an open plan kitchen/ living area with a range of kitchen units in an L shape. Built in is an electric hob and oven and a free standing washing machine. From this elevation there is a wonderful view over the surrounding gardens and land. The cottage is also being sold fully furnished and has its own area of outside terrace.
   
Outside
The property is entirely enclosed for safety and security and is accessed from the road by double wrought iron gates which open into the attractive cobbled and lawned front courtyard. At the side there are two storage sheds one of which houses the oil tank. Access can be gained from the side of the Manor around to the rear where the main area of garden can be found. As previously mentioned both the two wings have their own paved terraces which are inset and away from the outside garden of the principal residence. They are level and well suited for outside dining and relaxing when the weather allows. The views over the lawn and field take centre stage. There is outside lighting and a further useful number of storage sheds one of which houses the equipment for the bore hole that provides the private water supply.

The main lawn has a circular central paved area with a water feature ideal for recreational activities such as light ball games and croquet. A haha divides the formal area of lawn with the pasture land below. At the side of the haha our clients have installed a strategically placed seating area which is the perfect place to relax in during the evening watching the sunset. The pasture beyond which is in the ownership of the Manor provides security of knowing that the beautiful landscape will not change.
   
Our clients allow a local sheep farmer to graze his sheep on a casual arrangement and the area within the title is at present defined but unfenced to provide the stock with open space. At the bottom of the field the land adjoins a small watercourse which is a tributary of the Inny River.
   
There is a stunning waterfall within that section of the stream. The whole area is entirely unspoilt with natural beauty. The area is both a safe haven and rich habitat for much wildlife. The grounds are a key component to the set-up of Trelaske Manor and those with livestock will no doubt appreciate the overall environment.
   
The property is located along a single-track country road about 3/4 of a mile from the village of Lewannick in the heart of the Inny valley, the river is a major tributary of the Tamar which forms the border between Cornwall and Devon. A short distance away there are many village amenities to include a Public House, County Primary School, Parish Church and a busy Village Hall with regular community activities. The nationally acclaimed restaurant at Coombeshead Farm can be found within walking distance. Access to either the A38 to Plymouth and South Devon or the A30 provides access west to Truro and West Cornwall or east to Exeter and beyond. Within eight miles is the former capital town of Cornwall, Launceston, with a great range of independent shops, including a bakery, butchers, historic church and medieval castle. There is a range of schools and colleges in the local area as well as recreational facilities including Bodmin Moor in one direction and Dartmoor in the other. The Continental Ferryport and City of Plymouth is found within 30 miles of the property offering more extensive amenities as well as transport links via main line rail link to London and the Midlands and regular services by ferry to France and Spain.

Hall 26'11" max x 20' max (8.2m max x 6.1m max).

Utility 7'9" x 6'2" (2.36m x 1.88m).

Cloakroom 8'2" x 7'1" (2.5m x 2.16m).

Study 14'10" x 20' (4.52m x 6.1m).

Dining Room 18'4" x 20' (5.6m x 6.1m).

Kitchen 14'2" x 20' (4.32m x 6.1m).

Living Room 29'10" max x 21'9" max (9.1m max x 6.63m max).

Balcony 29'8" x 5'3" (9.04m x 1.6m).

Bedroom 1 25'2" max x 20' max (7.67m max x 6.1m max).

En-suite

Dressing Room 9'3" x 6'11" (2.82m x 2.1m).

Bedroom 2 13'6" x 9'5" (4.11m x 2.87m).

En-suite

Bedroom 3 13'2" x 10' (4.01m x 3.05m).

En-suite

B&B

Bedroom 4 16'6" x 9'10" (5.03m x 3m).

En-suite 4'3" x 9'4" (1.3m x 2.84m).

Bedroom 5 16'6" x 9'11" (5.03m x 3.02m).

En-suite 4'3" x 9'4" (1.3m x 2.84m).

Breakfast Room 19'8" max x 16'6" max (6m max x 5.03m max).

ANNEXE

Hall

Bedroom 1 17'2" x 9'11" (5.23m x 3.02m).

En-suite 4'6" x 9'10" (1.37m x 3m).

Bedroom 2 17'2" max x 9'10" max (5.23m max x 3m max).

En-suite 4'6" x 9'4" (1.37m x 2.84m).

Kitchen/Living Room 22'3" (6.78m) max x 16'8" (5.08m) max.

SERVICES    Mains electricity. Private water and drainage.

TENURE    Freehold.

COUNCIL TAX    Trelaske Manor: G: Cornwall Council.
Waterfall Cottage: Current Rateable Value of £4000: Cornwall Council.

VIEWING ARRANGEMENTS    Strictly by appointment with the selling agent.

From Launceston town centre proceed along the A388 (Western Road). Upon reaching Pennygillam Roundabout take the first left hand exit sign posted towards Bodmin heading Westbound along the A30 dual carriageway. Proceed for approximately six miles taking the left hand exit towards Lewannick. Upon exiting the slip road take the left hand turning proceeding up in to the village and on reaching the T junction turn right keeping the Archer Arms on the left hand side. Proceed up and around keeping the Church on the left hand side and continue around into Callington Road. At the next junction turn left signposted towards Trelaske, continue along this road and keep left at the fork. After approximately 0.4 of a mile Trelaske Manor will be identified on the right hand side.
   
what3words.com - ///navigate.neatly.cleans

Important Information

  • This is a Freehold property.

Property Ref: LAU240182

Share:

Similar Properties

North Tamerton, Holsworthy, Devon

5 Bedroom Detached House | Guide Price £900,000

An opportunity to acquire a delightful Grade II Listed period manor house in a private and peaceful setting, with well e...

Windmill Hill, Launceston, Cornwall

5 Bedroom Detached House | Guide Price £875,000

Located in one of Launceston’s prime areas is this superior individual tucked away five bedroom residence. The home has...

Yeolmbridge, Launceston, Cornwall

5 Bedroom Detached House | Guide Price £875,000

A substantial modern and imposing five bedroom (three en-suite) residence located in the heart of the Ottery Valley. Thi...

Beals Mill, Callington, Cornwall

4 Bedroom Detached House | Guide Price £1,000,000

A superb individually designed and efficient luxury home located in a tucked away location in the heart of the River Inn...

Bealswood Road, Gunnislake, Cornwall

4 Bedroom Detached House | Guide Price £1,000,000

***GUIDE PRICE £1,000,000 - £1,100,000***Weir Run is a beautifully renovated detached home in the Tamar Valley AONB, off...

Clawton, Holsworthy, Devon

4 Bedroom Detached House | Guide Price £1,500,000

A substantial and proudly standing period farmhouse which has been subject to extensive renovation in recent years. Ther...

Webbers Launceston (Launceston)

Launceston, Cornwall, PL15 8AD

01566 776211

How much is your home worth?

Use our short form to request a valuation of your property.

Request a Valuation

Mortgage Calculator

Amount Borrowed: £
Total Amount Repayable: £
Total Monthly Payment: £
©2026 The Guild of Property Professionals. All rights reserved. Terms and Conditions | Privacy Policy | Cookie Policy | Complaints Policy | Members Login
The Guild of Property Professionals Trading Address: 121 Park Lane, London W1K 7AG. GPEA Limited. Registered in England & Wales.  Company No: 02819824.  Registered Office Address: 2 St. Stephen's Court, St. Stephen's Road, Bournemouth, Dorset, England, BH2 6LA.  VAT Registration No: 576 8795 61
Book a Property Valuation Update Cookies Preferences