Versatile home with sea views and large garden, Coverack

Guide Price
£750,000

4 Bedroom Detached Bungalow for sale in Coverack

1 4 2
  • THREE/FOUR BEDROOM DORMER BUNGALOW
  • EASY ACCESS TO THE BEACH AND HARBOUR
  • TWO RECEPTION ROOMS
  • OFF ROAD PARKING
  • LARGE GARDEN WHICH IS APPROXIMATELY HALF AN ACRE
  • SEA VIEWS
  • EPC- 35- F
  • COUNCIL TAX BAND- D
  • FREEHOLD TENURE
  • NO ONWARD CHAIN

Located in the ever-popular coastal village of Coverack, this versatile detached home offers generous accommodation, a substantial garden, and easy access to the beach, harbour, and local amenities. Recently modernised, the property is ready to move straight into and enjoy, while still offering plenty of potential to make it your own.

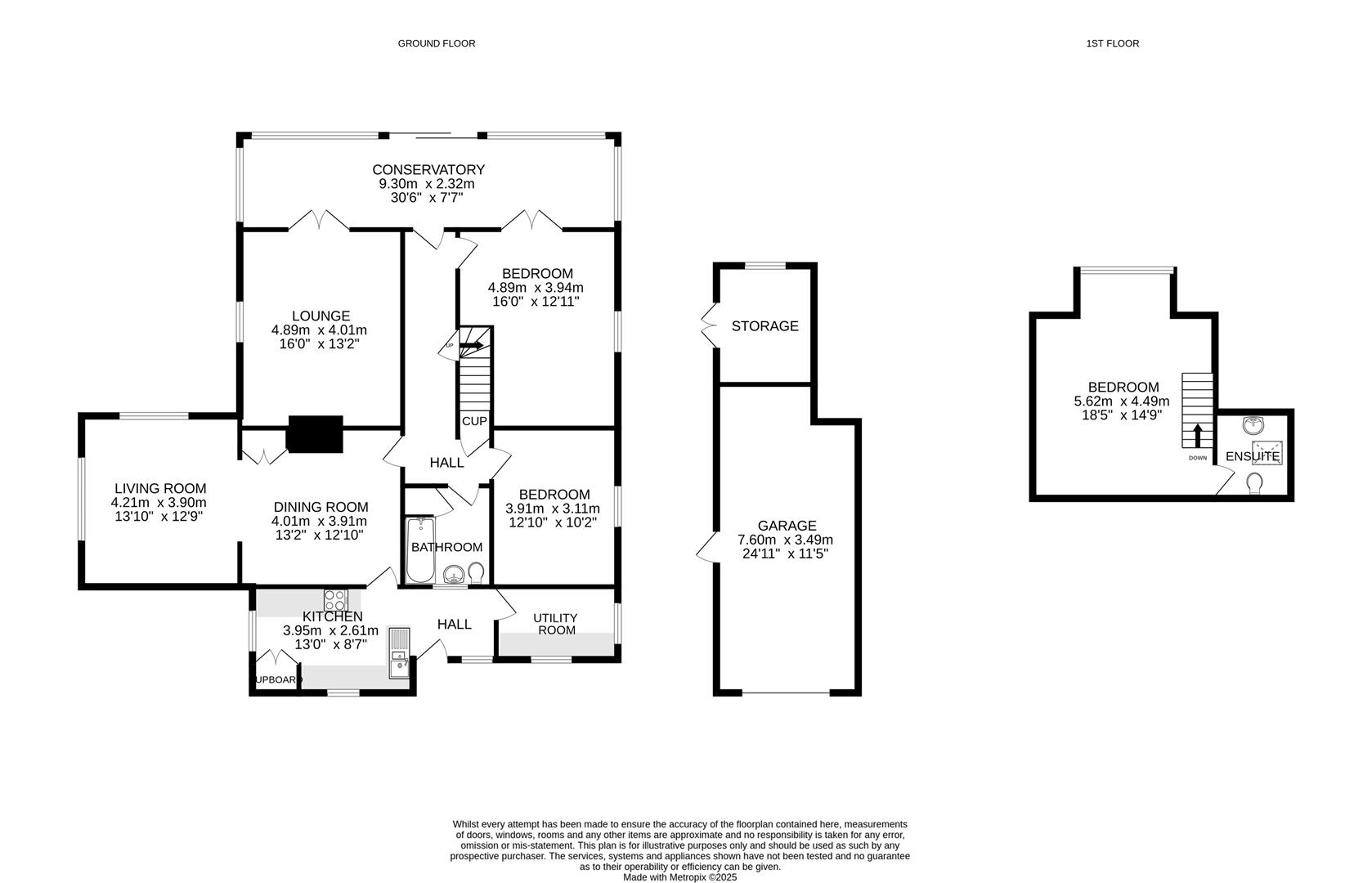
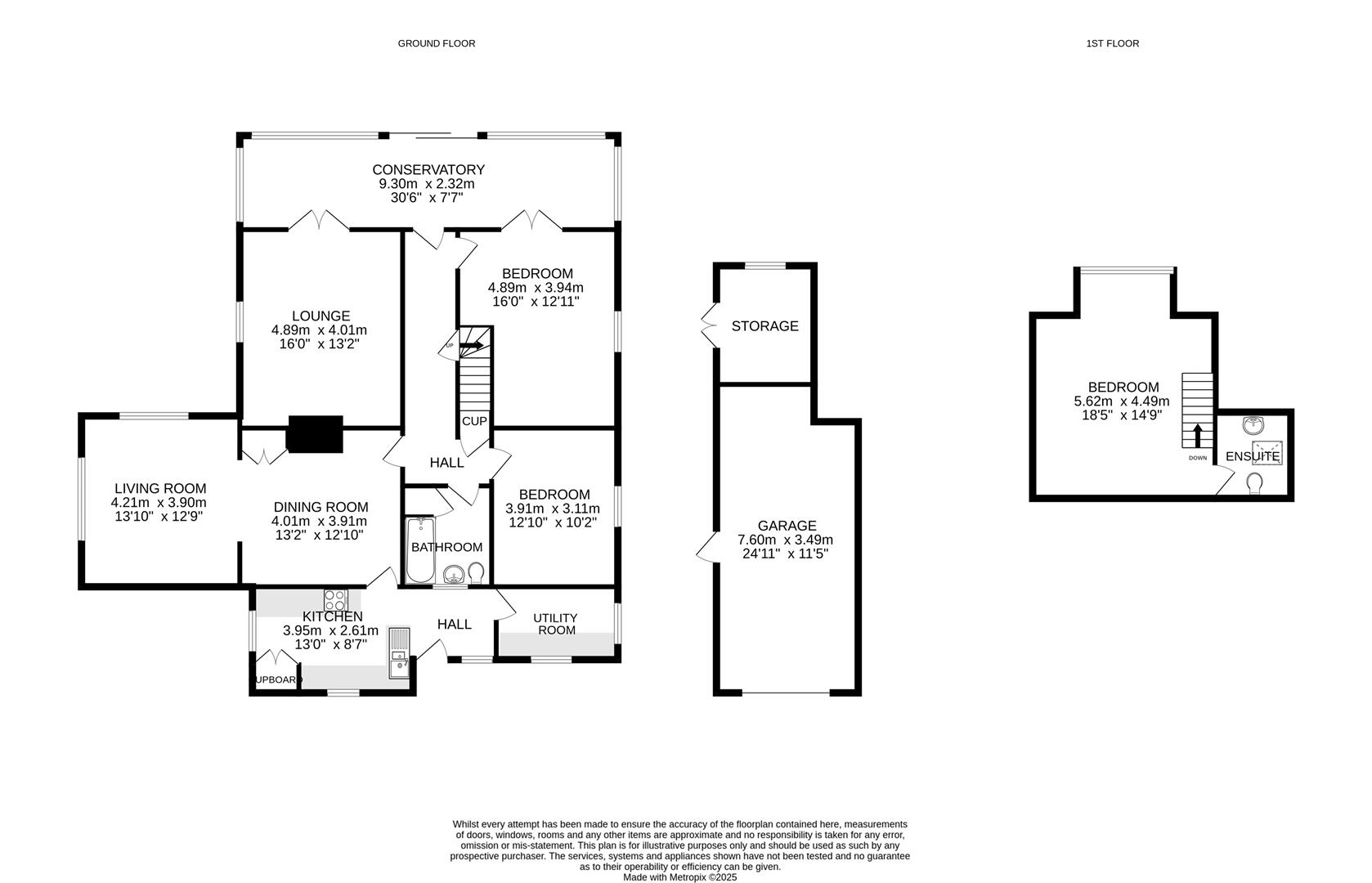
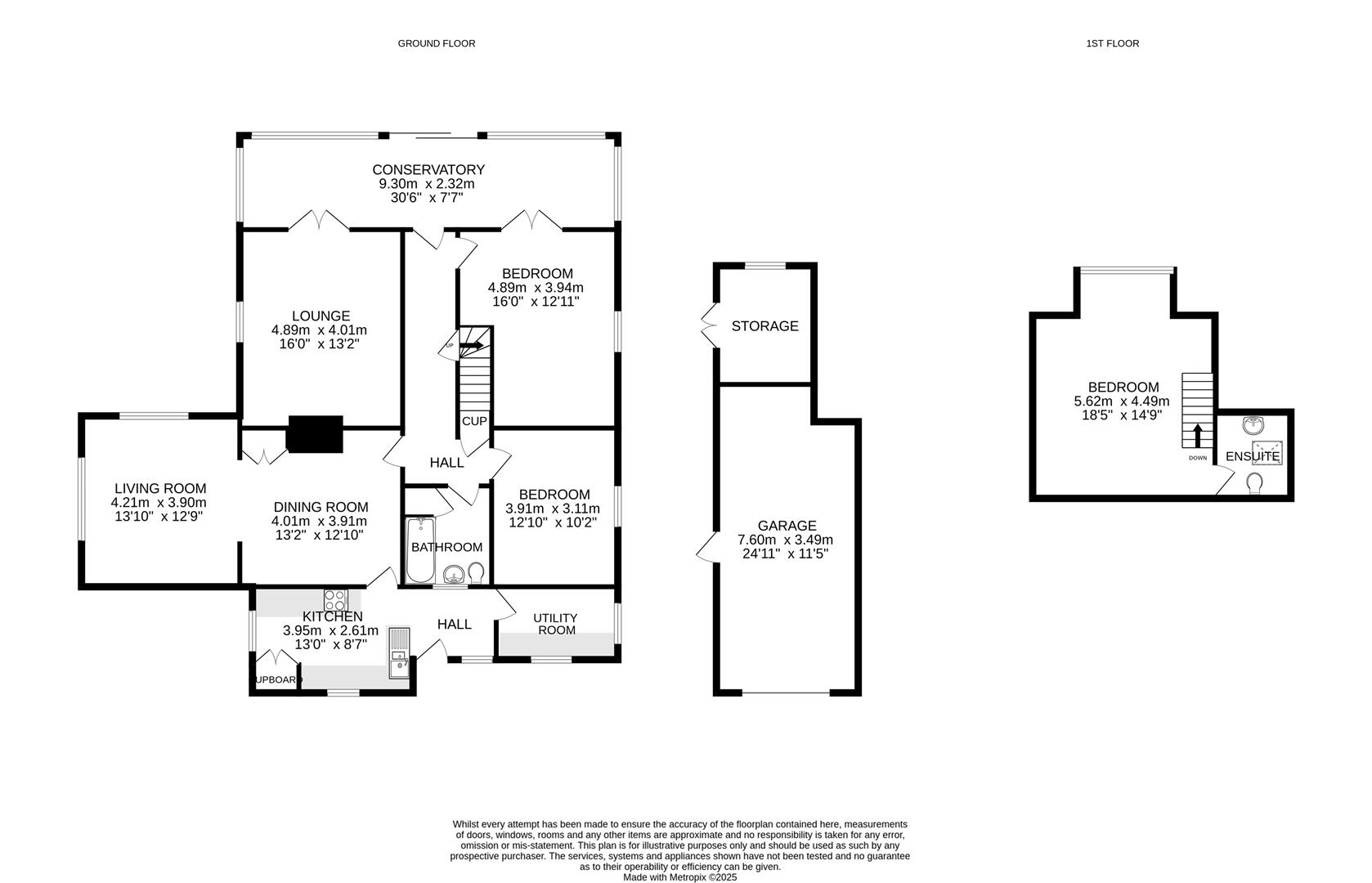
On the ground floor, the hub of the home is a bright and airy lounge, complemented by a separate dining room and a well-equipped kitchen with adjoining utility. A dual aspect reception room provides additional seating space or provides additional flexibility to be used as an extra bedroom depending on your requirements. The expansive conservatory, overlooking the gardens, is ideal for relaxing or entertaining and there is a further two large bedrooms and a contemporary bathroom that completes this level.

Upstairs, the impressive master bedroom enjoys superb sea views, excellent storage, and the added convenience of an en-suite toilet.

Set on a generous plot, the property features extensive gardens, perfect for outdoor living and further development potential. A detached garage with additional storage and off-road parking for at least two vehicles further enhance the practicality of this wonderful coastal home.

Guide Price £750,000 -

Location - Coverack is a stunning location, nestled in a sheltered cove on the Eastern side of the Lizard Peninsula, there is a crescent shaped beach offering access to crystal clear waters perfect for swimming, kayaking and paddle boarding. The heart of the village is the traditional fishing harbour constructed in 1724 from local serpentine and still home to working fishing boats bringing in the catch on a daily basis. The old Lifeboat House now offers fish and chips that can be enjoyed on the harbour and The Paris Hotel offers a great range of food and drinks, there are also a variety of small café's, restaurants and shops as well as a Primary School. It's Cornish living at its absolute best.

Accommodation - Entrance Hallway
Utility Room
Kitchen
Lounge/Diner
Bedroom Four/Reception room
Family Bathroom
Conservatory
Bedroom Two
Bedroom Three
Bedroom One with Ensuite toilet

Garage - with an up and over door with electricity inside providing a fantastic amount of storage. An additional section could be utilised as a workshop aswell as a brilliant amount of storage.

Parking - Providing off road parking for at least two vehicles.

Outside - This generously sized, enclosed garden has been thoughtfully landscaped and sectioned to make the most of the space. Mature shrubs and planting to the borders provide an excellent level of privacy and create a lush, green backdrop throughout the seasons. The garden is predominantly laid to lawn, offering a wide, versatile area that is perfect for garden games, entertaining, or simply relaxing outdoors. Well planned zones give a sense of structure and usability, making it an ideal garden for both families and those who enjoy outdoor living.

Services - Mains water, drainage and electricity. Oil central heating.

Rights Of Way - Our client has informed us that the property has pedestrian and vehicular access over the lane to the property.

Council Tax Band- D -

What3words - ///comb.care.nightcap

Anti Money Laundering Regulations - Purchasers - It is a legal requirement that we receive verified ID from all buyers before a sale can be instructed. We will inform you of the process once your offer has been accepted.

Proof Of Finances - Before agreeing a sale, we will require proof of your financial ability to purchase. We will inform you of what we require prior to agreeing a sale.

Broadband & Mobile Phone Coverage - To check the broadband coverage for this property please visit https://www.openreach.com/fibre-broadband. To check mobile phone coverage please visit https://checker.ofcom.org.uk/

Property Ref: 23459_34186351

Share:

Similar Properties

Modern home, walk to the beach, Praa Sands

4 Bedroom Detached House | Offers in excess of £750,000

Welcome to Sunnyside, a 4 bedroomed, 3 bath/shower room detached house, perfectly centred in Praa Sands with easy access...

Exquisite detached home with views, Ludgvan

3 Bedroom Detached House | Guide Price £750,000

Positioned in a quiet location near the charming hamlet of Ludgvan, this exquisite detached Grade II listed home is a sp...

Balwest, Spacious home and glamping pods

4 Bedroom Bungalow | Offers in excess of £750,000

This impressive home and income opportunity occupies a slightly elevated position, taking full advantage of panoramic co...

Flexible home with annexe and sea view, Nr Praa Sands

5 Bedroom Detached House | Guide Price £795,000

What an incredible opportunity, this spacious four bedroom detached home with a one bedroom annexe offers the perfect bl...

Delightful home in Helford village

3 Bedroom Bungalow | Offers in excess of £800,000

Offered to the market for the first time in over four decades, this delightful three bedroom, single storey home present...

Flexible country residence with annex, Gilly Gabben

6 Bedroom Barn Conversion | Guide Price £800,000

This stunning country residence has so much to offer and is the perfect combination of style, comfort, and convenience h...

The Mather Partnership (Helston)

Helston, Cornwall, TR13 8AA

01326 565016

How much is your home worth?

Use our short form to request a valuation of your property.

Request a Valuation

Mortgage Calculator

Amount Borrowed: £
Total Amount Repayable: £
Total Monthly Payment: £
©2026 The Guild of Property Professionals. All rights reserved. Terms and Conditions | Privacy Policy | Cookie Policy | Complaints Policy | Members Login
The Guild of Property Professionals Trading Address: 121 Park Lane, London W1K 7AG. GPEA Limited. Registered in England & Wales.  Company No: 02819824.  Registered Office Address: 2 St. Stephen's Court, St. Stephen's Road, Bournemouth, Dorset, England, BH2 6LA.  VAT Registration No: 576 8795 61
Book a Property Valuation Update Cookies Preferences