7 Church Crescent, St. Hilary, Cowbridge, The Vale of Glamorgan CF71 7DQ

Asking Price
£410,000

3 Bedroom House for sale in Cowbridge

1 3 1
  • Semi-detached three-bedroom house in a stunning village location with splendid outlook towards a thatched country inn and church.
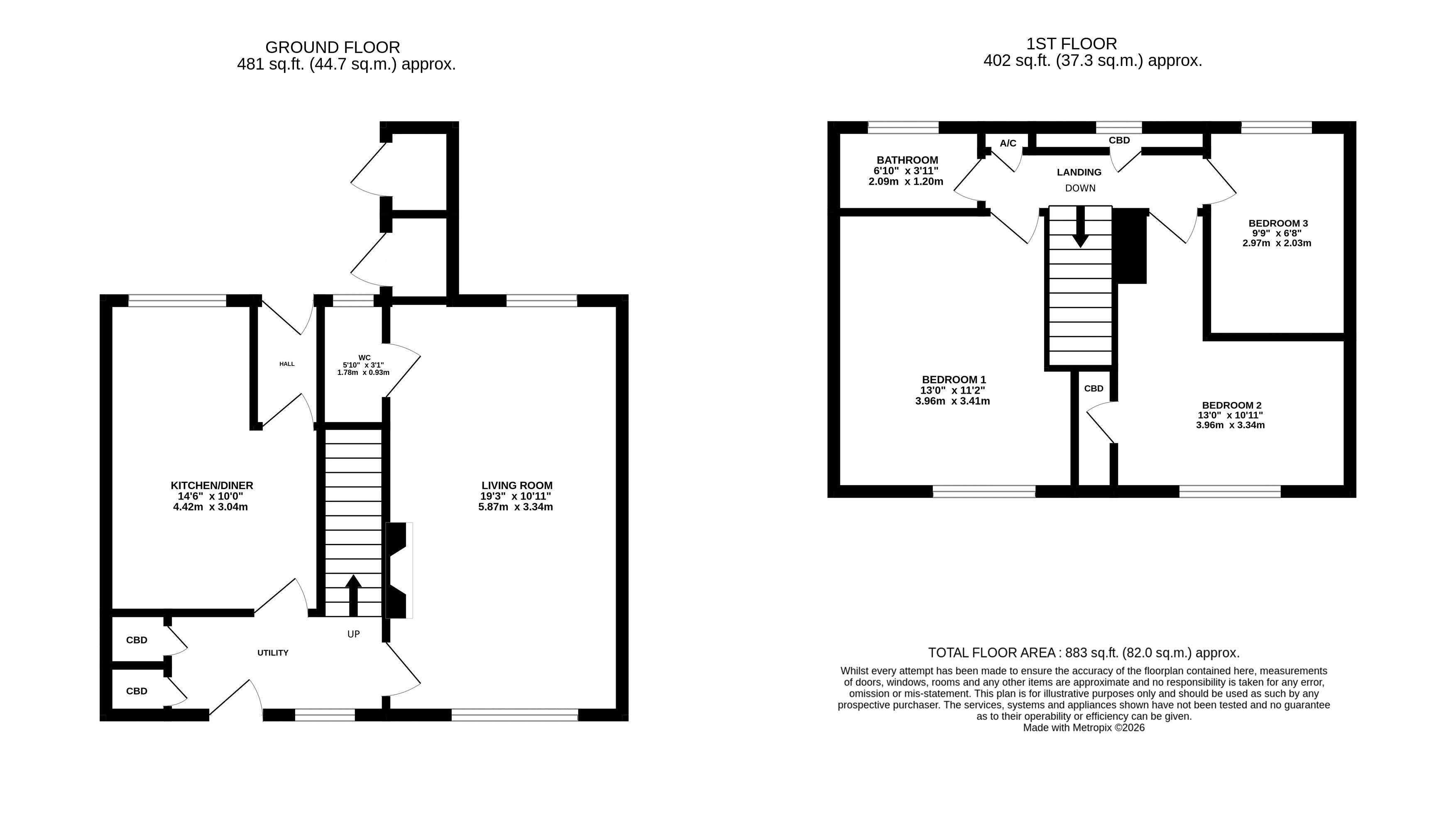
  • Entrance hallway, living room, kitchen/dining room, rear hall and downstairs cloakroom/WC. Three bedrooms and bathroom to first floor.
  • Well-kept lawned gardens to front side and rear. Rear parking space.
  • In need of some modernisation and with potential to extend (subject to planning permission).

Three-bedroom semi-detached house in need of general

modernisation enjoying an outstanding location in the 

centre of the picturesque village of St Hilary with views 

to the grass crescent and St Hilary Church beyond. 



UPVC double glazed entrance door and side screen to 

HALLWAY with timber effect laminate floor and staircase 

to first floor, shelved storage cupboard and door to 

LIVING ROOM. Dual aspect with double glazed windows 

to front and rear, open fireplace with stone surround 

flagstone hearth and timber mantle. KITCHEN/DINING 

ROOM matching timber effect range of oak fronted base 

and wall cupboards, roll top work surfaces with tiled

splash backs and stainless-steel sink and drainer, double 

glazed window to rear elevation doors to storage 

cupboard and understairs store. Small pane glazed door 

to rear hallway, door to back garden and CLOAKROOM 

with fully tiled walls, white low-level W/C and wash-hand 

basin with vanity cupboard.

 

LANDING with loft hatch, to airing cupboard with hot 

water tank and slatted shelving and linen room with 

deep slatted shelving and frosted double glazed window 

to rear elevation. BEDROOM ONE extensive built in 

wardrobes and dressing table, double glazed window 

with picturesque outlook to the crescent and St Hilary 

Church. Double BEDROOM TWO with fitted cupboards and 

again with an aspect over the very pretty village centre. 

BEDROOM THREE, a single room with double glazed 

window to rear. BATHROOM, panelled bath with jacuzzi, 

electric shower and shower screen over, wash hand basin 

with vanity cupboard, low level WC, tiled walls and frosted 

double glazed window. 



A tarmac footpath sweeps around the crescent with a low 

natural stone wall and wrought iron gate to the FRONT 

GARDEN which features a shaped lawn with well-kept and 

well-stocked mature shrubs and flower beds. The garden 

extends to the side and rear of the property with a further 

lawn with deep mixed shrub beds, aluminum framed 

greenhouse and to the rear an attached outbuilding 

including a boiler house with an oil-fired central heating 

boiler and general store. Steps lead down to the rear where 

there is a single parking space.



The space to the side of the property offers potential to 

extend (subject to planning consent).

Important Information

  • This is a Freehold property.

Property Ref: EAXML13503_12723915

Share:

Similar Properties

Lot 7 Approximately 101.29 acres of land, Llwyncelyn Farm, Llwyncelyn, Porth, CF39 9UE

Not Specified | Guide Price £410,000

Llwyncelyn Farm offers a unique opportunity to acquire a substantial property. Primarily a livestock holding featuring e...

15 Trepit Road, Cowbridge, The Vale of Glamorgan CF71 7QL

4 Bedroom Detached House | Asking Price £410,000

A deceptively spacious, extended, four bedroom detached dormer property, situated in a sought after position with views...

Lot 1 Approximately 218.59 acres of land, Llwyncelyn Farm, Llwyncelyn, Porth, CF39 9UE

Not Specified | Guide Price £400,000

Llwyncelyn Farm offers a unique opportunity to acquire a substantial property. Primarily a livestock holding featuring e...

Thistle Cottage, St. Johns Hill, St. Athan, Barry CF62 4PA

3 Bedroom Cottage | Guide Price £415,000

A charming, modern stone fronted detached cottage of great character in a private village setting, enjoying a quiet secl...

Apartment 6, Ocean House, Clarence Road, Cardiff CF10 5FR

3 Bedroom Apartment | Asking Price £415,000

A truly unique property, three double bedroom, loft style, second and third floor duplex apartment situated in the heart...

Ty Parc, Higher End, St. Athan, Vale of Glamorgan, CF62 4LW

4 Bedroom House | Asking Price £424,995

This spacious family home offers a blend of comfort and practicality. From its generous living areas and well-appointed...

H R Thomas Ltd (Cowbridge)

Cowbridge, South Wales, CF71 7AF

01446 772911

How much is your home worth?

Use our short form to request a valuation of your property.

Request a Valuation

Mortgage Calculator

Amount Borrowed: £
Total Amount Repayable: £
Total Monthly Payment: £
©2026 The Guild of Property Professionals. All rights reserved. Terms and Conditions | Privacy Policy | Cookie Policy | Complaints Policy | Members Login
The Guild of Property Professionals Trading Address: 121 Park Lane, London W1K 7AG. GPEA Limited. Registered in England & Wales.  Company No: 02819824.  Registered Office Address: 2 St. Stephen's Court, St. Stephen's Road, Bournemouth, Dorset, England, BH2 6LA.  VAT Registration No: 576 8795 61
Book a Property Valuation Update Cookies Preferences