Wells Terrace, Cheriton Fitzpaine, EX17

Guide Price
£260,000
SSTC
This property listing is now SSTC

3 Bedroom Cottage for sale in Crediton

1 3 1
  • Character Cottage
  • Village location
  • 3 Bedrooms
  • Lounge with woodburner
  • Open plan kitchen/diner
  • Enclosed garden
  • Newly decorated throughout
  • No onward chain!

This three-bedroom semi-detached cottage sits in the village of Cheriton Fitzpaine, with open views across nearby fields and a practical layout arranged over three floors The house has a warm, lived-in feel, with original features balanced by modern updates, and a garden that’s easy to enjoy and maintain. The sale is not dependent on an onward purchase.

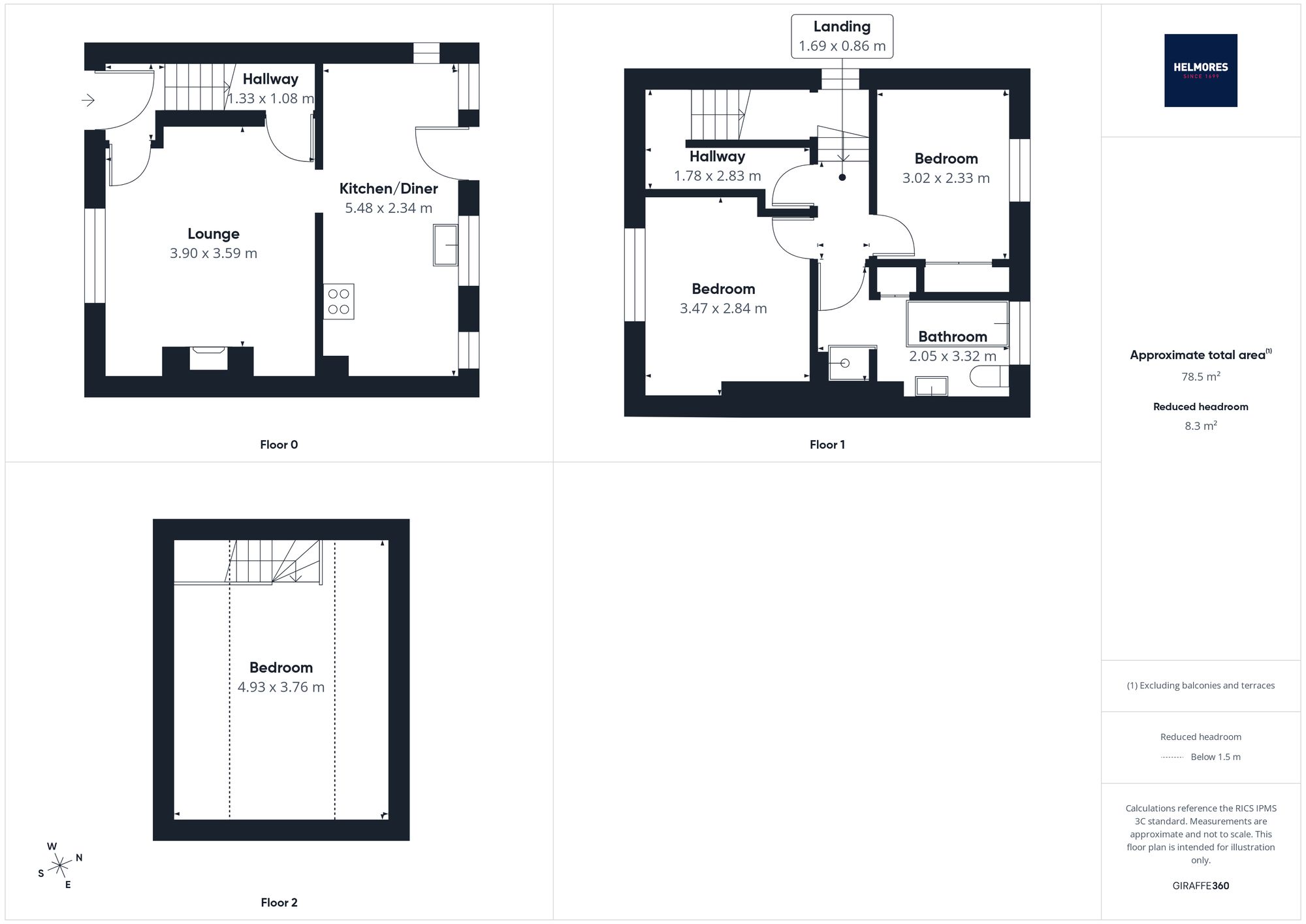
The front door opens into an entrance hall, with a door leading through to the main living room. This is a comfortable, welcoming space centred around an exposed brick fireplace with woodburning stove. At the rear of the cottage, the kitchen and dining area runs across the width of the house and benefits from windows on two sides overlooking the garden. There’s a good range of fitted units with solid wood worktops and tiled splashbacks, along with an electric oven, gas hob and space for a dishwasher, washing machine and fridge/freezer. A stable-style door opens straight out to the garden, making it easy to move between inside and out.

On the first floor, there are two bedrooms, both with built-in storage, along with the family bathroom. The bathroom includes a bath, separate shower, basin and WC.

The top floor is given over entirely to the main bedroom. Set into the roof space, it’s a generous room with three Velux windows bringing in plenty of natural light. The cottage has been completely redecorated in a neutral palate ready for someone to move straight in and make it a home.

The garden is accessed via a gated path to the side of the house as well as directly from the kitchen. Immediately behind the cottage is a paved seating area, with a level lawn beyond. Established borders along the rear fence are planted with a mix of shrubs and perennials, giving the garden colour and structure without making it high-maintenance.

Agents note: The neighbouring property, Hedgehog Cottage, has a pedestrian right of way across the rear of the property via a wooden gate near the house. The current owners of both properties are happy to negotiate altering the path of access and location of the gate.

 

Please see the floorplan for room sizes.

Current Council Tax: Band C - Mid Devon 2025/26 - £2,208.55

Utilities: Mains electric, water, telephone & broadband

Broadband within this postcode: Ultrafast 1800 Mbps

Drainage: Mains drainage

Heating: Oil fired central heating (LPG gas bottles for cooker)

Construction: Brick

Listed: No

Conservation Area: Yes

Tenure: Freehold

Buyers' Compliance Fee Notice: Please note that a compliance check fee of £25 (inc. VAT) per person is payable once your offer is accepted. This non-refundable fee covers essential ID verification and anti-money laundering checks, as required by law.

Boundary positions, access rights and parking arrangements have been provided by the seller, and any land plans shown are for identification purposes only. We have not seen the title deeds or other legal documents, and buyers should confirm exact details and ownership responsibilities with their conveyancer.
Broadband speeds and mobile signal vary by provider and location, and service availability can change over time. Buyers can check current availability and predicted speeds at www.ofcom.org.uk or via the Ofcom coverage checker.
Some images used in this marketing material may be virtually staged for illustration purposes. Buyers should not assume that furnishings, décor, or condition shown are representative of the property as currently presented.

 

CHERITON FITZPAINE is a quintessential mid-Devon village. The village centre is full of character thatch cottages surrounding the church and ancient inn, on the outskirts are newer estates full of families attracted by its modern primary school (OFSTED Good). The village also has a doctor’s surgery, and community-run shop, while ‘Jack’s Acre’ offers local children a large playing field/park maintained by the parish council. Follow the road leading to the A3072 and the nearby towns of Crediton and Tiverton are around 15 minutes away.  This route also takes you past Thornes Farm Shop with its café, shop selling gifts and field-fresh produce.

 

DIRECTIONS

From the A3072 take the turning towards Cheriton Fitzpaine.  Upon entering the village take a left turn beside the Half Moon Inn.  Continue on and take a right turn towards the Ring of Bells, the cottage can be found opposite.

For Sat Nav: EX17 4JF

What3Words: ///overlaps.explains.ordering

Important Information

  • This is a Freehold property.
  • This Council Tax band for this property is: C
  • EPC Rating is D

Property Ref: a4dcef6a-6de6-45d0-8676-d4d79449aed4

Share:

Similar Properties

Bridge Meadow Close, Lapford, EX17

3 Bedroom Semi-Detached House | Guide Price £260,000

Not yet 10 years old, this property is set on the edge of the village of Lapford, 3 bedrooms, enclosed garden, parking f...

Apple Tree Close, Witheridge, EX16

2 Bedroom Detached Bungalow | Guide Price £260,000

* No onward chain * Lovely detached bungalow on a large, level plot with 2 bedrooms, spacious reception rooms, plenty of...

Saxon Close, Crediton, EX17

3 Bedroom Semi-Detached House | Guide Price £260,000

A well presented three bedroom semi detached home in a level position on this popular development in Crediton. With a ge...

Newton St. Cyres, Exeter, EX5

2 Bedroom Cottage | Guide Price £265,000

Lovely character cottage just 10 minutes from the centre of Exeter, perfect spot for getting out of the city but not bei...

Hedgerow Close, Crediton, EX17

3 Bedroom Semi-Detached House | Guide Price £265,000

A well presented three bedroom home in a quiet cul-de-sac within the popular Willow Walk area, offering an enclosed gard...

Meadow Gardens, Crediton, EX17

2 Bedroom Semi-Detached Bungalow | Guide Price £270,000

A beautifully updated two bedroom bungalow in a level cul-de-sac close to Crediton town centre, offering a new roof, mod...

Helmores (Crediton)

Crediton, Devon, EX17 3LF

01363 777999

How much is your home worth?

Use our short form to request a valuation of your property.

Request a Valuation

Mortgage Calculator

Amount Borrowed: £
Total Amount Repayable: £
Total Monthly Payment: £
©2026 The Guild of Property Professionals. All rights reserved. Terms and Conditions | Privacy Policy | Cookie Policy | Complaints Policy | Members Login
The Guild of Property Professionals Trading Address: 121 Park Lane, London W1K 7AG. GPEA Limited. Registered in England & Wales.  Company No: 02819824.  Registered Office Address: 2 St. Stephen's Court, St. Stephen's Road, Bournemouth, Dorset, England, BH2 6LA.  VAT Registration No: 576 8795 61
Book a Property Valuation Update Cookies Preferences