Lapford, Crediton, EX17

Guide Price
£595,000

5 Bedroom Detached House for sale in Crediton

4 5 3
  • Fantastic detached village house
  • 5 bedrooms and 3 bathrooms
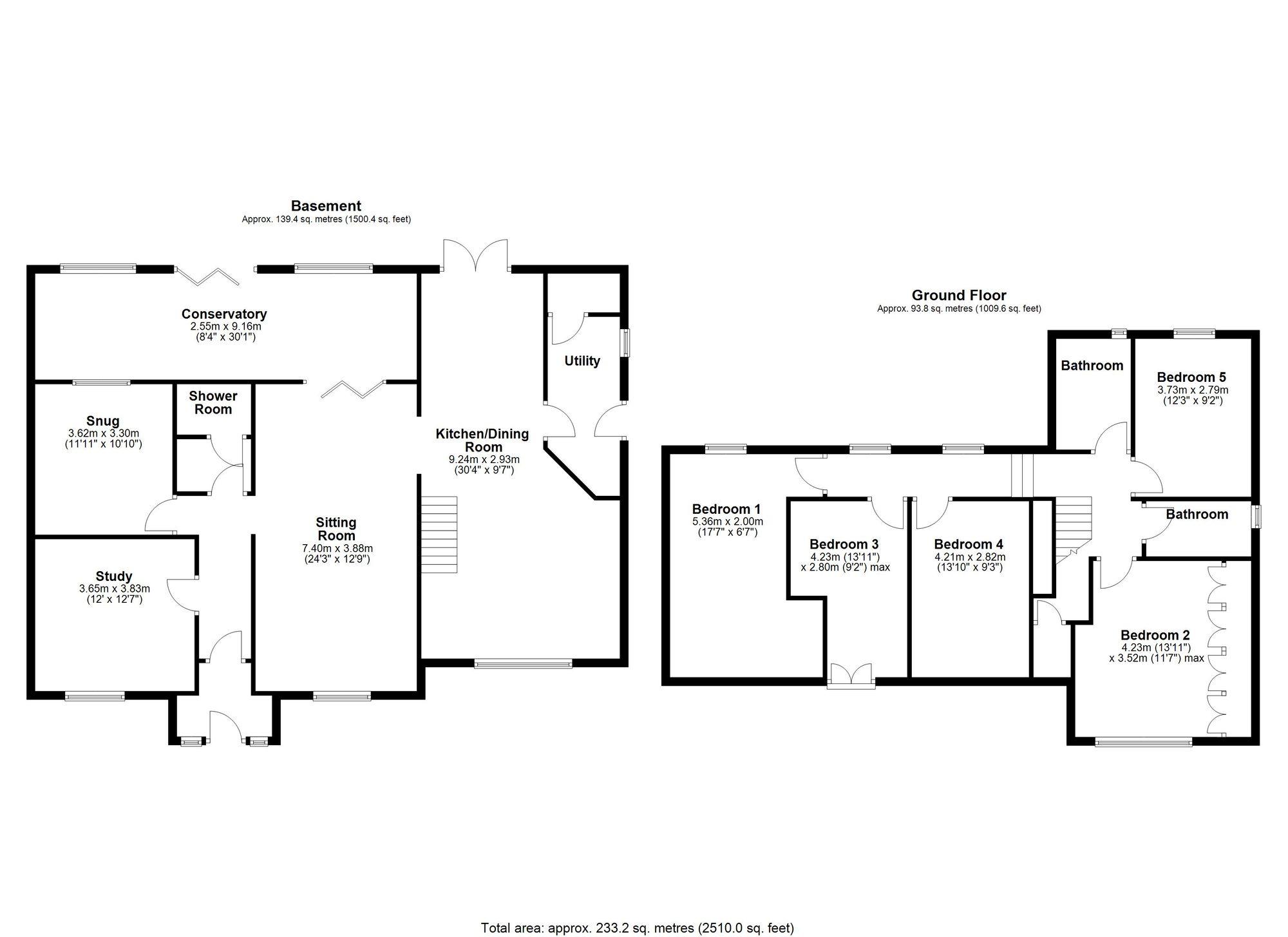
  • Over 2500 sqft of accommodation
  • Sociable living spaces
  • Large rear garden
  • Extended and beautifully presented
  • Fantastic rural views
  • Nearby bus and train stops
  • Eco credentials - EPC B (air-source, solar PV's)
  • Ample off-road parking

Lapford is one of the larger of the local villages and as such has the benefit of an active community with plenty going on. The village boasts a primary school, pub and petrol station/shop and there are regular bus and train services (via the Tarka line) making it an ideal village setting without being isolated. With miles of countryside walks on the doorstep to enjoy too, it’s sure to appeal to a range of buyers. On the edge of the village is Kelland Hill, a small country lane with a linear development line of detached properties which have wonderful rural views with fields to the front and rear aspects.

Kinlet occupies a plot of approx. one third of an acre with the house offering over 2500 sqft of internal accommodation which is a big property. It has undergone a series of extensions and improvements to produce what’s on offer today – a large, bright property with five bedrooms, three bathrooms and various reception rooms making it a flexible and sociable house. Plenty of thought went into the design, not just of the layout but how to make this place work and the addition of underfloor heating on the ground floor, powered by the air source heat pump is a great example. As are the solar panels which feed into a battery for use on site and the double glazed windows which all come together to produce a home that’s easy to run, along with affordable. With an EPC rating of B, that’s pretty impressive on a house of this age and type.

The layout offers three reception rooms on the ground floor which include a large study, a snug and a sitting room, again these offer a variety of layout choices. From the sitting room there are bifold doors to the conservatory which overlooks the rear garden. The heart of many homes is the kitchen and this one doesn’t disappoint. With an island breakfast bar and room for a large table, it’s ideal for those with families and who like entertaining, being able to cook and chat at the same time! As one would expect, there’s also a ground floor WC/shower room and a separate utility room too. On the first floor are five bedrooms with views in both directions, and two bathrooms.

Outside to the front is off-road parking for a number of vehicles which is gated to the country lane and then the rear garden slopes away from the house with the top area being tiered to provide a terrace and fruit and vegetable plots. The remainder of the garden is laid to lawn and backs onto fields plus there’s a greenhouse and useful outbuilding.

It's a large property so for those looking for value for money with plenty of space inside and out, all in a village setting, then this is definitely worth a look.

Agents Note - There is a small portion of the garden to the rear of the property that isn't included in the title plan. This has been used for the uncontested enjoyment of the vendor and previous vendors for at least 17 years. Please contact the agent for further information.

Buyers' Compliance Fee Notice

Please note that a compliance check fee of £25 (inc. VAT) per person is payable once your offer is accepted. This non-refundable fee covers essential ID verification and anti-money laundering checks, as required by law.

Please see the floorplan for room sizes.

Current Council Tax: Band C – Mid Devon

Approx Age: 1960’s and more recent extensions

Construction Notes: Standard

Utilities: Mains electric, water, telephone, broadband and solar PV with 5.2kw

Broadband within this postcode: Superfast Enabled

Drainage: Mains drainage

Heating: Air source heat pump (ground floor – underfloor heating) and wood-burners

Listed: No

Conservation Area: No

Tenure: Freehold

 

LAPFORD is a large village, beyond Morchard Road on the A377 - 9 miles from Crediton and 16 miles from the City of Exeter. Like most Devon parishes, it’s not far from a lovely collection of trees – Eggesford Forest is just up the way, a regal coniferous plantation that plays host to variety of creatures including adders, butterflies, buzzards and woodpeckers (and badgers!). The village itself has a primary school with an excellent Ofsted report, sizeable playing fields (with a football pitch and kid-friendly playground) and a busy pub – The Old Malt Scoop Inn, once a 16th Century coaching inn – which now offers an à la carte dining experience, using only the best local produce.

 

DIRECTIONS : For sat-nav use EX17 6AF and the What3Words address is ///colleague.imprinted.early

but if you want the traditional directions, please read on.

If in Crediton High Street, proceed through the village of Copplestone, being sure to bear right after the traffic lights, staying on the A377 towards Lapford. As you reach Lapford Cross, turn left (just before reaching the garage) into Kelland Hill and the property will be found on the right hand side.  

 

 

 

Energy Efficiency Current: 73.0
Energy Efficiency Potential: 75.0

Important Information

  • This Council Tax band for this property is: C

Property Ref: 3907b157-7a7a-4291-a5e4-daf718dcd523

Share:

Similar Properties

Coldridge, Crediton, EX17

3 Bedroom Detached Bungalow | Guide Price £595,000

* No Chain * Detached village edge bungalow with stunning views set in 0.8 acres with large workshop and stable, 3 bedro...

Newton View, Newton St Cyres, EX5

4 Bedroom Detached House | Guide Price £595,000

A detached, four bedroom home with solar, air source heat pump, garage and parking with a landscaped garden with views–...

The Meadows, Yeoford, EX17

4 Bedroom Detached House | Guide Price £579,950

This is a beautifully presented, modern 4 bedroom family home on the edge of the village backing onto fields, ample spac...

Alexandra Way, Crediton, EX17

5 Bedroom Detached House | Guide Price £599,000

** House and Annexe** A rare opportunity for a large detached, split level house with a separate annexe in the town with...

Bow, Crediton, EX17

5 Bedroom Barn Conversion | Offers Over £600,000

*No onward chain* Beautiful large barn conversion with quality finishes and an abundance of character, 5 bedrooms, 3 bat...

Monks View, Zeal Monachorum, EX17

4 Bedroom Detached House | Guide Price £630,000

A nearly new (2023) “Farmhouse Style” detached home with stunning rural views just outside of the village, 4 bedrooms wi...

Helmores (Crediton)

Crediton, Devon, EX17 3LF

01363 777999

How much is your home worth?

Use our short form to request a valuation of your property.

Request a Valuation

Mortgage Calculator

Amount Borrowed: £
Total Amount Repayable: £
Total Monthly Payment: £
©2026 The Guild of Property Professionals. All rights reserved. Terms and Conditions | Privacy Policy | Cookie Policy | Complaints Policy | Members Login
The Guild of Property Professionals Trading Address: 121 Park Lane, London W1K 7AG. GPEA Limited. Registered in England & Wales.  Company No: 02819824.  Registered Office Address: 2 St. Stephen's Court, St. Stephen's Road, Bournemouth, Dorset, England, BH2 6LA.  VAT Registration No: 576 8795 61
Book a Property Valuation Update Cookies Preferences