Kiddicott, Crediton, EX17

Guide Price
£198,000

2 Bedroom Semi-Detached House for sale in Crediton

1 2 2
  • Two double bedroom period cottage
  • Central Crediton location, level walk to amenities
  • Spacious kitchen/dining room forming the heart of the home
  • Separate sitting room with retained character features
  • First floor bathroom with bath and shower
  • Gas central heating with recently installed boiler
  • Private garages or spaces sometimes available to rent locally

Set close to the centre of Crediton, yet tucked away, this two bedroom period cottage offers character, practicality and the convenience of town living within easy walking distance of everyday amenities. Shops, cafés, schools and the wider High Street are all nearby, while green spaces and parks are within reach for fresh air and exercise.

Inside, the house combines traditional features with comfortable modern updates. The ground floor is arranged around a generous kitchen and dining space, which works well as the main hub of the home. There is room for a table as well as good storage and worktop space, making it practical for day-to-day use. The adjoining sitting room is a welcoming space, with natural light and retained character details adding warmth.

Upstairs, there are two double bedrooms, both of comfortable proportions and offering flexibility for couples, small families or those needing space to work from home. The bathroom includes both bath and shower facilities and is arranged in a straightforward, functional layout.

The property benefits from gas central heating, with a recently installed boiler providing reassurance for future owners.

While the cottage does not have its own garden, parks and open spaces are within walking distance, and the town centre location means everything needed for daily life is close at hand. Parking is available on nearby streets, and private garages or spaces are sometimes available to rent locally.

Overall, this is a well maintained and characterful home in a central position, offering straightforward, low maintenance living with the advantages of town convenience and period charm.

Agents Notes:

Boundaries, Access & Parking:
Boundary positions, access rights and parking arrangements have been provided by the seller, and any land plans shown are for identification purposes only. We have not seen the title deeds or other legal documents, and buyers should confirm exact details and ownership responsibilities with their conveyancer.

Broadband & Mobile Coverage:
Broadband speeds and mobile signal vary by provider and location, and service availability can change over time. Buyers can check current availability and predicted speeds at www.ofcom.org.uk or via the Ofcom coverage checker.

Virtual Staging:
Some images used in this marketing material may be virtually staged for illustration purposes. Buyers should not assume that furnishings, décor, or condition shown are representative of the property as currently presented.

Buyers' Compliance Fee Notice

Please note that a compliance check fee of £25 (inc. VAT) per person is payable once your offer is accepted. This non-refundable fee covers essential ID verification and anti-money laundering checks, as required by law.

 

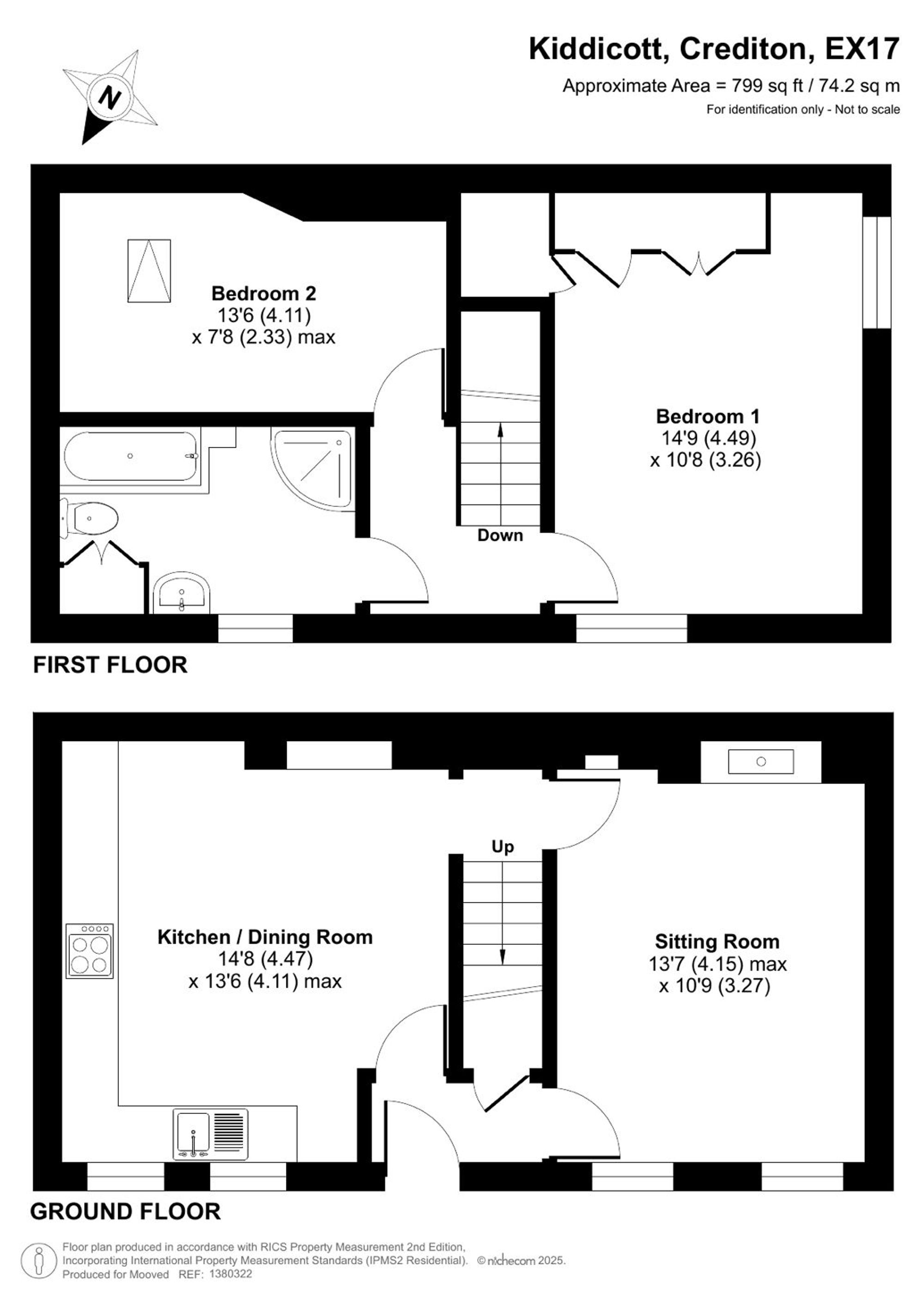
Please see the floorplan for room sizes.

Current Council Tax: Band A – Mid Devon

Approx Age: 1800’s

Construction Notes: Stone/cob under slate roof

Utilities: Mains electric, water, gas, telephone & broadband

Drainage: Mains

Heating: Mains gas

Listed: No

Conservation Area: Yes

Tenure: Freehold

 

CREDITON is a vibrant market town with a bustling high street full of independent shops, eateries, and pubs. In recent years a diverse arts scene has grown to include all manner of mediums, with the performing arts making use of the town’s market square where, in the summer months, a range of activities take place. The market square is also home to the town’s twice-monthly farmer’s market. The town has an equally significant past. It was originally the first Bishopric in Devon and the imposing Parish Church of The Holy Cross now stands where once stood Devon’s first Saxon cathedral (909-1050AD). It is also the birthplace of Saint Boniface, one of the founding fathers of the Christian church in Europe. Easily commutable to Exeter and with two primary schools, a secondary school with sixth form as well as a wide range of necessary amenities, it’s clear why the town is a firm favourite with locals and relocators alike.

 

DIRECTIONS : For sat-nav use EX17 2AY and the What3Words address is ///storming.paying.crescendo but if you want the traditional directions, please read on.

From Crediton High pass Sunflowers Nursery on your right and at the end of the railings, turn right, down the steps and follow the cobbled path, the cottage will be found on your right.     

Energy Efficiency Current: 63.0
Energy Efficiency Potential: 88.0

Important Information

  • This is a Freehold property.
  • This Council Tax band for this property is: A

Property Ref: c8db37de-3ec8-4cfa-bd82-c7a715918383

Share:

Similar Properties

Mill Lane, Bow, EX17

2 Bedroom Semi-Detached Bungalow | Guide Price £195,000

* No Chain * Semi-detached village edge bungalow with 2 double bedrooms, garden & parking with uPVC double glazing and g...

Westgate, Lapford, EX17

2 Bedroom Bungalow | Guide Price £195,000

*Keen to sell as already found onward purchase!* A semi-detached, 2 bedroom bungalow on a quiet village cul-de-sac with...

Churchill Drive, Crediton, EX17

2 Bedroom Flat | Guide Price £185,000

A stylish ground floor apartment with a private garden and parking in a modern 2020 town conversion. Immaculate througho...

High Street, Crediton, EX17

2 Bedroom Terraced House | Guide Price £199,000

* No onward chain * This lovely Victorian terraced cottage has heaps of potential, just a short walk to the High Street...

Sandford, New Buildings, EX17

1 Bedroom Plot | Offers Over £200,000

Non standard dwelling on 0.4 acre plot with outbuildings – would suit replacement dwelling (stp) with stunning views and...

Charlotte Street, Crediton, EX17

2 Bedroom House | Guide Price £200,000

Don't judge a book by it's cover! 2 double bedroom town cottage with large ground floor space. Utility area, lovely gard...

Helmores (Crediton)

Crediton, Devon, EX17 3LF

01363 777999

How much is your home worth?

Use our short form to request a valuation of your property.

Request a Valuation

Mortgage Calculator

Amount Borrowed: £
Total Amount Repayable: £
Total Monthly Payment: £
©2026 The Guild of Property Professionals. All rights reserved. Terms and Conditions | Privacy Policy | Cookie Policy | Complaints Policy | Members Login
The Guild of Property Professionals Trading Address: 121 Park Lane, London W1K 7AG. GPEA Limited. Registered in England & Wales.  Company No: 02819824.  Registered Office Address: 2 St. Stephen's Court, St. Stephen's Road, Bournemouth, Dorset, England, BH2 6LA.  VAT Registration No: 576 8795 61
Book a Property Valuation Update Cookies Preferences