Orchard Close, Crediton, EX17

Guide Price
£365,000
SSTC
This property listing is now SSTC

4 Bedroom Semi-Detached House for sale in Crediton

1 4 2
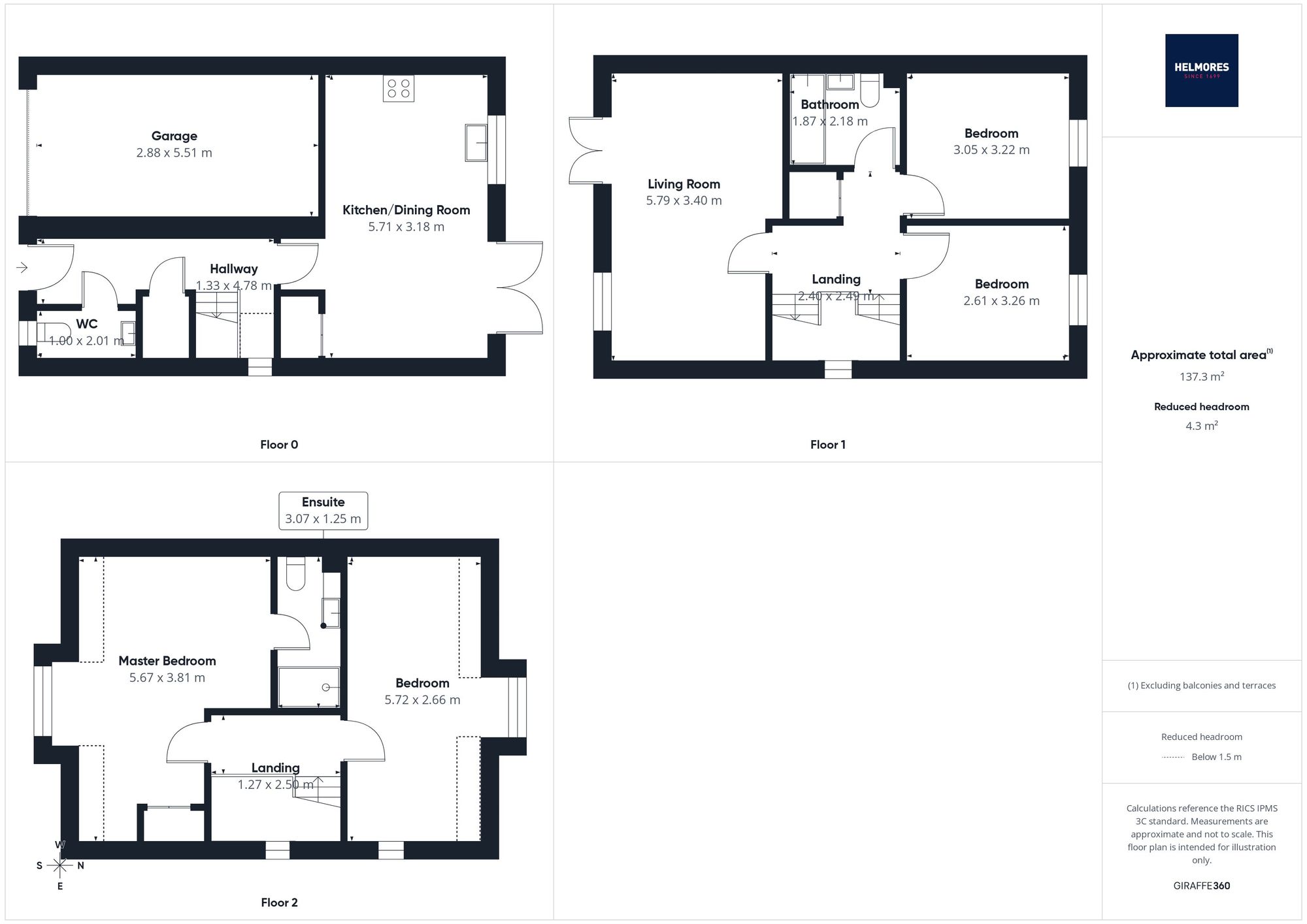
  • Spacious (1450sqft) four bedroom semi-detached home arranged over three floors
  • Quiet cul-de-sac within easy reach of Crediton’s amenities
  • Modern kitchen and dining room with patio doors to the garden
  • Large living room with Juliet balcony
  • Master bedroom with built-in wardrobe and en-suite
  • Three further generous bedrooms
  • Private rear garden with patio and decking
  • Driveway parking plus garage with electric roller door
  • Energy-saving roof-fitted solar panels
  • No onward chain and approx. two years remaining on the LABC warranty

Set within one of Crediton’s more recent developments, this large, smart four bedroom, semi-detached home offers excellent space over three floors, all within easy reach of the town’s shops, schools and transport links. At over 1450 sqft (inc garage), it’s a spacious home and more than one would expect for a house of this type and was built in 2017 making it a modern addition to the town. Crediton itself is a thriving market town with a great community feel, a wide High Street lined with independent shops, regular buses and trains on the Tarka Line, and both primary and secondary schooling close by. Orchard Close is a quiet cul-de-sac tucked away from the main road, giving a peaceful setting while still remaining highly convenient for day-to-day life.

Inside, the accommodation is bright, well-arranged and finished with solid wood flooring throughout. The welcoming entrance hall gives access to the ground floor kitchen/dining room, a lovely entertaining space that forms the heart of the home, fitted with modern units, a range cooker, integrated appliances and patio doors to the garden. There’s an understairs cupboard plus a WC off the entrance hall too. The first floor offers a great sized light and spacious living room with a Juliet balcony to the front (south facing), along with two bedrooms and a family bathroom. The top floor provides an impressive master bedroom with built-in wardrobe and en-suite, as well as another large double bedroom to the rear. All four bedrooms are well proportioned, making the layout ideal for families or those needing home office space.

Outside, the rear garden enjoys a private feel with a combination of patio and decking, perfect for low-maintenance outdoor living. The property benefits from driveway parking and of course the garage which has an electric roller door, with additional visitor spaces nearby. The roof is fitted with solar panels (owned) adding additional energy savings which will be passed on to a new owner, and the property is offered with no onward chain and the remainder of its LABC warranty (2 years to go).

 

Agents’ Notes:

Boundaries, Access & Parking:
Boundary positions, access rights and parking arrangements have been provided by the seller, and any land plans shown are for identification purposes only. We have not seen the title deeds or other legal documents, and buyers should confirm exact details and ownership responsibilities with their conveyancer.

Broadband & Mobile Coverage:
There is Fibre to the property giving excellent communication speeds. Buyers can check current availability and predicted speeds at www.ofcom.org.uk or via the Ofcom coverage checker.

Chain Status / Vacant Property:
We’re informed by the seller that the property is intended to be sold with vacant possession. This information was correct at the time of listing but may change prior to sale.

Buyers' Compliance Fee Notice

Please note that a compliance check fee of £25 (inc. VAT) per person is payable once your offer is accepted. This non-refundable fee covers essential ID verification and anti-money laundering checks, as required by law.

 

Please see the floorplan for room sizes.

Current Council Tax: Band D – Mid Devon

Approx Age: 2017

Construction Notes: Standard

Utilities: Mains electric, water, gas, telephone & broadband (fibre to the property) plus owned solar panels

Drainage: Mains

Heating: Mains gas

Listed: No

Conservation Area: No

Tenure: Freehold

 

CREDITON is a vibrant market town with a bustling high street full of independent shops, eateries, and pubs. In recent years a diverse arts scene has grown to include all manner of mediums, with the performing arts making use of the town’s market square where, in the summer months, a range of activities take place. The market square is also home to the town’s twice-monthly farmer’s market. The town has an equally significant past. It was originally the first Bishopric in Devon and the imposing Parish Church of The Holy Cross now stands where once stood Devon’s first Saxon cathedral (909-1050AD). It is also the birthplace of Saint Boniface, one of the founding fathers of the Christian church in Europe. Easily commutable to Exeter and with two primary schools, a secondary school with sixth form as well as a wide range of necessary amenities, it’s clear why the town is a firm favourite with locals and relocators alike.

 

 

DIRECTIONS : For sat-nav use EX17 2FB and the What3Words address is ///diagram.verve.locker but if you want the traditional directions, please read on.

From Crediton High Street, turn into Market Street and into the town square. Turn right onto Parliament Street and exit the square passing the library on your right and then Newcombes Meadow. Take the next left (just after the give way junction) into Newcombes and proceed up the hill, turning right into Orchard Close and No 4 will be found on your left.   

Energy Efficiency Current: 90.0
Energy Efficiency Potential: 91.0

Important Information

  • This is a Freehold property.
  • This Council Tax band for this property is: D

Property Ref: eec4fb99-a9af-4e19-babc-97d8bd3665e4

Share:

Similar Properties

Sandford, Crediton, EX17

4 Bedroom Cottage | Guide Price £365,000

A beautifully presented, period family home with views over The Square, four bedrooms, characterful accommodation and ga...

Lapford, Crediton, EX17

3 Bedroom Detached Bungalow | Guide Price £360,000

This detached and extended bungalow sits in a superb quarter-acre plot with glorious south facing views, gardens and fle...

Chapel Downs Road, Crediton, EX17

3 Bedroom Detached Bungalow | Guide Price £360,000

An attractive and well kept detached town bungalow on a corner cul-de-sac plot, 3 bedrooms, modern kitchen and bathroom...

Chawleigh, Chulmleigh, EX18

Not Specified | Guide Price £370,000

A historic village pub with upgraded owners accommodation, beer garden, bar and restaurant and car park. Further potenti...

East Street, Chulmleigh, EX18

4 Bedroom Cottage | Guide Price £370,000

A beautiful town cottage, full of character yet a modern twist with open light spaces as well as cosy cottage feel! 4 be...

Park Street, Crediton, EX17

3 Bedroom Detached House | Guide Price £375,000

* No Chain * This imposing 1950’s detached house offers a fantastic opportunity to extend (STP) and improve to a wonderf...

Helmores (Crediton)

Crediton, Devon, EX17 3LF

01363 777999

How much is your home worth?

Use our short form to request a valuation of your property.

Request a Valuation

Mortgage Calculator

Amount Borrowed: £
Total Amount Repayable: £
Total Monthly Payment: £
©2026 The Guild of Property Professionals. All rights reserved. Terms and Conditions | Privacy Policy | Cookie Policy | Complaints Policy | Members Login
The Guild of Property Professionals Trading Address: 121 Park Lane, London W1K 7AG. GPEA Limited. Registered in England & Wales.  Company No: 02819824.  Registered Office Address: 2 St. Stephen's Court, St. Stephen's Road, Bournemouth, Dorset, England, BH2 6LA.  VAT Registration No: 576 8795 61
Book a Property Valuation Update Cookies Preferences