Crediton, EX17

Guide Price
£795,000
SSTC
This property listing is now SSTC

5 Bedroom Detached House for sale in Crediton

3 5 3
  • Brand New Detached House
  • One of just two plots
  • Over 2500 sqft with 5/6 beds, 3 baths
  • Each with 5 acres of garden, paddock and woodland
  • Ample parking
  • Air source heat pumps and underfloor heating
  • Ready 2025
  • Reserve now

These two brand new detached family homes will appeal to a range of buyers due to all that is on offer. Located approx. 4 miles from Crediton and 4 miles from the A30 at Cheriton Bishop, it’s a semi-rural position that’s still accessible. Crediton offers a range of services and schooling (school bus passes the houses) and Exeter is only a short drive down the A30 with connections by road, rail and air. Posbury is a small but spread out hamlet and somewhat of a hidden gem here in Mid Devon.

The houses are nearing completion and are timber framed with airsource heat pumps and will be finished to a high standard. There are several factors that make these stand out. First off, they’re a really good size. Over 2500sqft with 5 bedrooms, 3 bathrooms and wonderful open plan kitchen/family rooms. There’s also a separate living room, (Possible 6th bedroom), study and utility, giving them a broad appeal. Then there’s the location being amongst the rolling hills yet not isolated. But the biggest point is the land. Each house will have a total of 5 acres! Split into gardens, paddocks and woodland, each house will definitely have that feeling of space and room to enjoy the outdoors. The gardens are generous, the paddocks will be about an acre each with the rest made up of deciduous woodland.

Due to be completed in Summer 2025, reservations are now open for the right buyers.

So if you’re in the market for a large new build with ample space inside and out, and ready to move, please get in touch.

 

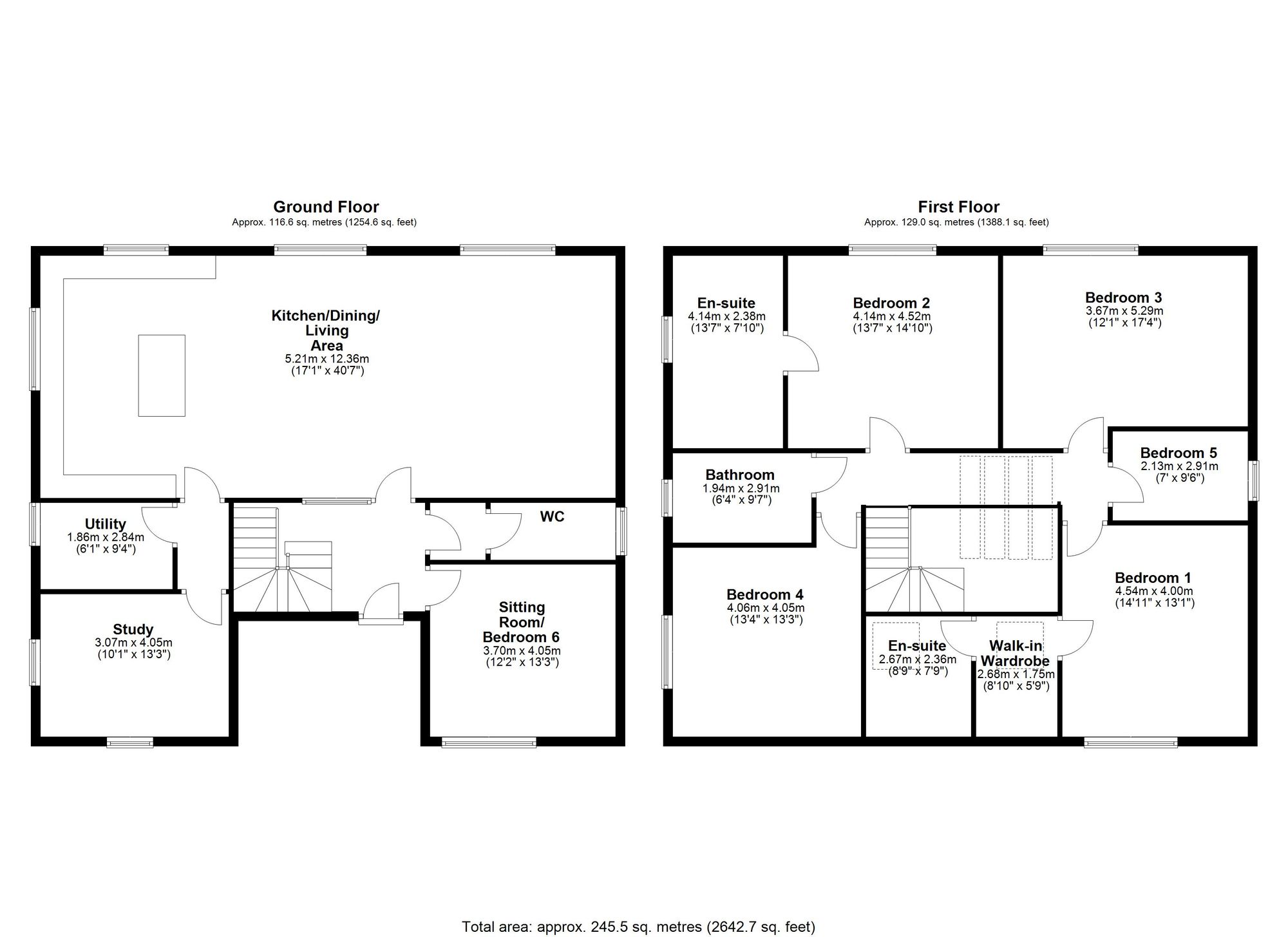
Please see the floorplan for room sizes.

Current Council Tax: TBC

Approx Age: 2025

Construction Notes: Timber frame and tiled roof

Utilities: Mains electric and water

Drainage: Private Drainage (individual treatment plants)

Heating: Air source heat pump with underfloor heating

Listed: No

Conservation Area: No

Tenure: Freehold

Agents notes- Some images may have been digitally enhanced or virtually staged to illustrate the home’s potential, including added twilight effects or lighting. These are for guidance only and may not reflect the property’s current appearance or condition.

CREDITON : An ancient market town, with a contemporary feel – only a short, 20-minute drive NW from the city of Exeter. Set in the Vale of the River Creedy, amongst gentle, rolling hills and verdant pastures. Sincerely picture postcard. Once the capital of Devon, Crediton is famed for its inspiring sandstone church and for being the birthplace of Saint Boniface in 680 AD. Its high street is a vibrant place, abuzz with trade –artisan coffee shops, roaring pubs, a farmers’ market and bakeries, jam-packed with mouthwatering delights. For those commuting it has hassle free transport links into Exeter and for schooling a prestigious community college (Queen Elizabeth’s). In addition, it boasts a brilliant gym & leisure centre for New Year’s resolutions, three supermarkets for the weekly shop and a trading estate for any practical needs. All neatly held in a single valley.

 

DIRECTIONS : For sat-nav use EX17 3QE and the What3Words address is ///able.century.remotest

 

 

 

Important Information

  • This is a Freehold property.

Property Ref: 5f1ce118-4905-47ee-ba18-0dc0b7c7b96d

Share:

Similar Properties

Posbury, Crediton, EX17

5 Bedroom Detached House | Guide Price £795,000

One of just two BRAND NEW detached family homes with 5 ACRES EACH! 4 bedrooms, 4 bathrooms, open plan family kitchens an...

Hilltops, Cheriton Bishop, EX6

4 Bedroom Detached House | Price from £795,000

A collection of beautifully crafted contemporary homes with Dartmoor views, exceptional eco-specification and timeless d...

Colebrooke, Crediton, EX17

4 Bedroom Detached House | Guide Price £725,000

What a spot! Right on the edge of this small Mid Devon village is this large, four bedroom barn conversion sat in approx...

Lapford, Crediton, EX17

4 Bedroom Detached Bungalow | Guide Price £875,000

Architecturally designed stunning 4 double bedroom home on the edge of Lapford Village set in 3.36 acres of woodland, ga...

Bow, Crediton, EX17

5 Bedroom Detached House | Guide Price £899,950

Multiple occupancy in the heart of Devon? A large, detached country house set in over an acre of grounds with 5 bedrooms...

Woodland Head, Yeoford, EX17

4 Bedroom Detached Bungalow | Guide Price £985,000

Spectacular four bedroom rural home in an elevated setting with panoramic countryside views, approx. 12 acres of land, e...

Helmores (Crediton)

Crediton, Devon, EX17 3LF

01363 777999

How much is your home worth?

Use our short form to request a valuation of your property.

Request a Valuation

Mortgage Calculator

Amount Borrowed: £
Total Amount Repayable: £
Total Monthly Payment: £
©2026 The Guild of Property Professionals. All rights reserved. Terms and Conditions | Privacy Policy | Cookie Policy | Complaints Policy | Members Login
The Guild of Property Professionals Trading Address: 121 Park Lane, London W1K 7AG. GPEA Limited. Registered in England & Wales.  Company No: 02819824.  Registered Office Address: 2 St. Stephen's Court, St. Stephen's Road, Bournemouth, Dorset, England, BH2 6LA.  VAT Registration No: 576 8795 61
Book a Property Valuation Update Cookies Preferences