Chestnut Avenue, Shavington, CW2

£299,950
SSTC
This property listing is now SSTC

3 Bedroom Semi-Detached House for sale in Crewe

3 3 1
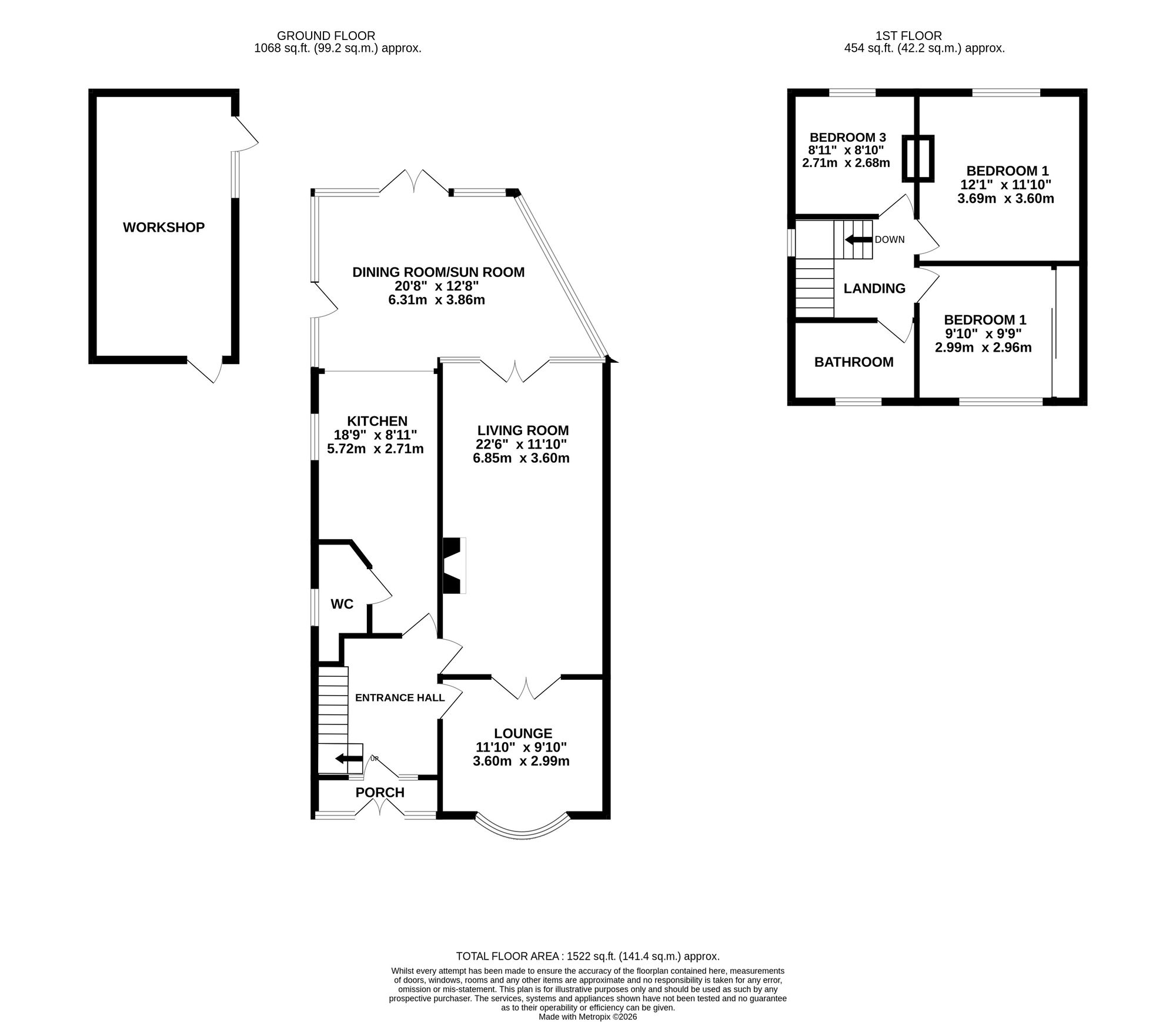
  • The property benefits from extended living accommodation, including a cosy lounge, a spacious extended living room, and a bright sun room dining area with direct access to the garden.
  • The modern kitchen is well-equipped with ample storage, along with integrated appliances including a double oven, microwave, induction hob, fridge, freezer, and dishwasher.
  • There are three versatile bedrooms, including two generous doubles—one with field views and one with built-in wardrobes—and a flexible third room.
  • The main bathroom features a sleek contemporary suite with a bath and overhead dual shower, including a rainfall shower.
  • Externally, the home benefits from a rear garden with patio and lawn, a useful workshop, and a driveway with parking for at least four cars.

Situated in the sought-after village of Shavington, this beautifully presented three-bedroom semi-detached home offers generous living space, modern comforts, and charming countryside views—perfect for families and those who love to entertain.

The property is entered via a practical porch, providing useful space for storing shoes and coats and helping to keep the main living areas clutter-free. From here, you step into a welcoming central hallway which gives access to the principal ground floor rooms, including the sitting room, lounge, and kitchen.

Positioned at the front of the property, the sitting room offers a versatile and private space, ideal as a home office, snug, or additional reception room.

The lounge provides a warm and inviting retreat, perfect for relaxing into the evening. A large front-facing window allows plenty of natural light to fill the room, creating a bright yet comfortable atmosphere. From here, double doors open into a spacious extended living room, offering ample space for socialising, family gatherings, or simply unwinding in style.

Flowing seamlessly from the living area, French doors lead into a delightful sun room. Bathed in natural light, this space creates a lovely dining area with direct access to the rear garden—perfect for everyday meals or entertaining guests while enjoying views of the outdoors.

The kitchen is thoughtfully designed with an abundance of storage cabinets and generous counter space, and is also accessed directly from the hallway for added convenience. Integrated appliances include a double oven, microwave, induction hob, fridge, freezer, and dishwasher, providing both practicality and a sleek, modern finish. A downstairs WC also offers space for a washing machine and dryer, further enhancing the home’s functionality.

Upstairs, bedroom one is a spacious double featuring striking open views across fields to the rear—an idyllic backdrop to start and end your day. Bedroom two is another well-proportioned double, complete with built-in wardrobes spanning one wall for excellent storage. Bedroom three is also a double room, offering flexibility for use as a guest bedroom, nursery, or additional workspace.

The main bathroom boasts a sleek, contemporary design, fitted with a bath and overhead dual shower, including a luxurious rainfall feature.

Externally, the rear garden offers a patio area ideal for al fresco dining or enjoying warm summer days, alongside a well-maintained lawn. A substantial workshop provides excellent additional storage or hobby space. To the front, the driveway comfortably accommodates at least four vehicles, ensuring ample parking for family and visitors alike.

Agents Notice: Please note that the garden photograph included in this Listing was taken during the Summer of 2025. Seasonal changes may affect the current appearance of planting, lawn condition, and surrounding foliage.

Location

Shavington is a large village to the south of Crewe and east of Nantwich offering a wide range of amenities and good road links but with the benefit of the countryside being moments away. The village offers an array of amenities including pubs and restaurants, convenience shops, primary and secondary school, leisure centre, medical practice and pharmacy. There are excellent road links to the larger towns of Nantwich, Crewe and Newcastle-under-Lyme and junction 16 of the M6 is only 6 miles away providing access to all the major cities. The major train station of Crewe is just 2.8 miles (approx.) away and the nearest airports are Manchester and Liverpool to the north and Birmingham to the south.

Important Information

  • This is a Freehold property.
  • This Council Tax band for this property is: C
  • EPC Rating is D

Property Ref: 38e77844-225d-400f-ab3a-01db894dcb84

Share:

Similar Properties

Hillary Drive, Audlem, CW3

3 Bedroom Bungalow | £290,000

Delightful 3-bed detached bungalow in picturesque Audlem village. Spacious with potential for modernisation. Tranquil ma...

Fairfax Drive, Nantwich, CW5

3 Bedroom Semi-Detached House | £290,000

Audlem Road, Nantwich, CW5

3 Bedroom Semi-Detached House | £290,000

Situated in Nantwich, this well-proportioned three-bedroom semi-detached home offers flexible living space, plenty of na...

Longhill Lane, Hankelow, CW3

2 Bedroom Detached Bungalow | Offers in excess of £300,000

Charming 2 bed bungalow in Hankelow. 2 bedrooms, convenient shower room. Desirable location with easy commuting. Drivewa...

Millstone Lane, Nantwich, CW5

3 Bedroom Semi-Detached House | Guide Price £300,000

Exciting 3-bed semi-detached house. Open living space, allocated parking for 2, and potential for personal touches. Easy...

Wistaston Road, Willaston, CW5

3 Bedroom Semi-Detached House | £300,000

Tucked away in a sought-after residential location, this beautifully presented three-bedroom semi-detached home blends m...

James Du Pavey Estate Agents (Nantwich)

52 Pillory St, Nantwich, Cheshire, CW5 5BG

01270 445678

How much is your home worth?

Use our short form to request a valuation of your property.

Request a Valuation

Mortgage Calculator

Amount Borrowed: £
Total Amount Repayable: £
Total Monthly Payment: £
©2026 The Guild of Property Professionals. All rights reserved. Terms and Conditions | Privacy Policy | Cookie Policy | Complaints Policy | Members Login
The Guild of Property Professionals Trading Address: 121 Park Lane, London W1K 7AG. GPEA Limited. Registered in England & Wales.  Company No: 02819824.  Registered Office Address: 2 St. Stephen's Court, St. Stephen's Road, Bournemouth, Dorset, England, BH2 6LA.  VAT Registration No: 576 8795 61
Book a Property Valuation Update Cookies Preferences