Chalfont Crescent, Weston, CW2

Offers in excess of
£475,000

5 Bedroom Link Detached House for sale in Crewe

1 5 3
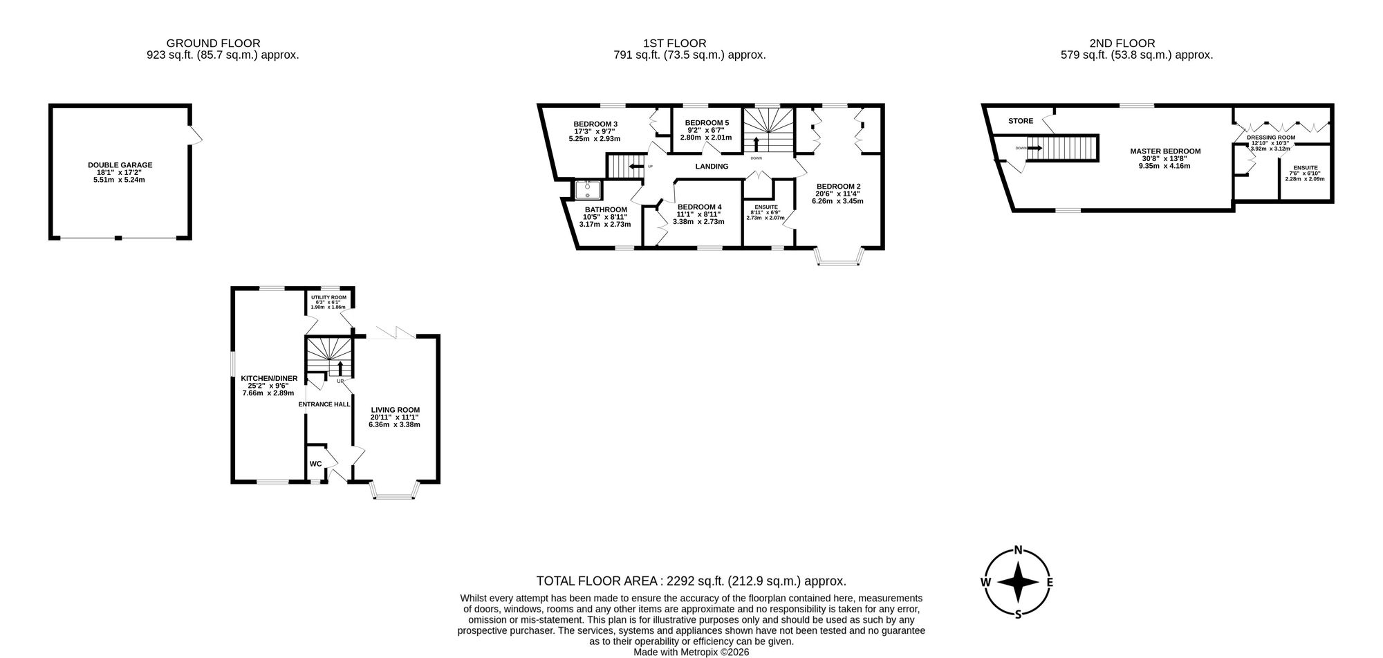
  • Impressive five-bedroom home arranged over three spacious floors, offering flexible and well-balanced accommodation ideal for modern family living.
  • Stunning dual-aspect living room with bay window, bifold doors to the garden, and a feature fireplace creating a bright yet cosy atmosphere.
  • Contemporary kitchen with dining space and breakfast bar, complete with integrated wine fridge, gas hob, dishwasher, and separate utility room.
  • Luxurious top-floor principal suite with dressing room, built-in wardrobes, private ensuite, and additional storage creating a peaceful retreat.
  • Landscaped garden with patio and lawn, plus double garage, gated carport, and driveway providing ample parking and excellent practicality.

This exceptional five-bedroom link-detached home in Weston has been beautifully designed to offer a smart, contemporary living environment, perfectly balancing style, space, and practicality across three generous floors.

The ground floor delivers an impressive open and flowing layout, centred around a stunning dual-aspect living room that extends from the front to the rear of the property. A striking bay window floods the space with natural light, while sleek bifold doors at the rear create a seamless connection to the garden—ideal for modern indoor-outdoor living. A feature fireplace adds a touch of warmth and character, creating a cosy yet refined atmosphere.

The kitchen is equally impressive, combining contemporary design with everyday functionality. It offers a dedicated dining area alongside a stylish breakfast bar, making it a natural hub of the home for both family life and entertaining. Integrated appliances include a wine fridge, gas hob, and dishwasher, with additional space for a fridge/freezer. A separate utility room enhances the practicality of the home, providing space for a washing machine and dryer, as well as excellent built-in storage to keep everything neatly organised. The ground floor is completed by a sleek WC and a cleverly designed storage cupboard tucked beneath the stairs.

Upstairs, the home continues to impress with well-proportioned and thoughtfully arranged accommodation. The entire top floor is dedicated to a luxurious principal suite, creating a private retreat. This level features a spacious master bedroom, a sophisticated dressing room with extensive built-in wardrobes, and a contemporary ensuite bathroom complete with a bath. A large additional storage cupboard further enhances this floor’s practicality.

The first floor hosts four further bedrooms. Bedroom two is a generous and well-appointed double, benefiting from multiple built-in wardrobes and its own stylish ensuite with both a walk-in shower and a bath. Bedrooms three and four are also comfortable doubles, while bedroom five offers flexibility as a smaller bedroom or an ideal home office. The main family bathroom is finished to a high standard, featuring both a walk-in shower and a separate bath.

Externally, the property continues to excel as a superb home for modern living. The garden has been designed as a sociable and low-maintenance space, with a patio area directly accessible from the bifold doors—perfect for entertaining—as well as a lawned area for relaxation or family use.

Further benefits include a detached double garage, a gated carport providing additional security, and driveway parking to the front, ensuring ample space for multiple vehicles.

Location

Wychwood Park is an exclusive development set around a PGA European standard golf course. Surrounded by beautiful Cheshire countryside yet close to the historic market town of Nantwich with its quaint historic buildings, boutique shops and quality supermarkets. The railway station at Crewe places London Euston under 1hr 30mins away and the M6 Junction 16 for commuters to the region's commercial centres is only 4.5 miles away. In addition, the lovely nearby villages of Weston and Betley provide local amenities.

Residents of Wychwood Park benefit from 24 hour security and vehicle control and are eligible for social membership of the golf course club house.

Wychwood Park is meticulously maintained and provides a beautiful setting for any home with well maintained parkland and retained areas of natural habitats.

Important Information

  • This is a Freehold property.
  • This Council Tax band for this property is: G
  • EPC Rating is C

Property Ref: 0566fe05-1b14-46f1-9546-8e3a6b1b9c4c

Share:

Similar Properties

Kingbur Place, Audlem, CW3

3 Bedroom Semi-Detached House | £475,000

Beautiful 3-bed semi-detached in charming Audlem village. High-spec kitchen, spacious living areas, study, utility room....

Potter Close, Willaston, CW5

4 Bedroom Detached House | £465,500

Modern 4-bed detached home in quiet Willaston estate. Spacious layout, open-plan kitchen, converted garage, en-suite pri...

Audlem Road, Woore, CW3

3 Bedroom Detached House | Offers in region of £455,000

Charming 3-bed detached house in Woore village. Open plan living, modern kitchen, landscaped garden. Off-road parking, i...

Brecon Way, Crewe, CW2

3 Bedroom Detached House | £485,000

This immaculately presented detached bungalow in Wistaston offers spacious and flexible accommodation arranged across a...

Audlem Road, Woore, CW3

4 Bedroom Detached House | £499,950

Nestled in the charming village of Woore, this beautifully presented four-bedroom detached home—offered with no onward c...

Nantwich Road, Audley, ST7

4 Bedroom Detached House | £500,000

A beautifully presented detached family home situated in the village of Audley, offering spacious and versatile accommod...

James Du Pavey Estate Agents (Nantwich)

52 Pillory St, Nantwich, Cheshire, CW5 5BG

01270 445678

How much is your home worth?

Use our short form to request a valuation of your property.

Request a Valuation

Mortgage Calculator

Amount Borrowed: £
Total Amount Repayable: £
Total Monthly Payment: £
©2026 The Guild of Property Professionals. All rights reserved. Terms and Conditions | Privacy Policy | Cookie Policy | Complaints Policy | Members Login
The Guild of Property Professionals Trading Address: 121 Park Lane, London W1K 7AG. GPEA Limited. Registered in England & Wales.  Company No: 02819824.  Registered Office Address: 2 St. Stephen's Court, St. Stephen's Road, Bournemouth, Dorset, England, BH2 6LA.  VAT Registration No: 576 8795 61
Book a Property Valuation Update Cookies Preferences