Beech Avenue, Woore, CW3

£210,000

3 Bedroom Semi-Detached House for sale in Crewe

1 3 2
  • Set within a peaceful cul-de-sac on a modern development in the sought after village of Woore
  • A fantastic opportunity for first time buyers, families or those looking to downsize without compromising on practicality, convenience and living space
  • Immaculately presented and finished to an exceptional standard, affording contemporary fittings and applications throughout
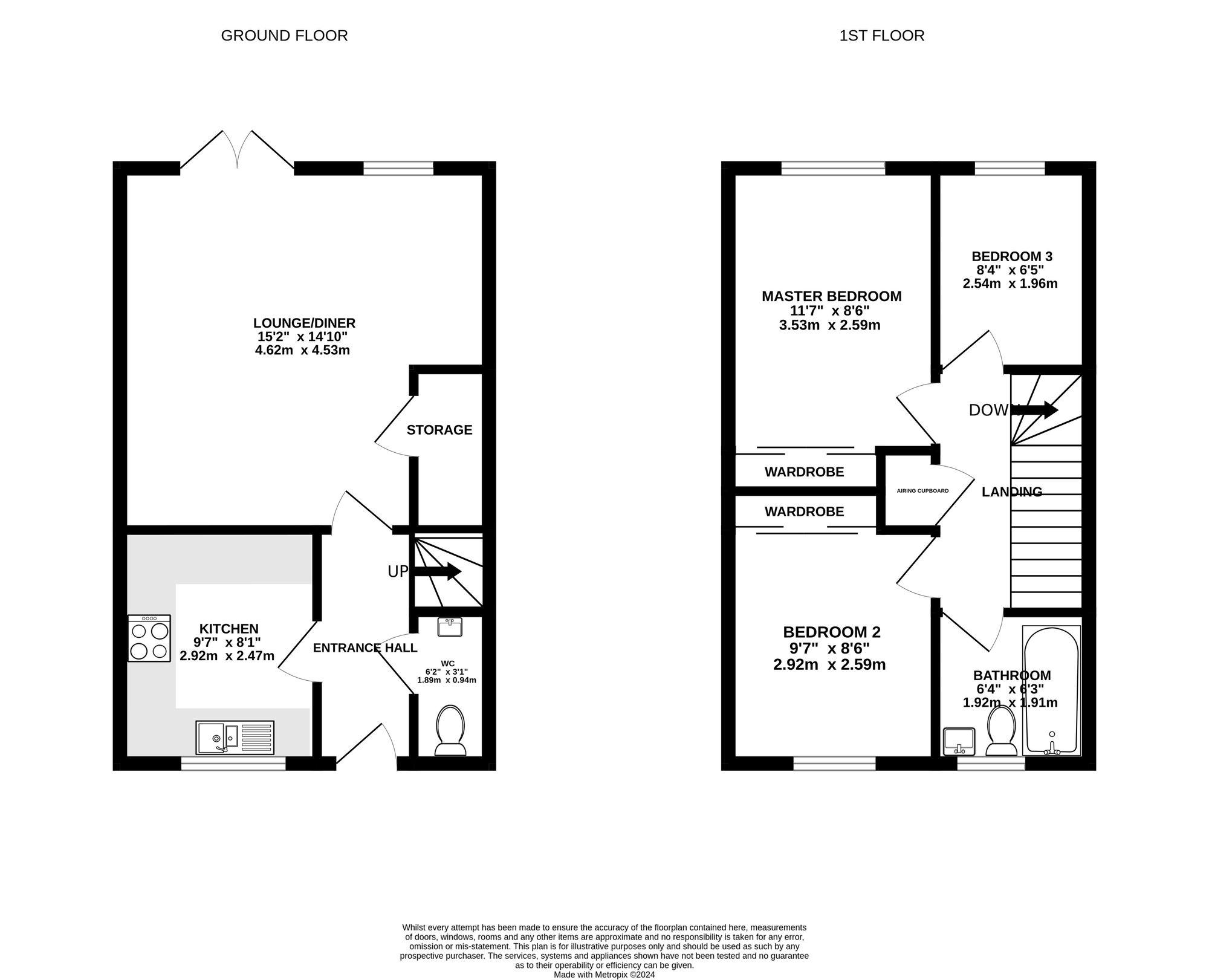
  • Generous lounge/diner with French doors opening out to the rear garden, creating a perfect indoor and outdoor space for entertaining and relaxation
  • Brilliant upper floor accommodation, boasting two double bedrooms with built in wardrobes, a further single bedroom and modern fitted family bathroom

Nestled within a tranquil cul-de-sac on a modern development in the sought after village of Woore, this three bedroom semi-detached house boasts stylish interior, and modern fixtures with tasteful finishes in every room, offering a perfect blend of comfort and convenience. This fabulous home would suit a wide variety of occupier needs, whether you are a first time buyer, growing family or looking to downsize without having to compromise on practicality, convenience and living space. Upon entering, you are greeted by a welcoming entrance hall leading to a well-appointed kitchen featuring a plethora of wall and base units, a stainless steel one and a half sink unit inset with drainer, space for a washer/dryer and fridge/freezer, plus integrated appliances including a single oven and dishwasher. The spacious lounge/diner creates an inviting ambience for both family gatherings and entertaining guests, with French patio doors opening out to the rear garden. A downstairs guest WC and a useful under-stairs storage cupboard cater to every-day needs. Ascend to the first floor via the light and airy landing where you will find three well-proportioned bedrooms, including two doubles boasting built-in wardrobes, and a single bedroom. The modern main family bathroom is elegantly designed, with a panel bath with shower over, wash hand basin, and WC. Externally, the property boasts an attractive frontage, whilst to the rear, there is a fully enclosed and low-maintenance garden, thoughtfully landscaped with artificial grass, providing a serene retreat. Allocated parking to the rear ensures convenience for residents and visitors alike. Don't miss the opportunity to make this contemporary and inviting house your next home. Call our Nantwich office to arrange a viewing!

Location

Woore is a quaint village located in the north-east of Shropshire and situated on the boundary with the counties of Cheshire and Staffordshire. The village offers a good range of facilities including:- general store (open 7 days a week) with post office that provides banking facilities; 'good' OFSTED rated primary school; Artisan bakery; two public houses; village hall with activities including flower, bridge, and film clubs; Anglican and Methodist churches; tennis, cricket, and lawn bowling clubs; and garden centre. For a more comprehensive range of facilities the market towns of Nantwich, Market Drayton, and Newcastle-Under-Lyme are all within 9 miles distance of Woore. The village is also conveniently situated for those requiring good transportation links. Crewe and Stoke railway stations are within 10 and 12 miles respectively, between them providing direct links to major cities including London, Manchester, Liverpool, Birmingham, and Glasgow. Junctions 15 and 16 of the M6 are within 10 and 12 miles respectively allowing convenient road access to the north and south, whilst airports within a reasonable travel time include Manchester (40 miles approx), Liverpool (45 miles approx), East Midlands (55 miles approx), and Birmingham (60 miles approx).

Energy Efficiency Current: 64.0
Energy Efficiency Potential: 78.0

Important Information

  • This is a Freehold property.
  • This Council Tax band for this property is: C

Property Ref: 3c00641d-d323-462e-8460-4731a00d6ec9

Share:

Similar Properties

Blackthorn Close, Edleston, CW5

2 Bedroom Terraced House | Offers in excess of £210,000

2-bed terrace. Spacious light filled interior with modern design. Peaceful garden. Located in historic Nantwich, Cheshir...

Lambourn Drive, Leighton, CW1

3 Bedroom Detached House | £210,000

This three-bedroom detached house in Crewe offers an excellent opportunity for buyers looking to put their own stamp on...

Manor Road, Nantwich, CW5

3 Bedroom Semi-Detached House | £200,000

This three-bedroom semi-detached home in Nantwich offers an excellent opportunity for anyone looking for a project, with...

Farmleigh Drive, Crewe, CW1

3 Bedroom Detached House | Offers in excess of £220,000

Attractive 3-bed detached home in Crewe with a private garden, driveway, garage. Ideal for families or investors. Close...

Kipling Way, Crewe, CW1

2 Bedroom Detached Bungalow | £220,000

Charming 2-bed detached bungalow in quiet cul-de-sac. Spacious living room, 2 double bedrooms, rear garden, and garage....

The Coppice, Nantwich, CW5

3 Bedroom Semi-Detached House | Guide Price £220,000

Charming 3-bed semi-detached in Nantwich near Brine Leas Academy. Spacious lounge, open plan kitchen, private garden. No...

James Du Pavey Estate Agents (Nantwich)

52 Pillory St, Nantwich, Cheshire, CW5 5BG

01270 445678

How much is your home worth?

Use our short form to request a valuation of your property.

Request a Valuation

Mortgage Calculator

Amount Borrowed: £
Total Amount Repayable: £
Total Monthly Payment: £
©2026 The Guild of Property Professionals. All rights reserved. Terms and Conditions | Privacy Policy | Cookie Policy | Complaints Policy | Members Login
The Guild of Property Professionals Trading Address: 121 Park Lane, London W1K 7AG. GPEA Limited. Registered in England & Wales.  Company No: 02819824.  Registered Office Address: 2 St. Stephen's Court, St. Stephen's Road, Bournemouth, Dorset, England, BH2 6LA.  VAT Registration No: 576 8795 61
Book a Property Valuation Update Cookies Preferences