Remer Street, Crewe, CW1

£169,950
SSTC
This property listing is now SSTC

2 Bedroom Semi-Detached House for sale in Crewe

3 2 1
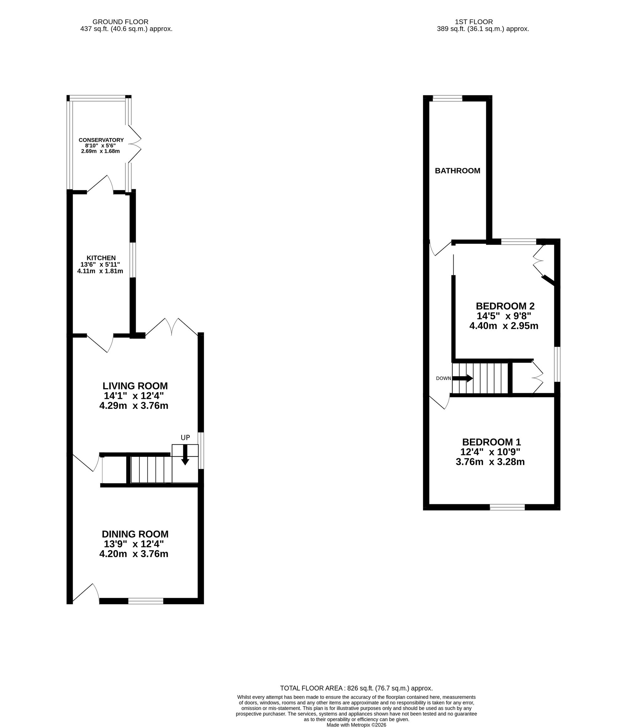
  • Spacious dining room ideal for entertaining, with additional under-stairs storage.
  • Cosy living room with gas fire and French doors opening onto the patio.
  • Bright conservatory providing extra living space with seamless garden access.
  • Two double bedrooms, including one with built-in wardrobe and dual-aspect windows.
  • Expansive rear garden with lawn and sheds, plus driveway parking for two to three cars.

This well-proportioned two-bedroom semi-detached house is located in Crewe and offers bright, versatile living spaces ideal for a modern family or first time buyers.

The dining room is a generous area, perfect for hosting friends and family, while also providing a clearly defined space for dining. Tucked neatly under the stairs is a practical storage area for coats and shoes, helping to keep the home organised.

The living room is a cosy and welcoming space, featuring an gas fire as a focal point. French doors open directly onto the patio area, creating a seamless connection to the garden and allowing plenty of natural light to fill the room.

The kitchen offers ample worktop and cupboard space and is well equipped with an integrated oven. There is also space for a fridge/freezer and a washing machine, making it both practical and functional. The conservatory provides an additional bright and airy living area, with French doors opening out into the garden, further enhancing the flow between indoor and outdoor spaces.

Upstairs, bedroom one is a spacious double with plenty of room for freestanding furniture. Bedroom two is another comfortable double, benefiting from a built-in wardrobe, a boiler cupboard, and dual-aspect windows that fill the room with light.

The main bathroom is stylishly finished and features both a bath and a separate shower, offering a sleek and contemporary feel.

Outside, the expansive rear garden includes a lawned area and two sheds, providing excellent space for outdoor enjoyment and storage. To the front, a driveway offers parking for two to three cars.

Overall, this home combines generous accommodation, bright living spaces, and excellent outdoor features in a convenient Crewe location.

Location:

Nestled in the heart of the railway town of Crewe, this property benefits from a prime location that balances peaceful suburban living with excellent access to local amenities. Crewe itself offers a wide range of shopping, educational, and recreational facilities, ensuring all your everyday needs are well catered for. For commuters, the property enjoys outstanding transport links, being close to the A500 and Junction 16 of the M6 motorway, facilitating quick and easy travel to neighbouring towns and cities. Additionally, Crewe’s mainline railway station provides direct access to major cities across the country, making it an ideal base for those who travel regularly for work or leisure. The historic market town of Nantwich is also just a short drive away, offering charming boutiques, cafes, and a rich sense of local heritage.

Important Information

  • This is a Freehold property.
  • This Council Tax band for this property is: B
  • EPC Rating is E

Property Ref: e2c3f5f8-e110-470b-b21e-3415a3f99496

Share:

Similar Properties

Alton Street, Crewe, CW2

3 Bedroom Terraced House | Offers in region of £160,000

Chain free three-bedroom terraced home in Crewe. Spacious, flexible layout, kitchen, utility, garden, scope to update. I...

Sheppard Close, Crewe, CW1

3 Bedroom Semi-Detached House | £150,000

3-Bed Semi-Detached Home in Crewe, ideal for first-time buyers. Cosy living room, separate dining, 3 bedrooms, modern sh...

Barker Street, Nantwich, CW5

2 Bedroom End of Terrace House | £150,000

Freshly decorated Edwardian end-terrace in Nantwich centre. Cosy lounge, fitted kitchen, master and guest bedrooms, cour...

Kestrel Drive, Crewe, CW1

2 Bedroom Semi-Detached House | £170,000

Two-bedroom home with spacious rooms, south-facing garden, tandem parking, and scope for modernisation. Great location n...

High Street, Alsagers Bank, ST7

2 Bedroom Terraced House | Offers in excess of £185,000

Charming 2-bed terraced home in Alsagers Bank with original features, countryside views & parking. Well-presented with s...

Eastern Road, Willaston, CW5

2 Bedroom Terraced House | £185,000

This charming two-bedroom terraced home in the popular village of Willaston offers well-proportioned living space with a...

James Du Pavey Estate Agents (Nantwich)

52 Pillory St, Nantwich, Cheshire, CW5 5BG

01270 445678

How much is your home worth?

Use our short form to request a valuation of your property.

Request a Valuation

Mortgage Calculator

Amount Borrowed: £
Total Amount Repayable: £
Total Monthly Payment: £
©2026 The Guild of Property Professionals. All rights reserved. Terms and Conditions | Privacy Policy | Cookie Policy | Complaints Policy | Members Login
The Guild of Property Professionals Trading Address: 121 Park Lane, London W1K 7AG. GPEA Limited. Registered in England & Wales.  Company No: 02819824.  Registered Office Address: 2 St. Stephen's Court, St. Stephen's Road, Bournemouth, Dorset, England, BH2 6LA.  VAT Registration No: 576 8795 61
Book a Property Valuation Update Cookies Preferences