Rochester Crescent, Crewe

Offers Over
£160,000
SSTC
This property listing is now SSTC

2 Bedroom Semi-Detached House for sale in Crewe

2
  • Desirable location
  • 2 Double bedrooms
  • Bathrooom
  • Conservatory
  • Enclosed rear garden
  • Driveway
  • Detached garage
  • Freehold
  • No Onward Chain

UNEXPECTEDLY BACK ON THE MARKET AND OFFERED FOR SAEL WITH NO ONWARD CHAIN this two bedroomed semi detached home in need of renovation located in a hugely popular residential location. In brief the property comprises 2 double bedrooms, family bathroom, large sitting room, fitted kitchen, conservatory, detached garage with tandem driveway for several vehicles, Enclosed and private rear garden which is not overlooked.

Council Tax Band: B (Cheshire East)
Tenure: Freehold
Parking options: Driveway, Garage
Garden details: Enclosed Garden, Front Garden, Rear Garden
Electricity supply: Mains
Heating: Gas Mains
Water supply: Mains
Sewerage: Mains
Broadband: FTTC

Access
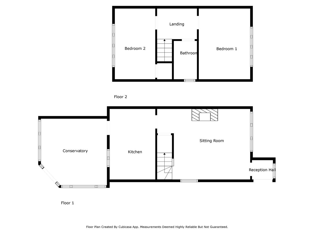
Approached over a paved driveway providing ample parking for several vehicles and leading not only to the detached single garage but also to the uPvc part glazed front door which in turn leads into:

Reception Hall
Reception hall with uPvc double glazed window to front elevation. Modesty glazed wooden door into:

Sitting Room w: 5.66m x l: 4.3m (w: 18' 7" x l: 14' 1")
Large sitting room with stairs rising to first floor landing, radiators and uPvc double glazed windows to front and side elevations. Understairs storage cupboard and feature brick effect wall with gas fire.

Kitchen w: 2.78m x l: 4.3m (w: 9' 1" x l: 14' 1")
Fitted with a range of wall, base and drawer units with work surface over incorporating one and a half bowl stainless steel sink and drainer with mixer tap, complimentary tiling, integrated electric oven with 4 ring gas burner hob and extractor over, space for fridge / freezer, space for washing machine. Tiled flooring and glazed wooden door through to:

Conservatory w: 4.01m x l: 4.06m (w: 13' 2" x l: 13' 4")
Good sized dwarf wall conservatory with uPvc double glazed windows and French doors which lead out to the rear garden. Radiator.

Landing
Stairs rising to first floor landing with loft access and doors off to both bedrooms and family bathroom.

Bathroom
Fitted with a 3 piece suite comprising panelled bath with electric shower over, pedestal wash hand basin, low level W.C., radiator, part tiled walls and uPvc double glazed frosted window to side elevation.

Bedroom 1 w: 3.12m x l: 4.3m (w: 10' 3" x l: 14' 1")
Generous double room with uPvc double glazed window to front elevation. Radiator.

Bedroom 2 w: 2.46m x l: 4.3m (w: 8' 1" x l: 14' 1")
Another good sized double room with built in cupboard, uPvc double glazed window to rear elevation. Radiator.

Externally
Sitting on a good sized plot the front garden is laid to lawn with gravel borders. A paved driveway leads to the garage and also to a wooden gate giving access to the rear garden. The rear garden has a paved patio area and picket fence beyond which lays a lawned area with fenced boundaries. Garden shed.

Energy Performance
The current rating is 66 with a potential of 82.

About Crewe
When most people think of Crewe, they think of railways. During the 19th century Crewe was one of the world's greatest railway workshops and was a hotbed of craft and invention, building elegant locomotives that brought wealth and prestige to the town.

Crewe's got a lot more to offer than just trains. There's a thriving live music scene, as well as a range of shops, bars, pubs and restaurants. Take a stroll in Queen's Park, a traditional Victorian park that is being restored to her former glory or take in a show at the award winning Crewe Lyceum.

Crewe is also home to the famous Crewe Alexandra Football Club - aptly nicknamed the Railwaymen!

Viewings
Viewings are strictly by appointment only. Please call or email the office to arrange. Thank you.

Looking to sell?
If you are thinking of selling please call or email the office to arrange a free Market Appraisal. Thank you.

Important Information

  • This is a Freehold property.

Property Ref: RS0652

Share:

Similar Properties

Flat , Oak House, Brook Court, Sandbach

2 Bedroom Apartment | £160,000

We are pleased to offer for sale this first floor 2 bedroomed apartment located in the heart of Sandbach providing easy...

Hawthorn Lane, Crewe

2 Bedroom Semi-Detached House | Offers in region of £160,000

A mature two bedroom semi detached home situated in a popular residential location with driveway and gardens.

Buxton Avenue, Crewe

3 Bedroom Semi-Detached House | Offers Over £160,000

We are delighted to offer for sale this spacious, three double bedroomed, traditional, semi detached family home close t...

Mablins Lane, Crewe

3 Bedroom Semi-Detached House | Offers in region of £170,000

A mature semi detached family home, situated in a popular residential location and offered for sale with no upward chain...

Green Street, Sandbach

2 Bedroom Terraced House | Offers Over £170,000

Fabulous opportunity for first time buyers to purchase a mid terraced property in the town centre.

Leawood Road, Stoke-on-Trent

3 Bedroom Semi-Detached House | Offers in region of £170,000

Situated in a popular residential location and offered for sale with no upward chain, this mature three bedroom semi det...

Wheatcroft & Lloyd (Sandbach)

Sandbach, Cheshire, CW11 1AL

01270 382283

How much is your home worth?

Use our short form to request a valuation of your property.

Request a Valuation

Mortgage Calculator

Amount Borrowed: £
Total Amount Repayable: £
Total Monthly Payment: £
©2026 The Guild of Property Professionals. All rights reserved. Terms and Conditions | Privacy Policy | Cookie Policy | Complaints Policy | Members Login
The Guild of Property Professionals Trading Address: 121 Park Lane, London W1K 7AG. GPEA Limited. Registered in England & Wales.  Company No: 02819824.  Registered Office Address: 2 St. Stephen's Court, St. Stephen's Road, Bournemouth, Dorset, England, BH2 6LA.  VAT Registration No: 576 8795 61
Book a Property Valuation Update Cookies Preferences