Cromer

Guide Price
£200,000

2 Bedroom Detached House for sale in Cromer

2 2
  • No onward chain
  • Generous sitting/dining room
  • Fitted kitchen
  • Ground floor bedroom/study
  • Shower room
  • Spacious principal bedroom
  • First floor bathroom
  • Communal gardens and resident's parking
  • Communal lounge, kitchen, laundry room and guest suites
  • 24 hour care line

Location Cromer is a vibrant predominantly Victorian town on the North Norfolk coast, famous for its wide open beaches, Cromer crabs and traditional pier complete theatre providing the last remaining Seaside Special variety show in the country. Rich in its fishing heritage, Cromer also has a lighthouse and proud tradition of RNLI service. There is an excellent mix of small independent local shops and a wide variety of cafes, restaurants, pubs and holiday accommodation together with train and bus links to the Broads and Norwich some 23 miles distant. There is a hospital, doctors and dental surgery, library and The Royal Cromer Golf Club.

Locally there are National Trust properties at Blickling Hall, Felbrigg Hall and Sheringham Park as well as two heritage railways and countless natures reserves on the Norfolk Broads, heaths, coastal marshes and beaches. There are local Parkruns at Blickling Hall and Sheringham Park, fantastic for getting fit, volunteering roles, mental well being,or just getting to know the local community, particularly ideal if you have just moved from another area.

The property is situated within a short stroll of Cromer town centre, bus stop, North Lodge Park and beach. 

Description This beautifully presented detached house, is part of a development of retirement properties offering independent living with the support of a 24 hour care line and development manager. There are community events within the communal lounge with kitchen in the main building. In addition, there is communal laundry room and guest suites available for hire for visiting relatives and friends.

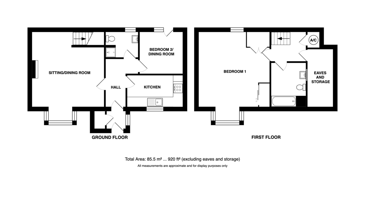
The property is situated behind the main building, with its own access into a front porch leading into a reception hall, off which are a generous sitting/dining room, fitted kitchen, both enjoying a South-Westerly aspect, a shower room and a ground floor bedroom/study with access to a private courtyard garden. The first floor provides a spacious double bedroom with built in wardrobes, a bathroom and a generous storage space in the eaves.

Well-tended communal gardens which surround the main building and front garden provide an attractive outlook. There is also a communal bin store and secure parking area for electric scooters.

The property is offered for sale with no onward chain.

The accommodation comprises;
Double glazed timber front door to; 

Porch Built-in storage cupboard with shelves, side aspect single glazed window, uPVC double glazed door with obscure glass to; 

Reception Hall Door to; 

Sitting/Dining Room 15' 9" x 15' 2" (4.8m x 4.62m) plus bay A lovely light and spacious room with uPVC double glazed bay window to front aspect, feature fireplace with marble hearth and moulded surround, rear aspect uPVC double glazed window, three thermostatically controlled freestanding electric heaters. 

Kitchen 11' 8" x 6' 7" (3.56m x 2.01m) Fitted with a range of modern base units with painted wood fronted doors, working surfaces over, matching wall units, eye level electric oven, electric hob, extractor over, space for an electric fridge and freezer, space and plumbing for washing machine, single bowl/single drainer sink with taps, tall Larder unit, front aspect uPVC double glazed window, part tiled walls. 

Bedroom 2/Study 9' 2" x 8' 9" (2.79m x 2.67m) Rear aspect uPVC double glazed window and part glazed door to rear garden, freestanding electric thermostatically controlled heater.  

Shower Room 10" x 5' 4" (0.25m x 1.63m) Fitted with a pedestal basin and taps, low level WC, tiled shower cubicle with pivot door and mixer shower over, Dimplex wall mounted fan heater, light, shaver point, and mirror, rear aspect uPVC double glazed window with obscured glass, heated towel rail. 

First Floor  

Galleried Landing High level side aspect uPVC double glazed window at high level, built in airing cupboard housing housing a hot water cylinder and immersion heater, and access to large eaves store 11'11" x 5' 4". 

Principal Bedroom 15' 7" plus bay, reducing to 12'6" x 14' 11" (4.75m x 4.55m) uPVC double glazed bay window to front aspect offering views over landscaped communal gardens, built in double wardrobe with sliding mirrored doors, further built in storage cupboard, rear aspect uPVC double glazed window, hatch to loft, telephone point and TV aerial point. 

Bathroom 9' 2" x 7' 0" (2.79m x 2.13m) Fitted with a cream three-piece suite comprising panel bath with taps, low level WC, pedestal basin with taps, mirror light and shaver point, side aspect high level uPVC double glazed window, Dimplex fan heater, part tiled walls, heated towel rail.

 

Outside Ashdown Court is approached via a tarmac drive leading to the residential car park to the front of the main building. The driveway then extends around the side and rear of the property, where you will find beautifully landscaped gardens bisected by a brick weave driveway and concrete path leading to the front door. The gardens are mainly laid to lawn interspersed with mature shrubs, trees, herbs and flowers for year-round colour and interest. A further path leads to the bin store, secure store for electric scooters and the rear door into the main building.

Immediately outside the kitchen window, there is a small paved seating area and a charging point for an electric scooter to the side of the porch. To the rear of the property is a small private courtyard accessed via a side gate or via the Study/bedroom 2. It is mainly laid to shingle with a paved seating area, storage shed and all enclosed by fencing. It is planted with shrubs and climbers and provides a good degree of privacy. 

Services Mains electricity, water and drainage. 

Local Authority/Council Tax North Norfolk District Council, Holt Road, Cromer NR27 9EN.
Tel 01263 513811
Tax Band: C 

Tenure We understand that the property is held on the balance of a 99 year lease from 1st April 1989.
Annual Ground Rent: £245.66
Annual Service Charge: £3809.00 

Leasehold Properties Long residential leases often contain clauses which regulate the activities within individual properties for the benefit of all owners. Such regulated activities often (but not always) include keeping pets, subletting and running a business from home. If you have any specific questions about the lease of this property please ask a member of staff.  

EPC Rating The Energy Rating for this property is D. A full Energy Performance Certificate available on request. 

Important Agent Note Intending purchasers will be asked to provide original Identity Documentation and Proof of Address before solicitors are instructed. 

We Are Here To Help If your interest in this property is dependent on anything about the property or its surroundings which are not referred to in these sales particulars, please contact us before viewing and we will do our best to answer any questions you may have. 

Property Ref: 57482_101301038890

Share:

Similar Properties

Sheringham

2 Bedroom Flat | Guide Price £200,000

Situated in one of the most desirable streets in Sheringham, this beautifully appointed, first floor apartment offers st...

Melton Constable, Nr Holt

2 Bedroom Semi-Detached House | £200,000

A particularly well presented semi-detached house tucked away at the end of a small private close in this popular North...

Norwich, NR1

2 Bedroom Terraced House | Guide Price £190,000

An attractive Victorian mid-terrace house with open plan dining room/kitchen, benefitting from gas central heating and s...

Sheringham

3 Bedroom Apartment | Guide Price £210,000

Unexpectedly reavailable due to a break in the sales chain below - Over 104 square metres - A spacious 1st/2nd floor Dup...

Bodham, Holt

2 Bedroom Terraced House | Guide Price £220,000

A modern end terrace with elevated countryside views good size garden and generous off-road parking, situated in a popul...

Cliff Avenue, Cromer

2 Bedroom Apartment | £220,000

Grange Court is a stylish and highly sought-after development, beautifully maintained and ideally positioned just half a...

Watsons (Sheringham)

Sheringham, Norfolk, NR26 8RG

01263 823201

How much is your home worth?

Use our short form to request a valuation of your property.

Request a Valuation

Mortgage Calculator

Amount Borrowed: £
Total Amount Repayable: £
Total Monthly Payment: £
©2025 The Guild of Property Professionals. All rights reserved. Terms and Conditions | Privacy Policy | Cookie Policy | Complaints Policy | Members Login
The Guild of Property Professionals Trading Address: 121 Park Lane, London W1K 7AG. GPEA Limited. Registered in England & Wales.  Company No: 02819824.  Registered Office Address: 2 St. Stephen's Court, St. Stephen's Road, Bournemouth, Dorset, England, BH2 6LA.  VAT Registration No: 576 8795 61
Book a Property Valuation Update Cookies Preferences