Whitestone Way, Peebles Court, CR0

Offers in excess of
£270,000

2 Bedroom Not Specified for sale in Croydon

1 2 2
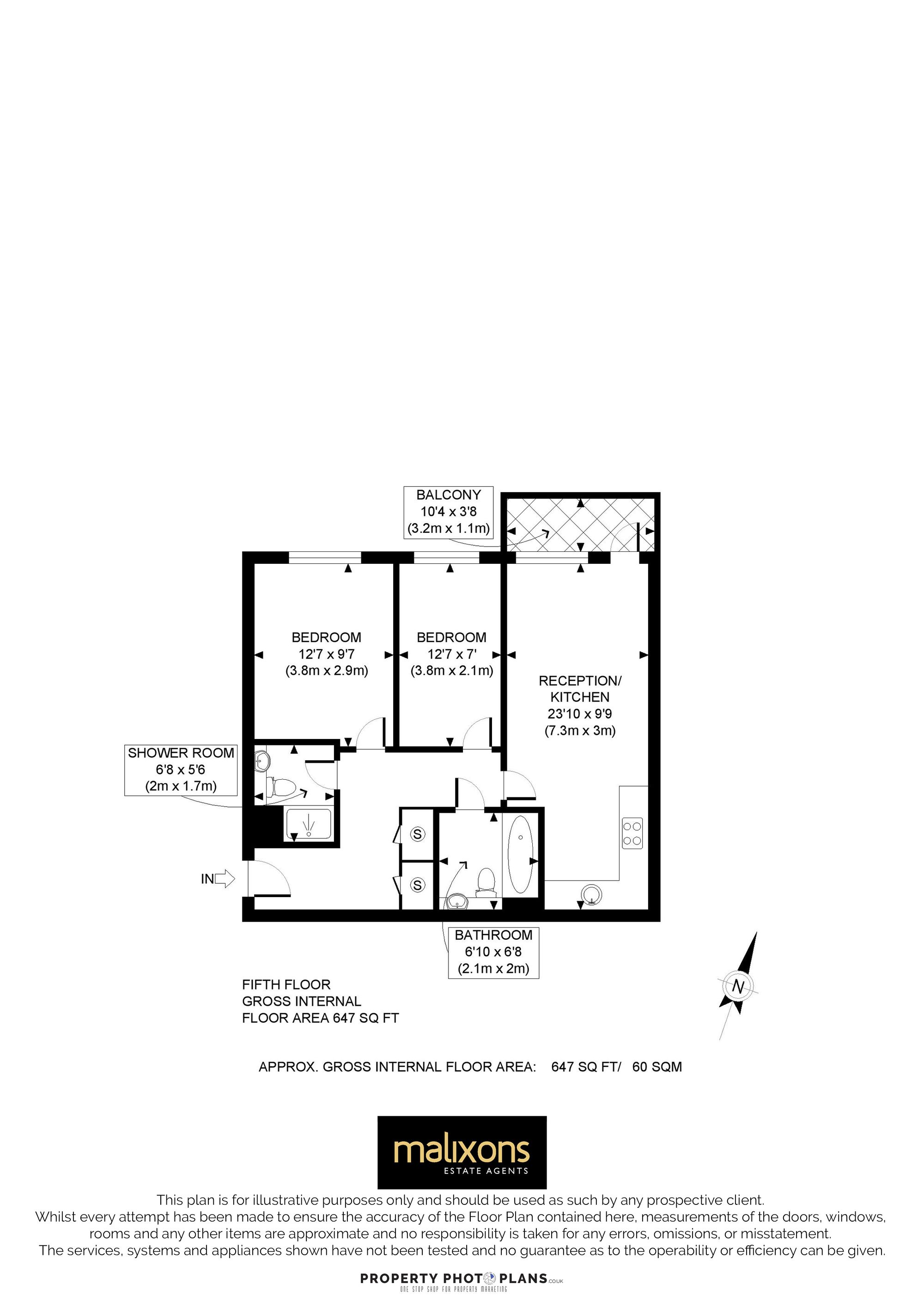
  • Balcony
  • Communal grounds
  • Concierge
  • Long lease
  • Double glazed
  • Fifth floor

Situated in a modern purpose-built development, this well-presented fifth-floor apartment offers a spacious reception room seamlessly integrated with a stylish fitted kitchen. The property comprises two bedrooms, one of which benefits from an en-suite shower room, a modern bathroom, and a private balcony. Residents can enjoy well-maintained communal grounds, lift access, and concierge service. Conveniently located just 0.5 miles from Waddon Mainline Station and close to Wandle Park and the river.

Energy Efficiency Current: 81.0
Energy Efficiency Potential: 81.0

Important Information

  • This is a Leasehold property.
  • The annual cost for the ground rent on this property is £369
  • The annual service charges for this property is £2000
  • This Council Tax band for this property is: C

Property Ref: 9e4a211e-9c02-41a0-a24a-d09ac23058d6

Share:

Similar Properties

Furlong Avenue, Byron Court, CR4

1 Bedroom Flat | Offers in excess of £260,000

A Fantastic 1 bedroom flat located just 0.7 miles away from Colliers Wood underground station(Northern line)

Seaton Road, Carroll Court Seaton Road, CR4

1 Bedroom Flat | Guide Price £250,000

GUIDE £250,000 - £280,000 An exceptional one-bedroom second-floor flat in excellent condition, offering over 530 sq. ft....

Trinity Road, London, SW17

1 Bedroom Not Specified | Guide Price £250,000

GUIDE £250,000-£280,000 A distinctive and characterful one-bedroom lower ground floor maisonette, conveniently located o...

Maple Mews, London, SW16

1 Bedroom Flat | Guide Price £280,000

Guide £280,000 - £300,000 A superb one bedroom flat located just moments away from Streatham station

Holdernesse Road, London, SW17

1 Bedroom Flat | Guide Price £280,000

GUIDE PRICE £280,000 - £320,000 A Fantastic CHAIN FREE 1 bedroom purpose built flat located just 0.1 Miles from Tooting...

Hythe Road, Thornton Heath, CR7

2 Bedroom Maisonette | Offers in excess of £300,000

A beautifully presented two-bedroom maisonette, offered CHAIN-FREE and conveniently located just 0.6 miles from Thornton...

Malixons (Tooting)

Tooting, London, SW17 7AA

020 3196 4789

How much is your home worth?

Use our short form to request a valuation of your property.

Request a Valuation

Mortgage Calculator

Amount Borrowed: £
Total Amount Repayable: £
Total Monthly Payment: £
©2026 The Guild of Property Professionals. All rights reserved. Terms and Conditions | Privacy Policy | Cookie Policy | Complaints Policy | Members Login
The Guild of Property Professionals Trading Address: 121 Park Lane, London W1K 7AG. GPEA Limited. Registered in England & Wales.  Company No: 02819824.  Registered Office Address: 2 St. Stephen's Court, St. Stephen's Road, Bournemouth, Dorset, England, BH2 6LA.  VAT Registration No: 576 8795 61
Book a Property Valuation Update Cookies Preferences