10 Richdale Drive

Offers Over
£395,000
SSTC
This property listing is now SSTC

3 Bedroom Semi-Detached House for sale in Cultra

3 3 1

Situated at the end of a quiet cul-de-sac in one of Cultra's most desirable residential settings, 10 Richdale Drive presents an outstanding opportunity to secure a modern, low maintenance home in an exceptional coastal location.

The location is a standout feature of this property. Situated within comfortable walking distance are Seapark Recreational Grounds and the scenic North Down Coastal Path, providing beautiful shoreline walks and easy access to outdoor activities. The excellent range of shops, cafés and everyday amenities in Holywood town centre are also within easy reach, while Marino Train Halt is just a short distance away, offering superb transport links. The combination of coastal surroundings and outstanding convenience ensures this remains a consistently sought-after address.

Internally, the property is presented and has been fully renovated in a modern style, allowing a purchaser to move straight in with minimal effort. The open plan kitchen, living and dining area forms the heart of the home, ideal for everyday living and entertaining. A wood burning stove creates a warm focal point within the living space, while double doors from the kitchen open directly onto the rear garden, seamlessly connecting indoor and outdoor living during the warmer months. A garden room provides additional reception space, and the inclusion of a home office, downstairs WC and utility area ensures excellent practicality.

Upstairs, three well-proportioned bedrooms offer comfortable and flexible accommodation. Externally, the rear gardens are laid in lawns for ease of maintenance, and there is ample driveway parking to the front.

Combining a peaceful cul-de-sac setting with a turnkey interior and an enviable coastal location, 10 Richdale Drive represents a superb opportunity for buyers seeking a stylish, low maintenance home in prime North Down.

.Attractive red brick semi-detached home situated at the end of a quiet cul-de-sac in a sought after location
.Modern, low maintenance property offering turnkey accommodation throughout
.Bright and spacious open plan kitchen, living and dining area forming the heart of the home
.Feature wood burning stove creating a warm and inviting focal point in the living space
.Double doors from the kitchen leading directly to the rear garden, ideal for indoor-outdoor living
.Additional garden room providing flexible reception space with views over the garden
.Dedicated home office space, perfect for remote working or study
.Practical downstairs WC and separate utility area for everyday convenience
.Three well-proportioned bedrooms on the first floor
.Family bathroom serving the bedroom accommodation
.Rear gardens laid in lawn, offering a private and manageable outdoor space
.Ample driveway parking to the front of the property
.Planning permission previously passed for double storey extension (ref: LA06/2017/0432/F)
.Walking distance to Marino Train Halt providing excellent transport links
.Close to Seapark Recreational Grounds, North Down Coastal Path and Holywood town centre with its range of amenities and lifestyle attractions

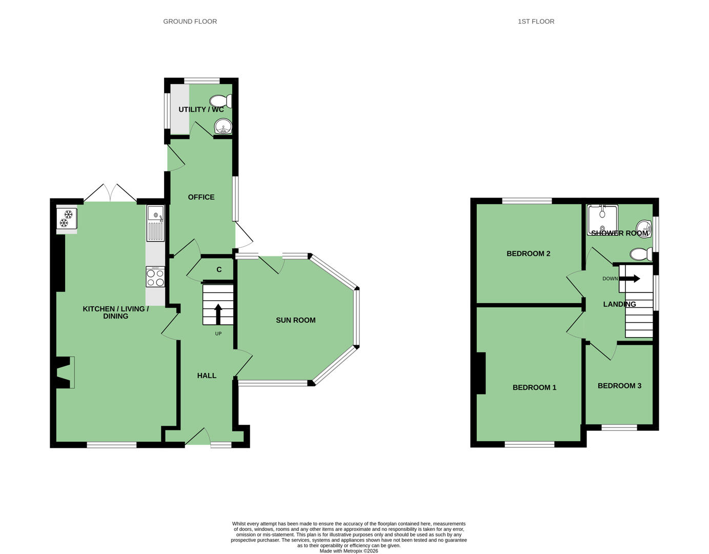
Entrance -

Front Door - Composite front door, double glazed side light into corner, through to reception hall.

Ground Floor -

Reception Hall - With laminate wood effect floor and storage under stairs.

Lounge - 3.94m x 3.56m (12'11 x 11'8) - Outlook to front, cornicing bordering, central wood burning stove with slate inset and slate hearth, open to kitchen/dining.

Kitchen/Dining - 3.56m x 2.95m (11'8 x 9'8) - With range of high and low level units, integrated oven, four ring hob, stainless steel and glazed extractor above, apartment size dishwasher, sink and a half with drainer, chrome mixer taps, white subway style tiled splashback, uPVC and double glazed double patio doors to rear garden, integrated fridge, integrated freezer.

Garden Room - 3.58m x 3.43m (11'9 x 11'3) - With tri-aspect windows and access door to rear.

Rear Office Space - 3.38m x 1.93m (11'1 x 6'4) - With access through to utility.

Utility/Wc - 1.93m x 1.57m (6'4 x 5'2) - With low flush WC, space for tumble dryer, integrated washing machine, laminate granite effect work surface, subway style splashback, outlook to rear.

First Floor - Access to roofspace via Slingsby ladder.

Landing - Access to roofspace via Slingsby ladder.

Bedroom One - 3.94m x 3.10m (12'11 x 10'2) - Outlook to front.

Bedroom Two - 3.10m x 2.95m (10'2 x 9'8) - Outlook to rear.

Bedroom Three - 2.39m x 2.03m (7'10 x 6'8) - Outlook to front.

Shower Room - 2.03m x 1.80m (6'8 x 5'11) - White suite comprising of low flush WC, pedestal wash hand basin, chrome mixer taps, walk-in thermostatically controlled shower, telephone handle attachment, sliding glazed shower screen, tiled walls, tiled floor, heated towel rail, inset spotlights, extractor fan.

Roofspace - Partially floored.

Outside -

Driveway Parking And Gardens - Surrounding gardens laid in lawns with generous garden shed for storage and driveway to front.

Aml - As part of our obligations under the Money Laundering, Terrorist Financing and Transfer of Funds (Information on the Payer) Regulations 2017, all Estate Agents are required to verify the identity of purchasers involved in a property transaction.

To comply with these obligations, all purchasers will be required to complete Customer Due Diligence (AML) identity checks. These checks are carried out on our behalf by our trusted third-party provider, Thirdfort.

A charge will apply of £20 + VAT per purchaser.

A welcoming seaside town just five miles from Belfast, full of charm and community spirit. Stroll along the main street's cafés, boutiques, and family-run restaurants. With great schools, coastal paths, and nearby golf clubs, there's something for everyone. Beautiful homes, sea views, and a relaxed pace make Holywood a wonderful place to live.

Property Ref: 34503018

Share:

Similar Properties

4 Richdale Drive

3 Bedroom Semi-Detached House | Offers Over £380,000

This attractive semi-detached property is full of character and charm, located off the prestigious Old Quay Road a stone...

17 Millreagh Heights

4 Bedroom Detached House | Offers in region of £375,000

This modern detached family home occupies a prime position within this highly regarded and increasingly sought after dev...

18 Rannoch Road

3 Bedroom Semi-Detached Bungalow | Offers in region of £365,000

Set within a highly sought-after and mature residential area of Holywood, 18 Rannoch Road is a beautifully presented sem...

6 Croft Close

3 Bedroom Detached Bungalow | Guide Price £399,950

Set on a spacious corner plot within a quiet and popular cul-de-sac, 6 Croft Close is a detached three/four-bedroom bung...

2 Meadow Park

3 Bedroom Detached Bungalow | Guide Price £400,000

Nestled on a generous corner site in the heart of Crawfordsburn, 2 Meadow Park is an impeccably presented detached bunga...

2 Ballymullan Road

5 Bedroom Detached House | Offers Over £400,000

Enjoying a prime position within the ever sought after and picturesque village of Crawfordsburn. This detached family ho...

John Minnis Estate Agents (Holywood)

Holywood, County Down, BT18 9AD

028 9042 8888

How much is your home worth?

Use our short form to request a valuation of your property.

Request a Valuation

Mortgage Calculator

Amount Borrowed: £
Total Amount Repayable: £
Total Monthly Payment: £
©2026 The Guild of Property Professionals. All rights reserved. Terms and Conditions | Privacy Policy | Cookie Policy | Complaints Policy | Members Login
The Guild of Property Professionals Trading Address: 121 Park Lane, London W1K 7AG. GPEA Limited. Registered in England & Wales.  Company No: 02819824.  Registered Office Address: 2 St. Stephen's Court, St. Stephen's Road, Bournemouth, Dorset, England, BH2 6LA.  VAT Registration No: 576 8795 61
Book a Property Valuation Update Cookies Preferences