Covert Walk, Fairwater, NP44

Guide Price
£150,000
SSTC
This property listing is now SSTC

3 Bedroom Terraced House for sale in Cwmbran

1 3 1

GUIDE PRICE £150,000 - £160,000

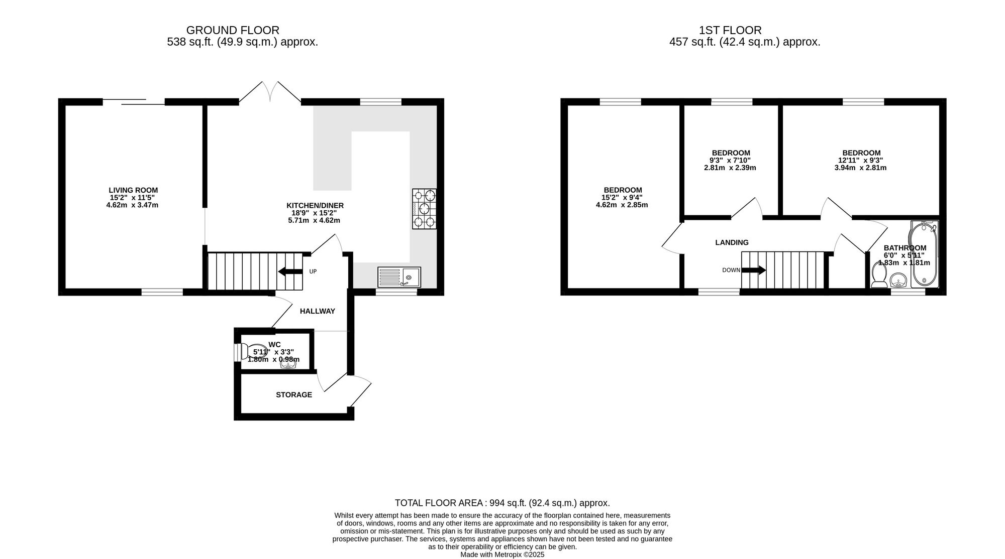
We are delighted to present this three bedroom, end of terraced property for sale in Fairwater, Cwmbran. Presenting this well-presented three-bedroom end-terrace home, located on Covert Walk in Cwmbran. Ideally positioned for both convenience and comfort, the property benefits from easy access to a wide range of local amenities including shops, supermarkets, and leisure facilities at Cwmbran Shopping Centre. The area is well served by reputable primary and secondary schools, making it particularly attractive for families. For commuters, there are excellent transport links with nearby access to the A4042 and M4 motorway, as well as regular public transport services and Cwmbran railway station offering direct routes to Newport, Cardiff and beyond. The local area also offers numerous green spaces, parks, and recreational walking routes, ideal for outdoor activities.

Upon entering the property, you are welcomed into a hallway with a convenient cloakroom and a built-in storage area located on the right-hand side. To the left is the spacious open-plan kitchen/diner, a generous and functional living space ideal for everyday family life or entertaining. The kitchen is well-equipped with a large range of fitted units, ample worktop space, and a breakfast bar. There is plenty of room for a dining table and chairs, while the rear patio doors provide access to the garden and allow natural light to flood the space. Adjacent to the kitchen/diner is the main living room, another well-proportioned and comfortable room with ample space for a variety of seating arrangements.

The first floor comprises three well-sized bedrooms. There are two spacious double rooms and a third single bedroom, ideal as a guest room, nursery, or home office. All rooms are light and neutrally decorated, ready for personal touches. Completing the upper level is a modern family bathroom, fitted with a contemporary suite and finished to a high standard.

Externally, the property offers a good-sized private garden to the rear, which is fully enclosed – making it ideal for children, pets, or outdoor entertaining. The garden benefits from a combination of lawn and patio space. To the front, the property enjoys pedestrian access and is located close to ample nearby parking, providing convenience without compromising the quiet residential setting.

Agents note: The property has been altered (internal wall removed/kitchen extended) for which building regulation or approval documents have not been made available. We would inform interested parties to rely on their own inspections, searches and surveys before committing to any transactional decision.

Council Tax Band: B

All services and mains water (metered) are connected to the property.

The broadband internet is provided to the property by cable, the sellers are subscribed to Virgin Media. Please visit the Ofcom website to check broadband availability and speeds.

The owner has advised that the level of the mobile signal/coverage at the property is good, they are subscribed to EE. Please visit the Ofcom website to check mobile coverage.

Please contact us for more information or to arrange a viewing.

Important Information

  • This is a Freehold property.
  • This Council Tax band for this property is: B
  • EPC Rating is D

Property Ref: 51ec8c32-46fc-4d17-8c3d-730b8536ec3e

Share:

Similar Properties

Old Street, Tonypandy, CF40

3 Bedroom Terraced House | £150,000

**NO ONWARD CHAIN**MID TERRACE**THREE BEDROOMS**THREE RECEPTION ROOMS**KITCHEN**BATHROOM**CLOAKROOM**TIERED GARDEN**VIEW...

Anderson Grove, Newport, NP19

2 Bedroom Flat | Guide Price £150,000

* GUIDE PRICE £150,000 - £160,000* 2ND FLOOR APARTMENT * BEAUTIFULLY PRESENTED* 2 DOUBLE BEDROOMS* OPEN PLAN RECEPTION R...

Marloes Path, Greenmeadow, NP44

3 Bedroom Semi-Detached House | Guide Price £150,000

* GUIDE PRICE £150,000 - £160,000* 3 BEDROOMS* SPACIOUS LIVING ROOM* OPEN PLAN KITCHEN / DINER* AMPLE STORAGE THROUGHOUT...

Islwyn Street, Ynysddu, NP11

3 Bedroom Terraced House | Guide Price £155,000

GUIDE PRICE: £155,000 - £165,000**NO ONWARD CHAIN**MID TERRACE PROPERTY**THREE DOUBLE BEDROOMS**LOUNGE/DINER**LARGE KITC...

Albany Street, Newport, NP20

2 Bedroom Terraced House | Guide Price £155,000

**GUIDE PRICE: £155,000 - £165,000**MID TERRACE PROPERTY**TWO DOUBLE BEDROOMS**OPEN PLAN LOUNGE/DINER**KITCHEN**UTILITY*...

Winchester Close, Newport, NP20

2 Bedroom Terraced House | Guide Price £160,000

* GUIDE PRICE £160,000 - £170,000* 2 BEDROOMS* SPACIOUS LIVING ROOM / DINER* OPEN PLAN RECEPTION ROOM* PRACTICAL KITCHEN...

Number One Real Estate (Newport)

Newport, Monmouthshire, NP20 4AQ

01633 492777

How much is your home worth?

Use our short form to request a valuation of your property.

Request a Valuation

Mortgage Calculator

Amount Borrowed: £
Total Amount Repayable: £
Total Monthly Payment: £
©2026 The Guild of Property Professionals. All rights reserved. Terms and Conditions | Privacy Policy | Cookie Policy | Complaints Policy | Members Login
The Guild of Property Professionals Trading Address: 121 Park Lane, London W1K 7AG. GPEA Limited. Registered in England & Wales.  Company No: 02819824.  Registered Office Address: 2 St. Stephen's Court, St. Stephen's Road, Bournemouth, Dorset, England, BH2 6LA.  VAT Registration No: 576 8795 61
Book a Property Valuation Update Cookies Preferences