Dinas Path, Fairwater, NP44

£190,000
SSTC
This property listing is now SSTC

3 Bedroom Terraced House for sale in Cwmbran

1 3 1

We are delighted to present this three-bedroom, terraced family home for sale in Fairwater. This well-presented property is situated on Dinas Path in Cwmbran, a popular and convenient residential area ideal for families and first-time buyers alike. Cwmbran offers a wide range of local amenities, including the well-known shopping centre, supermarkets, cafés and leisure facilities. The property benefits from excellent transport links, with easy access to the A4042 connecting to the M4 motorway, making commuting to Newport, Cardiff and Bristol straightforward. Cwmbran railway station also provides regular services to Cardiff and beyond. The area is well served by reputable primary and secondary schools and enjoys nearby parks and green spaces, perfect for outdoor activities.

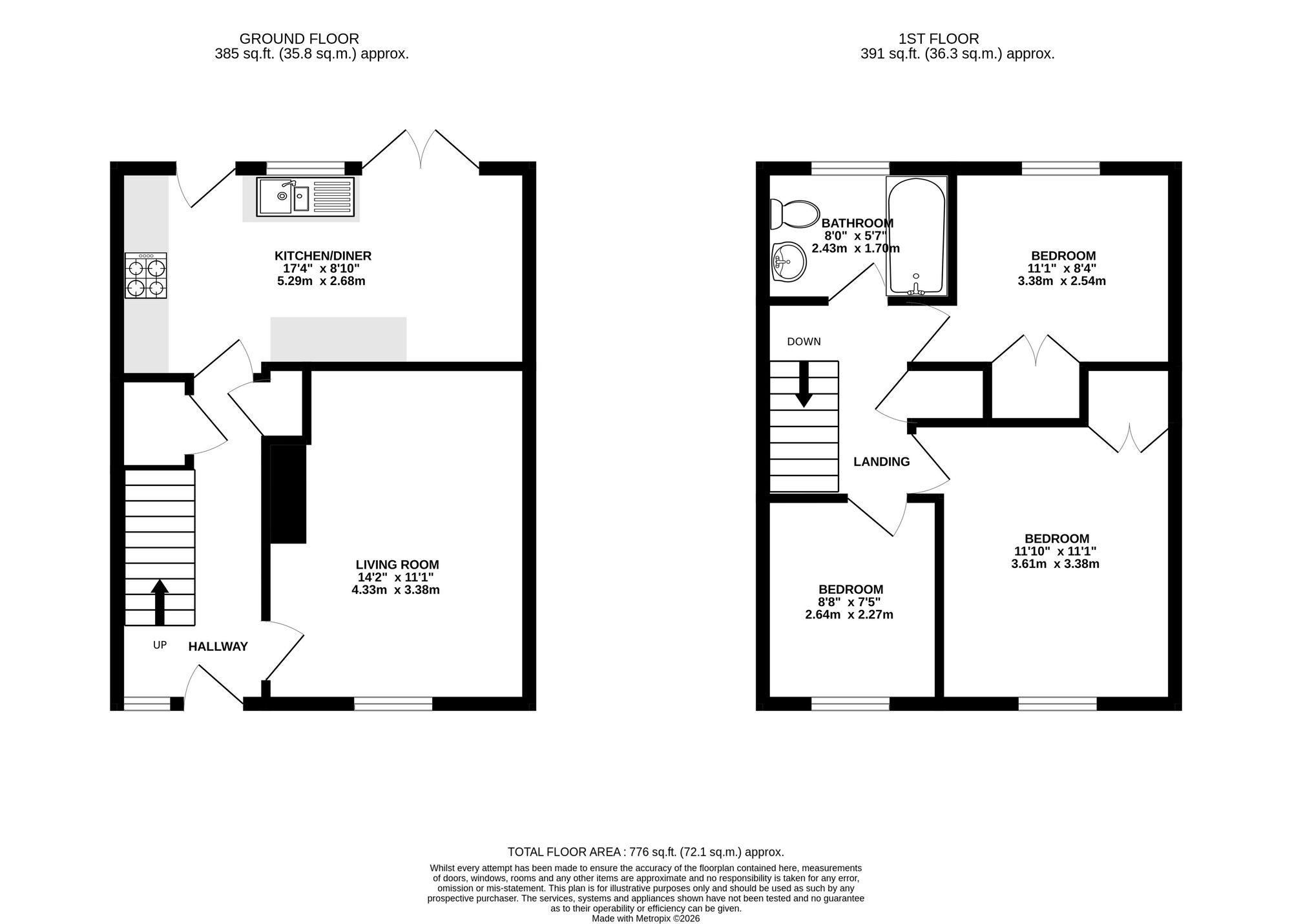
You enter the property through a spacious hallway, with the staircase ahead leading to the first floor and access into the main living areas. To the right is a bright and generously sized lounge, offering ample space for a range of seating arrangements and creating a comfortable setting for relaxation. To the rear of the property is the open-plan kitchen/diner, featuring a good-sized fitted kitchen with a range of wall and base units, alongside space for dining furniture. This sociable area also provides direct access out to the rear garden, allowing for convenient indoor-outdoor living.

On the first floor are three bedrooms and a modern bathroom. There are two well-proportioned double bedrooms and a single room, providing flexible accommodation suitable for families, guests or a home office. The bathroom is finished to a contemporary standard and fitted with a modern suite.

To the rear of the property is a good-sized enclosed garden, offering a private outdoor space ideal for relaxing and entertaining. Large patio areas provide plenty of room for outdoor seating and dining. Rear access leads to a communal parking area, adding further practicality to this attractive home.

Leasehold Information:

Date: 26 June 1972

Term: 999 years from 25 March 1972

Ground Rent: £20 (Bi-Annually)

Council Tax Band: B

All services and mains water (metered) are connected to the property.

The broadband internet is provided to the property by FTTP (fibre to the premises), the sellers are subscribed to Virgin. Please visit the Ofcom website to check broadband availability and speeds.

The owner has advised that the level of the mobile signal/coverage at the property is good, they are subscribed to Talk Mobile. Please visit the Ofcom website to check mobile coverage.

Please contact us for more information or to arrange a viewing.

Important Information

  • This is a Freehold property.
  • The annual cost for the ground rent on this property is £20
  • This Council Tax band for this property is: B
  • EPC Rating is C

Property Ref: 312e37d5-a91f-47e3-9ff4-2e8d92be7ffe

Share:

Similar Properties

Sir Charles Square, Newport, NP10

2 Bedroom Terraced House | Guide Price £190,000

**GUIDE PRICE £190,000 - £200,000**WELL PRESENTED**END TERRACE**TWO DOUBLE BEDROOMS**MODERN KITCHEN AND BATHROOM**OPEN P...

Bulrush Close, St. Mellons, CF3

2 Bedroom Terraced House | Guide Price £190,000

* GUIDE PRICE £190,000 - £200,000* NO ONWARD CHAIN* TWO DOUBLE BEDROOMS* LIVING ROOM* KITCHEN/DINER* SHOWER ROOM*ENCLOSE...

Malpas Road, Newport, NP20

4 Bedroom Terraced House | Guide Price £190,000

**MID TERRACE**FOUR BEDROOMS**OPEN PLAN LOUNGE/DINER**LARGE KITCHEN**ENCLOSED REAR GARDEN**FAMILY BATHROOM**GREAT TRANSP...

Sarno Square, Abergavenny, NP7

2 Bedroom Flat | Offers Over £199,000

* VIEWING HIGHLY RECOMMENDED* TWO BEDROOM APARTMENT* GRADE II LISTED BUILDING* LARGE COMMUNAL GARDENS* IMPRESSIVE LIVING...

Commercial Road, Machen, CF83

3 Bedroom Semi-Detached House | Guide Price £199,999

* 3 BEDROOMS* OPEN PLAN LIVING * 2 RECEPTION ROOMS* PRACTICAL KITCHEN* REAR PATIO + GARDEN* CONVENIENT LOCATION* GROUND...

Heather Road, Newport, NP19

3 Bedroom Terraced House | Guide Price £200,000

* GUIDE PRICE £200,000 - £210,000 * THREE BEDROOMS* TERRACED PROPERTY* NEWLY RENOVATED* BEAUTIFULLY PRESENTED* OPEN PLAN...

Number One Real Estate (Newport)

Newport, Monmouthshire, NP20 4AQ

01633 492777

How much is your home worth?

Use our short form to request a valuation of your property.

Request a Valuation

Mortgage Calculator

Amount Borrowed: £
Total Amount Repayable: £
Total Monthly Payment: £
©2026 The Guild of Property Professionals. All rights reserved. Terms and Conditions | Privacy Policy | Cookie Policy | Complaints Policy | Members Login
The Guild of Property Professionals Trading Address: 121 Park Lane, London W1K 7AG. GPEA Limited. Registered in England & Wales.  Company No: 02819824.  Registered Office Address: 2 St. Stephen's Court, St. Stephen's Road, Bournemouth, Dorset, England, BH2 6LA.  VAT Registration No: 576 8795 61
Book a Property Valuation Update Cookies Preferences