Coppen Road, Dagenham, RM8

£1,950,000

Not Specified for sale in Dagenham

  • GATED WAREHOUSE
  • VACANT POSSESSION
  • PARKING FOR APPROXIMATELY 15 CARS
  • SECURE YARD

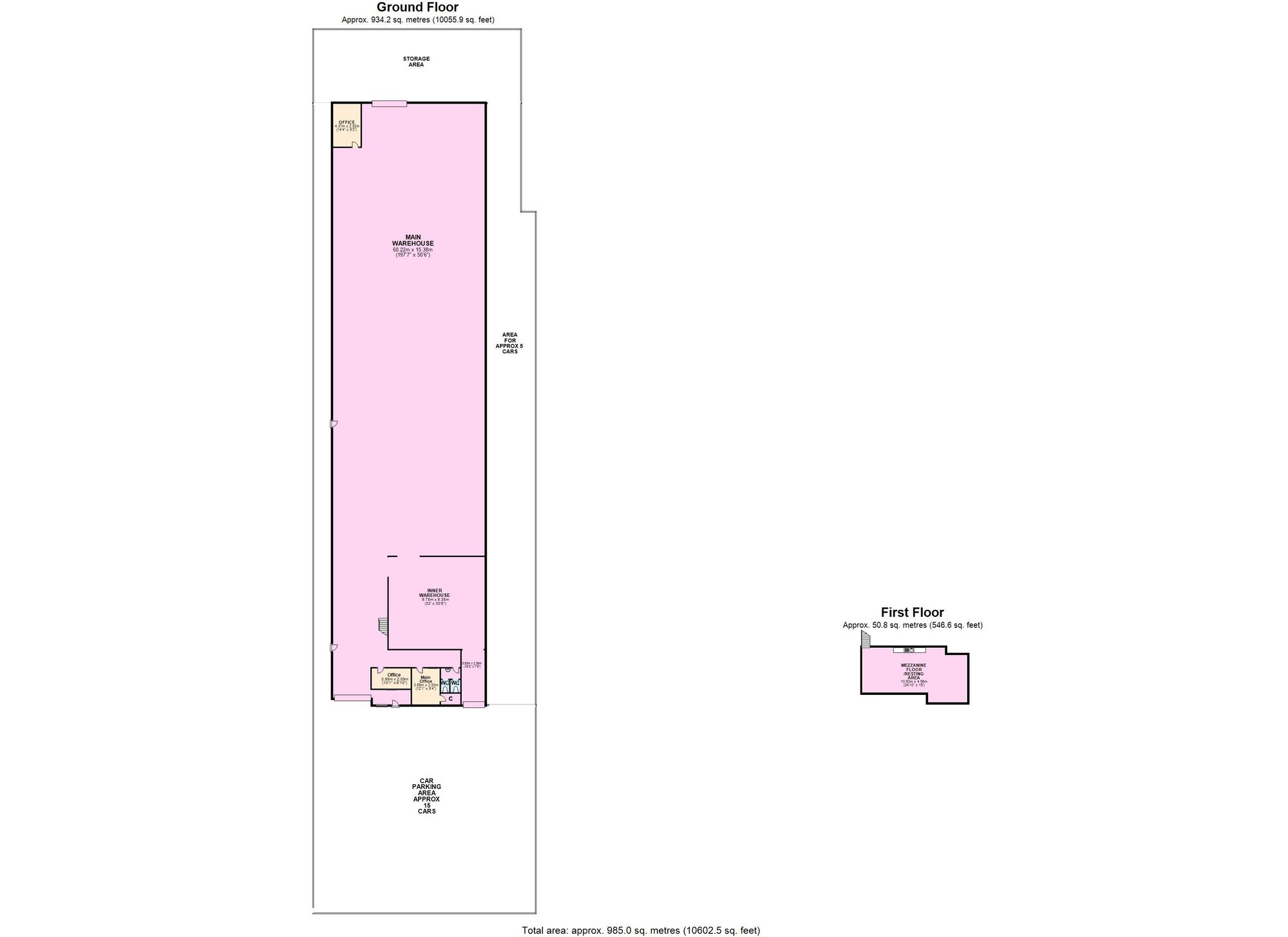
The warehouse is located within the Coppen Road Industrial Estate in Dagenham, situated off Salinas Lane, and is part of a thriving business community.

The accommodation comprises a single-storey light industrial/warehouse unit that offers approximately 10055.90 sq ft (934.2 sq m) of clear space on the ground floor. There are three office rooms, as well as WC facilities. The total gross area comes to approximately 10602.50 sq ft (985.00 sq m). Additionally, there are parking spaces for approximately 15 cars at the front of the unit, with potential for additional parking on the side.

The property is offered as Freehold with vacant possession.

Offers for the Freehold are invited in the region of £2,200,000.

Important Information

  • This is a Freehold property.
  • This Council Tax band for this property is: C

Property Ref: 3a21a437-c6c7-41a2-af38-23279494958f

Share:

Similar Properties

Crow Lane, Romford, RM7

Not Specified | Fixed Price £620,000

Stanley Avenue, Romford, RM2

3 Bedroom Terraced House | Guide Price £525,000

GUIDE PRICE: £525,000 to £550,000: This well-presented three-bedroom mid-terraced house offers versatile living accommod...

Lawns Way, Romford, RM5

3 Bedroom Semi-Detached Bungalow | Offers in excess of £500,000

Stunning 3-bed semi-bungalow. Spacious lounge, dining room with garden view. Driveway, well-maintained exterior. Immacul...

GBP Estates (Romford)

35 Victoria Road, Romford, Essex, RM1 2LH

01708 504455

How much is your home worth?

Use our short form to request a valuation of your property.

Request a Valuation

Mortgage Calculator

Amount Borrowed: £
Total Amount Repayable: £
Total Monthly Payment: £
©2026 The Guild of Property Professionals. All rights reserved. Terms and Conditions | Privacy Policy | Cookie Policy | Complaints Policy | Members Login
The Guild of Property Professionals Trading Address: 121 Park Lane, London W1K 7AG. GPEA Limited. Registered in England & Wales.  Company No: 02819824.  Registered Office Address: 2 St. Stephen's Court, St. Stephen's Road, Bournemouth, Dorset, England, BH2 6LA.  VAT Registration No: 576 8795 61
Book a Property Valuation Update Cookies Preferences