Woodward Road, Dagenham, RM9

£365,000
SSTC
This property listing is now SSTC

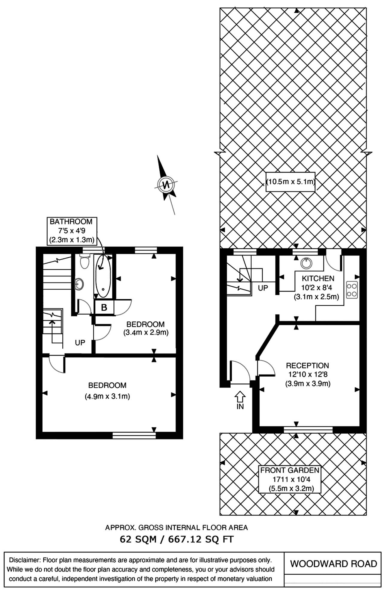
2 Bedroom Terraced House for sale in Dagenham

1 2 1
  • Mid Terrace
  • Two double bedroom
  • Good size reception
  • Fully fitted kitchen
  • Three piece bathroom
  • Private garden
  • Good storage
  • Close to local shops and amenities

Victor Michael is pleased to present you for sale a spacious mid terrace house that offer ample space and an array of desirable features, making it an ideal choice for those looking for a comfortable and convenient home.Guide Price £365,000 to £375,000

Upon entering the house, you'll be greeted by a spacious reception area, perfect for relaxation or entertaining guests. The well-designed layout flows smoothly, providing an open and inviting atmosphere throughout. The fully fitted kitchen adjacent to the reception area is equipped with appliances, offering convenience and functionality.

The property features two generously sized double bedrooms, each providing a comfortable space for rest and relaxation. With abundant natural light and ample storage solutions, these bedrooms are perfect sanctuaries to unwind after a long day. Additionally, the three-piece bathroom offers a tranquil space to rejuvenate and refresh.

One of the standout features of this property is the private garden. Providing a peaceful outdoor oasis, this space is perfect for enjoying a morning coffee or hosting summer barbecues with family and friends. The garden also offers scope for customization, allowing you to create your own personalized retreat.

Enjoy the convenience of nearby shopping centers, supermarkets, and a variety of dining options to suit all tastes.

For those with a busy lifestyle, this property also provides ample storage solutions. From built-in wardrobes to cleverly designed spaces, you won't have to worry about clutter interfering with your daily routines. Additionally, the property offers excellent transport links, making commuting a breeze.

Notice:Please note we have not tested any apparatus, fixtures, fittings, or services. Interested parties must undertake their own investigation into the working order of these items. All measurements are approximate and photographs are provided for guidance only.
Contact us today on 0208 519 2000 to arrange a viewing and discover your new home.

Important Information

  • This is a Freehold property.
  • This Council Tax band for this property is: C

Property Ref: 123456_394310

Share:

Similar Properties

Limborough House, Thomas Road, London, E14

3 Bedroom Apartment | Guide Price £360,000

Three bedroom apartment on third floor for sale

Cann Hall Road, London, E11

2 Bedroom Flat | Guide Price £340,000

Spacious Two bedroom flat for Sale in Leytonstone

Leytonstone Road, Stratford, London. E15

1 Bedroom Ground Floor Flat | £325,000

We are pleased to offer you this ground floor one bedroom flat located within easy reach of Maryland station. This one b...

Ray Lodge Road, Woodford Green, IG8

2 Bedroom Apartment | £370,000

Spacious split level two double bedroom apartment for sale

PLASHET ROAD, PLAISTOW, LONDON . E13

Shop | POA

Victor Michael is pleased to present this superb commercial unit to the market. Established Family run DIY business for...

Jupiter House, Turner Street, London, E16

2 Bedroom Apartment | £375,000

Spacious two bedroom, two bathroom apartment with laminate flooring, fully fitted kitchen, and a balcony

Victor Michael Limited (Stratford)

Stratford, London, E15 1SQ

0208 519 2000

How much is your home worth?

Use our short form to request a valuation of your property.

Request a Valuation

Mortgage Calculator

Amount Borrowed: £
Total Amount Repayable: £
Total Monthly Payment: £
©2026 The Guild of Property Professionals. All rights reserved. Terms and Conditions | Privacy Policy | Cookie Policy | Complaints Policy | Members Login
The Guild of Property Professionals Trading Address: 121 Park Lane, London W1K 7AG. GPEA Limited. Registered in England & Wales.  Company No: 02819824.  Registered Office Address: 2 St. Stephen's Court, St. Stephen's Road, Bournemouth, Dorset, England, BH2 6LA.  VAT Registration No: 576 8795 61
Book a Property Valuation Update Cookies Preferences