Northumberland Street, Westpoint Northumberland Street, DL3

Offers Over
£150,000

2 Bedroom Flat for sale in Darlington

1 2 1
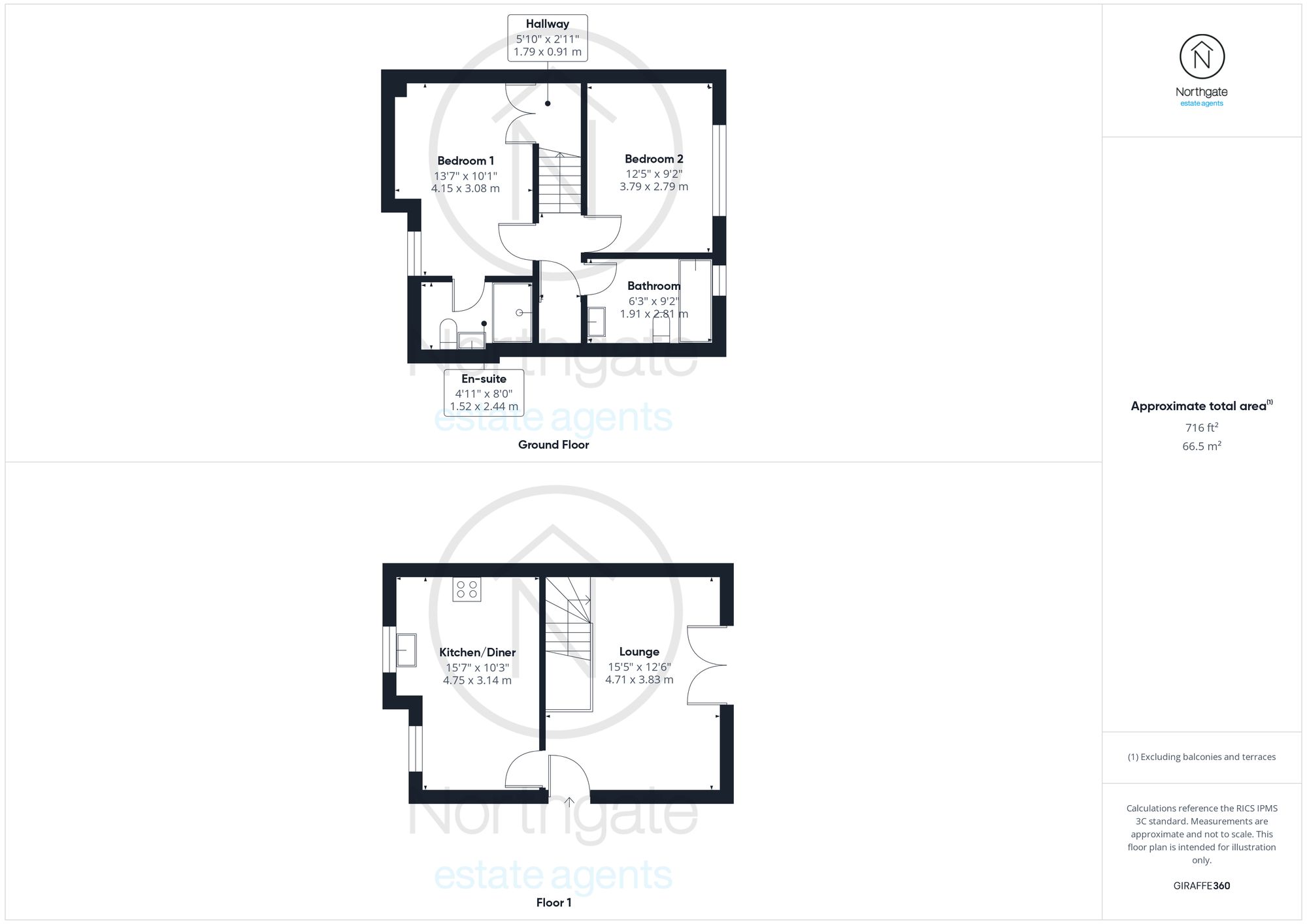
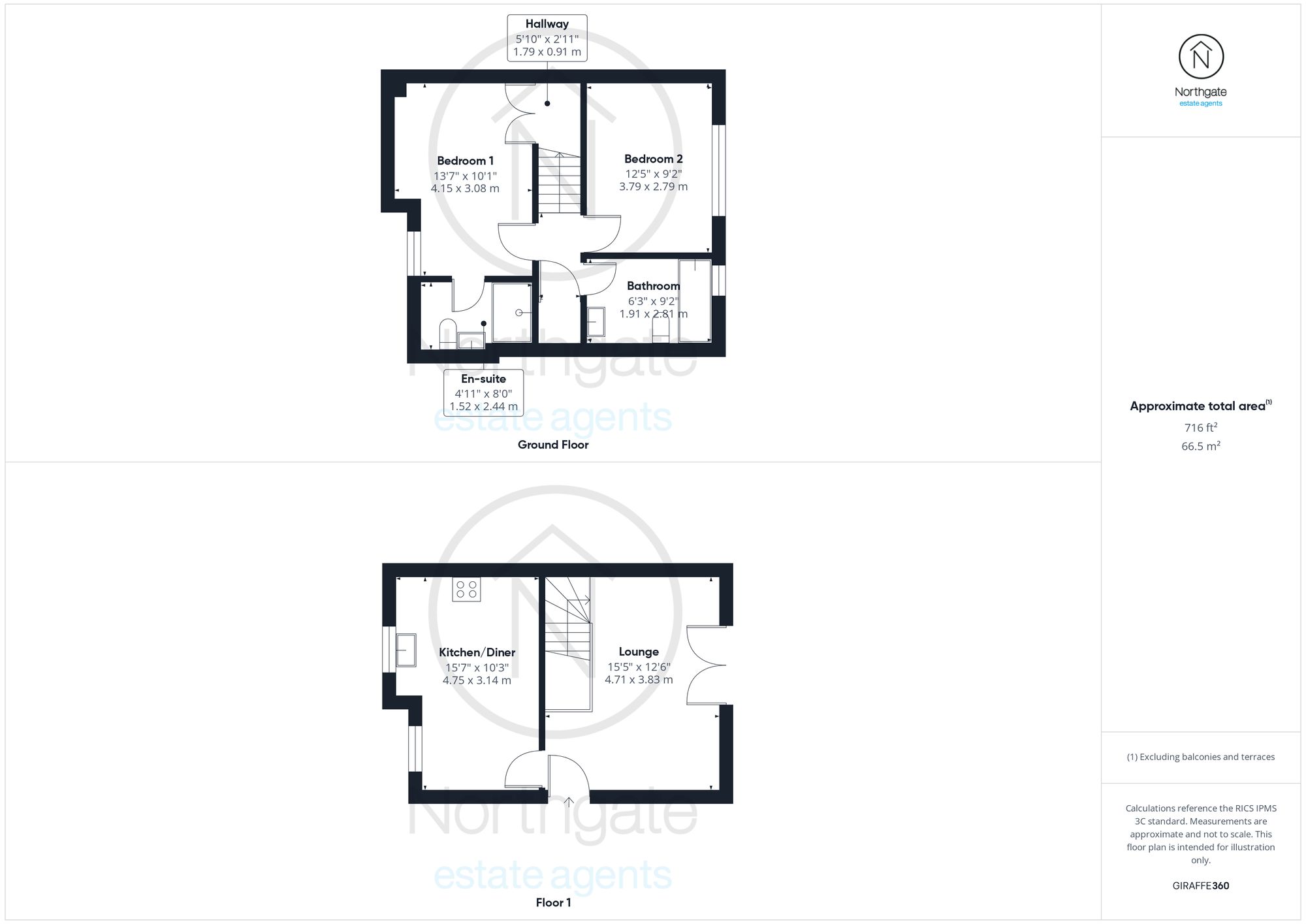
  • No Chain - 2 Bedroom Duplex Apartment
  • Two Double Bedrooms
  • Modern Fitted Kitchen / Diner
  • En-suite / Family Bathroom
  • Secured Gated Access / Allocated Parking
  • Energy Performance Certificate: C

Located just a short stroll from Darlington town centre and moments from Coniscliffe Road, this well-presented apartment offers easy access to a range of local amenities including wine bars, restaurants, boutique shops, and cafés, along with excellent transport links.

Set within a secure gated development, the complex benefits from a well-maintained communal entrance with an intercom entry system, offering added privacy and peace of mind.

Ideal for professionals, first-time buyers, or investors, this modern apartment is situated in a highly desirable location.

The accommodation briefly comprises: lounge, modern kitchen/diner, stairs leading down to two double bedrooms, En-suite and a family bathroom.

Please note that some rooms have been digitally staged for illustrative purposes, and may not reflect the current contents.

Important Information

  • This is a Leasehold property.
  • The annual cost for the ground rent on this property is £100
  • The annual service charges for this property is £1200
  • This Council Tax band for this property is: D

Property Ref: fdb913b1-d5e4-4290-a1c8-43af536dc745

Share:

Similar Properties

Holme Rise, Whickham, NE16

2 Bedroom Terraced House | Offers in region of £150,000

Well-presented two-bedroom mid link in Whickham village with double driveway, south-facing garden, conservatory, fitted...

The Pasture, Newton Aycliffe, DL5

3 Bedroom Semi-Detached House | Offers in excess of £149,950

St. Aidans Way, Chilton, DL17

3 Bedroom Terraced House | Offers in region of £140,000

Well-presented three-bedroom home in Chilton with modern kitchen, integral garage, private garden, countryside views, ga...

Wellhouse Road, Newton Aycliffe, DL5

3 Bedroom End of Terrace House | Offers in excess of £155,000

Foxton Close, Newton Aycliffe, DL5

2 Bedroom Semi-Detached Bungalow | Offers in excess of £160,000

St. Marys Close, Newton Aycliffe, DL5

3 Bedroom Semi-Detached House | Offers in excess of £170,000

Northgate Estate Agents (Newton Aycliffe)

Suite 3, Greenwell Road, Newton Aycliffe, Durham, DL5 4DH

01325 315 869

How much is your home worth?

Use our short form to request a valuation of your property.

Request a Valuation

Mortgage Calculator

Amount Borrowed: £
Total Amount Repayable: £
Total Monthly Payment: £
©2026 The Guild of Property Professionals. All rights reserved. Terms and Conditions | Privacy Policy | Cookie Policy | Complaints Policy | Members Login
The Guild of Property Professionals Trading Address: 121 Park Lane, London W1K 7AG. GPEA Limited. Registered in England & Wales.  Company No: 02819824.  Registered Office Address: 2 St. Stephen's Court, St. Stephen's Road, Bournemouth, Dorset, England, BH2 6LA.  VAT Registration No: 576 8795 61
Book a Property Valuation Update Cookies Preferences