Warfleet Creek Road, Dartmouth

Guide Price
£550,000
SSTC
This property listing is now SSTC

3 Bedroom Terraced House for sale in Dartmouth

1 3 3
  • Contemporary Well Presented Townhouse

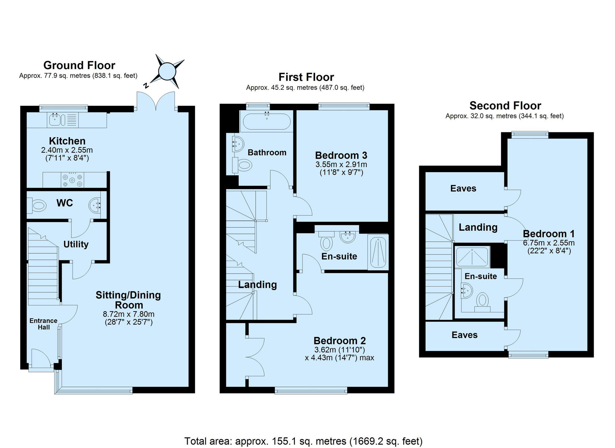
A contemporary three bedroom terraced town house built approximately 17years ago, situated within the prestigious Warfleet Pottery Development in Dartmouth with easy access to Warfleet Creek and the River Dart.

Situated just a pretty 15 minute walk from the town centre, this house has been a much loved home from new and represents an ideal opportunity for a family home, second home or holiday let. The property is very well presented and maintained throughout, with underfloor heating, three bedrooms, three bathrooms, an allocated parking space and a small rear decked courtyard area. Warfleet Creek with direct access to the River Dart is within a few minutes’ walk.

On the ground floor is a good sized open plan living area with a sitting room to the front leading to the dining area with double doors out to the rear courtyard, a well fitted kitchen and a utility/w.c. On the first floor there is a guest bedroom a family bathroom and an en suite bedroom. There is a further en suite bedroom on the second floor with a useful under eaves storage.

Outside is a rear small decked courtyard area and to the front is a private allocated parking space.

Dartmouth is a beautiful waterside town, particularly well known as a sailing centre with excellent facilities for yachtsmen and its famous annual Royal Regatta. The town provides a good range of shops, restaurants and galleries and is surrounded by stunning countryside and a short drive from some of the most beautiful beaches in the area. There are several excellent golf courses within easy reach and railway links to London Paddington can be made locally at Totnes, about 13 miles to the north. Access to the A38 Devon Expressway at Buckfastleigh is about 19 miles away.

Tenure
Freehold

Service Charge
£20 per month

Services
Mains electricity, water and drainag. Electric underfloor heating

Viewing
Strictly by appointment with the Sole Agents, Marchand Petit, Dartmouth. Telephone: 01803 839190

Fixtures & Fittings
All items in the written text of these sales particulars are included in the sale. Other items are expressly excluded, regardless of inclusion in any photograph. Purchasers must satisfy themselves that any equipment included in the sale of the property is in satisfactory working order.

Important Information

  • This is a Freehold property.

Property Ref: 2728_TSJ725654

Share:

Similar Properties

Horn Hill, Dartmouth

3 Bedroom Terraced House | Guide Price £550,000

A charming period home in a most popular part of this lovely riverside town, in a quiet peaceful position but with shops...

Churchfields, Dartmouth

2 Bedroom Detached Bungalow | Guide Price £550,000

A good sized immaculately presented detached bungalow in a popular residential part of this wonderful South Hams town wi...

Higher Street, Dittisham

2 Bedroom Terraced House | Guide Price £550,000

An absolutely charming cottage with stunning River Dart views, situated in the heart of this sought after village in the...

Broad Park, Dartmouth, Devon

4 Bedroom Detached House | Guide Price £555,000

A substantial well presented detached property in an elevated position with views across the town towards the river with...

Seymour Drive, Dartmouth, Devon

5 Bedroom Detached House | Guide Price £575,000

A versatile and beautifully presented substantial detached house with 4 bedrooms, a separate study/home office and annex...

Victoria Heights, Dartmouth

4 Bedroom Semi-Detached House | Guide Price £575,000

A modern semi detached house in an elevated position overlooking the town with a garage, parking and garden and with a s...

Marchand Petit (Dartmouth)

Hauley Road, Dartmouth, Devon, TQ6 9AA

01803 839 190

How much is your home worth?

Use our short form to request a valuation of your property.

Request a Valuation

Mortgage Calculator

Amount Borrowed: £
Total Amount Repayable: £
Total Monthly Payment: £
©2025 The Guild of Property Professionals. All rights reserved. Terms and Conditions | Privacy Policy | Cookie Policy | Complaints Policy | Members Login
The Guild of Property Professionals Trading Address: 121 Park Lane, London W1K 7AG. GPEA Limited. Registered in England & Wales.  Company No: 02819824.  Registered Office Address: 2 St. Stephen's Court, St. Stephen's Road, Bournemouth, Dorset, England, BH2 6LA.  VAT Registration No: 576 8795 61
Book a Property Valuation Update Cookies Preferences